Rose Creek Gardens, Great Sankey, Warrington
By Mark Antony Estates
£ 155,000
Reviews
3 out of 5 stars
Mark Antony Estates says ..
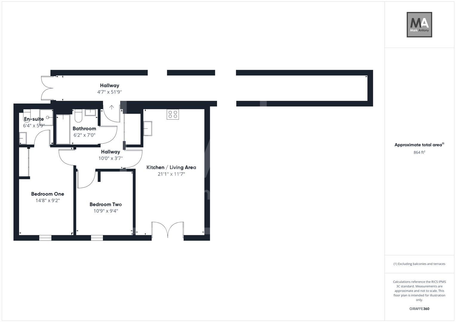
This charming TWO-BEDROOM apartment is a fantastic opportunity for FIRST TIME BUYERS or INVESTORS. Situated in a block within the desirable suburb of GREAT SANKEY, this property provides great TRANSPORT LINKS and easy access to LOCAL AMENITIES. Well presented with attractive décor, OPEN-PLAN kitc...
Property Oracle says ..
This is a two-bedroom apartment in Great Sankey, Warrington, listed for £155,000. The property appears to be in good condition, with modern interiors. It benefits from its proximity to local schools and transportation links, including Warrington West train station. While it lacks private land, the apartment’s price point, relative to the area’s average, suggests it could be a good investment or first-time purchase. The apartment is located on San Diego Drive, close to other residential streets. Overall, it presents a well-maintained and conveniently located living space.
Therefore, we give this property 6 / 10. *Disclaimer: This is our option and does constitute a recommendation or financial advice. Do your own research. *
- Price
- 8
- Condition
- 8
- Location
- 7
- Land
- 3
- Bedrooms
- 2
- Bathrooms
- 2
- Sqft (est)
- 864.00
The heatmap indicates the level of crime in the area. The color of the heatmap indicates the crime severity and recency.
Metrics Year-on-Year
- Average area value
- 260,875.00 £Decreased by 14.62 %
- Est sale value
- 226,368.00 £Decreased by 18.12 %
- Average area rental value
- 1,164.00 £/moDecreased by 1.44 %
- Est letting value
- 864.00 £/moUnchanged by 0.00 %
- Est rental Yield
- 5.35 %Increased by 15.30 %
- Crime Rate
- 19.00 %Unchanged by 0.00 %
Agent Activity
Mark Antony Estates created the listing.
Nearby Schools
| Name | Type | Ofsted | Distance |
|---|---|---|---|
| Chapelford Village Primary School | Academy Converter | 0.33 KM | |
| Great Sankey Primary School | Academy Converter | Good | 0.91 KM |
| Great Sankey Children'S Centre | Children's Centre | 0.91 KM | |
| Sankey Valley St James Church Of England Primary School | Voluntary Aided School | Good | 1.00 KM |
| Penketh High School | Academy Converter | Good | 1.18 KM |
Images
Nearby Streets
| Name | Average Price | Average Sqft | Distance |
|---|---|---|---|
| Hemingfield Grove | £ 0 | 0 | 0.00 KM |
| Monterey Close | £ 0 | 0 | 0.00 KM |
| Blandford Road | £ 249,158 | 0 | 0.00 KM |
| Sankey Way | £ 0 | 0 | 0.00 KM |
| Ealing Road | £ 300,000 | 0 | 0.00 KM |
Nearby Transport
| Name | NLC | TLC | Distance |
|---|---|---|---|
| Warrington West | 6583 | WAW | 0.07 KM |
| Sankey For Penketh | 2388 | SNK | 1.31 KM |
| Warrington Bank Quay | 2384 | WBQ | 4.12 KM |
| Warrington Central | 2390 | WAC | 5.05 KM |
| Earlestown | 2292 | ERL | 6.36 KM |
Nearby Listings
| Address | Price | Type | Score | Distance |
|---|---|---|---|---|
| Rose Creek Gardens, Great Sankey, Warrington | £ 155,000 | BUY | 6 / 10 | 0.00 KM |
| Verden Court, Great Sankey, Warrington, WA5 | £ 150,000 | BUY | 6 / 10 | 0.00 KM |
| Verdon Court, Rose Creek Gardens, Great Sankey, Warrington | £ 145,000 | BUY | Unknown | 0.00 KM |
| Rose Creek Gardens, Great Sankey, Warrington | £ 112,500 | BUY | Unknown | 0.03 KM |
| Rose Creek Gardens, Great Sankey, Warrington | £ 150,000 | BUY | Unknown | 0.05 KM |
Nearby Properties
| Address | Price | Distance |
|---|---|---|
| 22 Rose Creek Gardens | £ 182,500 | 0.07 KM |
| 3 Rose Creek Gardens | £ 115,000 | 0.07 KM |
| 25 Rose Creek Gardens | £ 185,000 | 0.07 KM |
| 23 Rose Creek Gardens | £ 158,000 | 0.07 KM |
| 19 Rose Creek Gardens | £ 141,995 | 0.07 KM |