Yarburgh Grove, York
By Ashtons Estate Agents
£ 270,000
Reviews
3 out of 5 stars
Ashtons Estate Agents says ..
A modern townhouse with a private garden and off street parking, ideally located close to York city centre in the popular residential area of Holgate. Offering convenient access to the train station and the nearby amenities of Acomb, this property presents an excellent opportunity for a first tim...
Property Oracle says ..
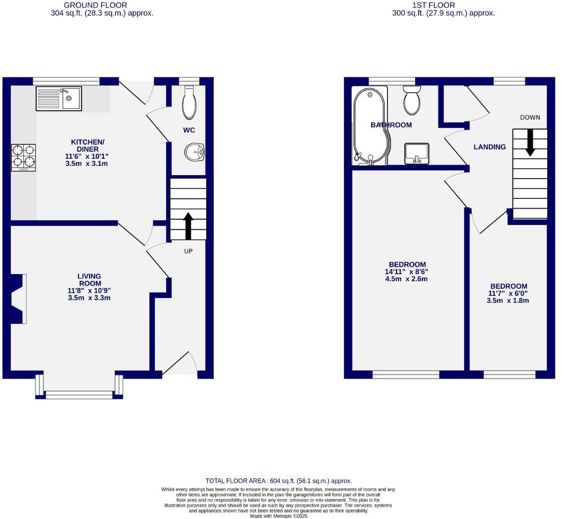
This two-bedroom terraced house in York is located in the Holgate area, close to Poppleton Road. The property benefits from being within a reasonable distance of local schools, including Poppleton Road Primary School (rated as “Good” by Ofsted), and transport links such as York train station. The house itself appears to be in good condition based on the provided images, with a modern kitchen and bathroom. There is a small, enclosed garden to the rear of the property. The list price of £270,000 is slightly below the average price for the area (£294,164), however, it is important to note that the average property size in the area is significantly larger (847 sqft compared to 603 sqft). Considering the smaller size and the lack of significant additional features, the price may be considered reasonable, though not exceptionally good value.
Therefore, we give this property 6 / 10. *Disclaimer: This is our option and does constitute a recommendation or financial advice. Do your own research. *
- Price
- 6
- Condition
- 8
- Location
- 7
- Land
- 4
- Bedrooms
- 2
- Bathrooms
- 1
- Sqft (est)
- 603.86
The heatmap indicates the level of crime in the area. The color of the heatmap indicates the crime severity and recency.
Metrics Year-on-Year
- Average area value
- 205,714.00 £Decreased by 35.49 %
- Est sale value
- 201,085.38 £Decreased by 12.14 %
- Average area rental value
- 1,183.00 £/moIncreased by 12.03 %
- Est letting value
- 603.86 £/moUnchanged by 0.00 %
- Est rental Yield
- 6.90 %Increased by 73.80 %
- Crime Rate
- 16.00 %Unchanged by 0.00 %
Agent Activity
Ashtons Estate Agents created the listing.
Nearby Schools
| Name | Type | Ofsted | Distance |
|---|---|---|---|
| Poppleton Road Primary School | Community School | Good | 0.24 KM |
| Acomb Primary School | Academy Converter | 0.87 KM | |
| Our Lady Queen Of Martyrs Catholic Primary School - A Catholic Voluntary Academy | Academy Converter | 1.22 KM | |
| Hob Moor Children'S Centre | Children's Centre | 1.38 KM | |
| Hob Moor Community Primary Academy | Academy Converter | 1.39 KM |
Images
Nearby Streets
| Name | Average Price | Average Sqft | Distance |
|---|---|---|---|
| Thompson Place | £ 0 | 0 | 0.00 KM |
| Glebe Avenue | £ 0 | 0 | 0.00 KM |
| Barnabas Court | £ 0 | 0 | 0.00 KM |
| Fairfax Close | £ 120,000 | 0 | 0.00 KM |
| Ouse Acres | £ 0 | 0 | 0.00 KM |
Nearby Transport
| Name | NLC | TLC | Distance |
|---|---|---|---|
| York | 8263 | YRK | 2.31 KM |
| Poppleton | 8254 | POP | 4.18 KM |
Nearby Listings
| Address | Price | Type | Score | Distance |
|---|---|---|---|---|
| Yarburgh Grove, York | £ 270,000 | BUY | 6 / 10 | 0.00 KM |
| Poppleton Road, York, YO26 4UP | £ 280,000 | BUY | 7 / 10 | 0.03 KM |
| Chatsworth Terrace, York | £ 260,000 | BUY | 5 / 10 | 0.06 KM |
| Chatsworth Terrace, York, North Yorkshire, YO26 | £ 270,000 | BUY | 5 / 10 | 0.11 KM |
| Howe Hill Road, York, YO26 4SW | £ 290,000 | BUY | 6 / 10 | 0.12 KM |
Nearby Properties
| Address | Price | Distance |
|---|---|---|
| 13 Carrington Avenue | £ 125,000 | 0.08 KM |
| 17 Carrington Avenue | £ 307,000 | 0.08 KM |
| 29 Carrington Avenue | £ 203,000 | 0.08 KM |
| 9 Carrington Avenue | £ 185,000 | 0.08 KM |
| 28 Carrington Avenue | £ 257,500 | 0.08 KM |