Prebend Gardens, London, W6
By Jefferies James London
£ 600,000
Reviews
3 out of 5 stars
Jefferies James London says ..
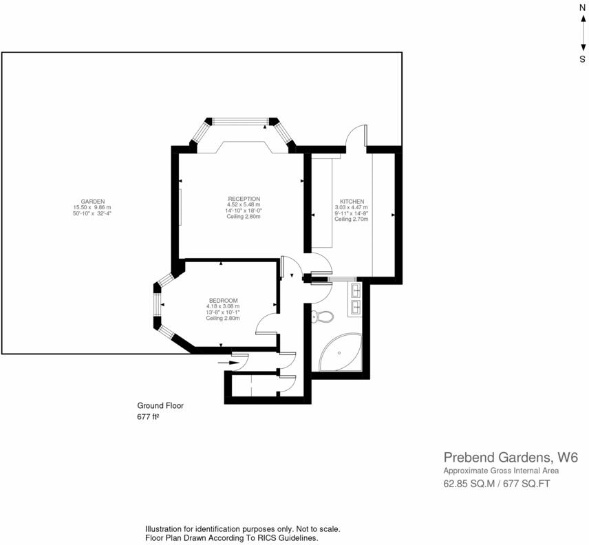
One Bedroom Garden Flat with Lease Extended to 999 Years
Property Oracle says ..
This is a one-bedroom apartment located in the Chiswick Homefields area of London. The property benefits from a garden and is situated in a convenient location with access to schools and transportation. However, the interior appears to be in need of some modernisation, particularly the bathroom. The price seems reasonable for the location and size, but potential buyers should factor in renovation costs.
Therefore, we give this property 6 / 10. *Disclaimer: This is our option and does constitute a recommendation or financial advice. Do your own research. *
- Price
- 7
- Condition
- 5
- Location
- 7
- Land
- 6
- Bedrooms
- 1
- Bathrooms
- 1
- Sqft (est)
- 293.10
The heatmap indicates the level of crime in the area. The color of the heatmap indicates the crime severity and recency.
Metrics Year-on-Year
- Average area value
- 953,000.00 £Decreased by 11.81 %
- Est sale value
- 196,670.10 £Decreased by 19.45 %
- Average area rental value
- 1,783.00 £/moDecreased by 30.51 %
- Est letting value
- 293.10 £/moUnchanged by 0.00 %
- Est rental Yield
- 2.25 %Decreased by 21.05 %
- Crime Rate
- 6.00 %Unchanged by 0.00 %
Agent Activity
Jefferies James London created the listing.
Nearby Schools
| Name | Type | Ofsted | Distance |
|---|---|---|---|
| Artsed Day School And Sixth Form | Other Independent School | 0.64 KM | |
| St Peter'S Primary School | Voluntary Aided School | Outstanding | 0.81 KM |
| Good Shepherd Rc Primary School | Voluntary Aided School | Outstanding | 0.83 KM |
| Chiswick And Bedford Park Preparatory School | Other Independent School | 0.87 KM | |
| Ravenscourt Park Preparatory School | Other Independent School | 0.92 KM |
Images
Nearby Streets
| Name | Average Price | Average Sqft | Distance |
|---|---|---|---|
| Wilson Walk | £ 0 | 0 | 0.00 KM |
| Goldhawk Road | £ 800,000 | 0 | 0.00 KM |
| British Grove | £ 0 | 0 | 0.00 KM |
| Priory Gardens | £ 0 | 0 | 0.00 KM |
| Askew Road | £ 0 | 0 | 0.00 KM |
Nearby Transport
| Name | NLC | TLC | Distance |
|---|---|---|---|
| Acton Central | 1404 | ACC | 2.33 KM |
| South Acton | 1452 | SAT | 2.64 KM |
| Barnes Bridge | 5580 | BNI | 2.68 KM |
| Chiswick | 5583 | CHK | 2.82 KM |
| Barnes | 5551 | BNS | 3.19 KM |
Nearby Listings
| Address | Price | Type | Score | Distance |
|---|---|---|---|---|
| Prebend Gardens, London, W6 | £ 600,000 | BUY | 6 / 10 | 0.00 KM |
| Prebend Gardens, London, W6 | £ 550,000 | BUY | Unknown | 0.00 KM |
| Prebend Gardens, London, W6 | £ 315,000 | BUY | Unknown | 0.00 KM |
| Prebend Gardens, London, W6 | £ 1,500,000 | BUY | Unknown | 0.06 KM |
| 8a Vaughan Avenue, Stamford Brook, London, W6 | £ 725,000 | BUY | 5 / 10 | 0.10 KM |
Nearby Properties
| Address | Price | Distance |
|---|---|---|
| 16 Vaughan Avenue | £ 1,710,000 | 0.06 KM |
| 11 Vaughan Avenue | £ 1,931,676 | 0.06 KM |
| 6a Vaughan Avenue | £ 355,000 | 0.06 KM |
| 9 Vaughan Avenue | £ 1,925,000 | 0.06 KM |
| 8 Vaughan Avenue | £ 263,000 | 0.06 KM |