Nab Wood Drive, Shipley, West Yorkshire, BD18
By Dacre Son & Hartley
£ 500,000
Reviews
3 out of 5 stars
Dacre Son & Hartley says ..
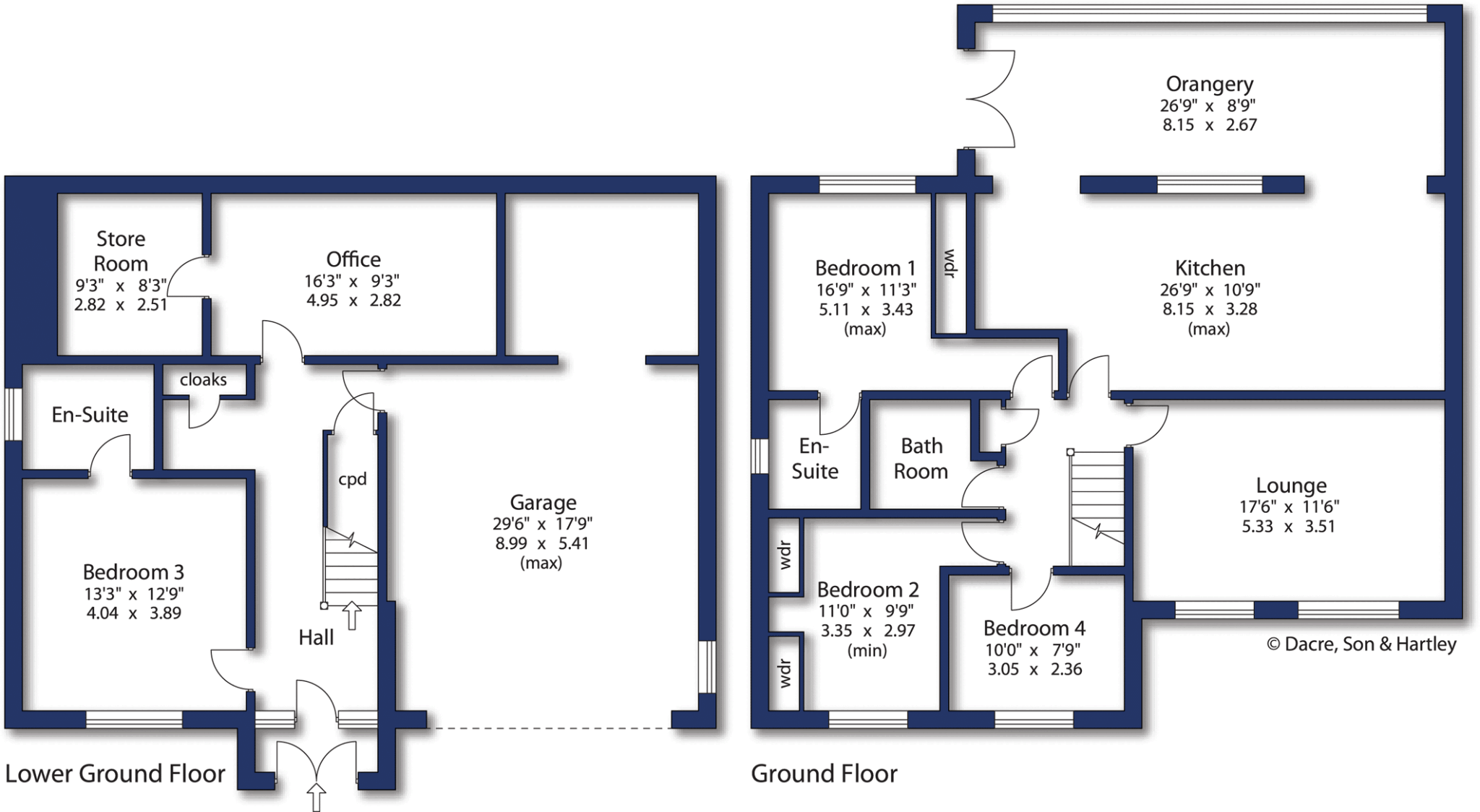
A spacious recently extended detached family home offering four bedrooms and ample living accommodation with integral garage and generous gardens. Positioned towards the periphery of Nab Wood with long reaching views.
Property Oracle says ..
This four-bedroom, three-bathroom property situated in Nab Wood, Shipley, presents a compelling proposition for prospective buyers. The property boasts a spacious and well-presented interior with a recently modernized kitchen. Interior photographs reveal substantial living spaces and updated bathrooms, pointing to a home maintained to a high standard. Externally, the property features a notable garden area with attractive landscaping and a substantial garden shed, potentially suitable for various leisure activities. There is also a good-sized patio area, making for a welcoming outdoor living space. The convenience of nearby schools (multiple ‘Good’-rated options within a short distance), as well as train station access, enhances the property’s appeal. However, the lack of precise plot size data and the absence of comprehensive local comparable sales data make it slightly difficult to definitively assess value for money. In summary, potential buyers should weigh the desirable features against the list price in the context of the broader market and current economic conditions within the specific area.
Therefore, we give this property 7 / 10. *Disclaimer: This is our option and does constitute a recommendation or financial advice. Do your own research. *
- Price
- 7
- Condition
- 8
- Location
- 7
- Land
- 6
- Bedrooms
- 4
- Bathrooms
- 3
- Sqft (est)
- 1,752.04
The heatmap indicates the level of crime in the area. The color of the heatmap indicates the crime severity and recency.
Metrics Year-on-Year
- Average area value
- 256,364.00 £Increased by 21.19 %
- Est sale value
- 488,819.16 £Increased by 30.37 %
- Average area rental value
- 934.00 £/moIncreased by 31.00 %
- Est letting value
- 1,752.04 £/mo
- Est rental Yield
- 4.37 %Increased by 8.17 %
- Crime Rate
- 4.00 %Unchanged by 0.00 %
Agent Activity
Dacre Son & Hartley created the listing.
Nearby Schools
| Name | Type | Ofsted | Distance |
|---|---|---|---|
| High Park School | Academy Special Sponsor Led | Good | 1.13 KM |
| Beckfoot Upper Heaton | Academy Sponsor Led | Good | 1.15 KM |
| Belle Vue Girls' Academy | Academy Converter | Good | 1.16 KM |
| Dixons Cottingley Academy | Academy Sponsor Led | 1.19 KM | |
| Chellow Heights Special School | Community Special School | Good | 1.20 KM |
Images
Nearby Streets
| Name | Average Price | Average Sqft | Distance |
|---|---|---|---|
| Chak Gardens | £ 106,250 | 0 | 0.00 KM |
| South Grove | £ 0 | 0 | 0.00 KM |
| Oaklands | £ 375,000 | 0 | 0.00 KM |
| Glenview Close | £ 0 | 0 | 0.00 KM |
| Grange Avenue | £ 202,500 | 0 | 0.00 KM |
Nearby Transport
| Name | NLC | TLC | Distance |
|---|---|---|---|
| Saltaire | 8561 | SAE | 2.16 KM |
| Shipley (Yorks) | 8347 | SHY | 3.74 KM |
| Bingley | 8553 | BIY | 4.06 KM |
| Frizinghall | 8556 | FZH | 4.29 KM |
| Crossflatts | 8554 | CFL | 5.38 KM |
Nearby Listings
| Address | Price | Type | Score | Distance |
|---|---|---|---|---|
| Nab Wood Drive, Shipley, West Yorkshire, BD18 | £ 500,000 | BUY | 7 / 10 | 0.00 KM |
| Nab Wood Drive, Shipley, West Yorkshire, BD18 | £ 315,000 | BUY | Unknown | 0.00 KM |
| Nab Wood Drive, Shipley, West Yorkshire, BD18 | £ 270,000 | BUY | Unknown | 0.00 KM |
| Nab Wood Drive, Nabwood | £ 250,000 | BUY | Unknown | 0.01 KM |
| Nab Wood Drive, Nabwood | £ 240,000 | BUY | 7 / 10 | 0.01 KM |
Nearby Properties
| Address | Price | Distance |
|---|---|---|
| 79 Nab Wood Drive | £ 160,000 | 0.01 KM |
| 41 Nab Wood Drive | £ 152,500 | 0.01 KM |
| 85 Nab Wood Drive | £ 177,500 | 0.01 KM |
| 73 Nab Wood Drive | £ 185,000 | 0.01 KM |
| 156 Nab Wood Drive | £ 65,360 | 0.01 KM |