Chancellors says ..
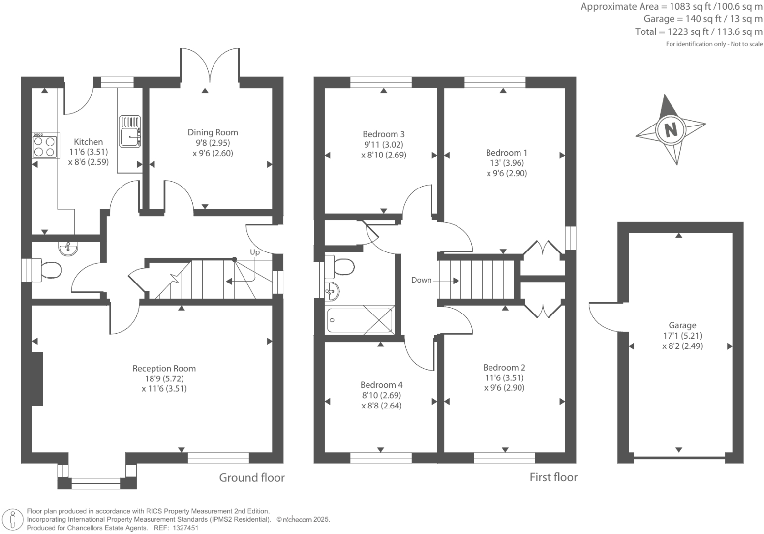
Situated in a quiet cul-de-sac on the edge of Hereford, Chancellors is proud to present this four bedroom detached family home. Immaculately presented, viewing is highly recommended to not only appreciate its location but also its potential.
Property Oracle says ..
Therefore, we give this property 7 / 10. *Disclaimer: This is our option and does constitute a recommendation or financial advice. Do your own research. *
- Price
- 7
- Condition
- 8
- Location
- 8
- Land
- 7
- Bedrooms
- 4
- Bathrooms
- 1
The heatmap indicates the level of crime in the area. The color of the heatmap indicates the crime severity and recency.
Metrics Year-on-Year
- Average area value
- 225,619.00 £Decreased by 6.60 %
- Average area rental value
- 850.00 £/moDecreased by 4.92 %
- Est rental Yield
- 4.52 %Increased by 1.80 %
- Crime Rate
- 30.00 %Unchanged by 0.00 %
from 241,550.00 £
from 894.00 £/mo
from 4.44 %
from 30.00 %
Agent Activity
Chancellors created the listing.
Nearby Schools
| Name | Type | Ofsted | Distance |
|---|---|---|---|
| St Paul'S Cofe Primary School | Academy Converter | Outstanding | 0.93 KM |
| The Bishop Of Hereford'S Bluecoat School | Voluntary Aided School | Good | 1.07 KM |
| Hampton Dene Primary School | Community School | Good | 1.16 KM |
| Aylestone School | Community School | Requires improvement | 2.37 KM |
| Broadlands Children Centre | Children's Centre | 2.44 KM |
Images
Nearby Streets
| Name | Average Price | Average Sqft | Distance |
|---|---|---|---|
| Auckland Close | £ 0 | 0 | 0.00 KM |
| Braemar Gardens | £ 600,000 | 0 | 0.00 KM |
| Hampton Dene Road | £ 0 | 0 | 0.00 KM |
| Harvey Road | £ 293,500 | 0 | 0.00 KM |
| Grange Gardens | £ 0 | 0 | 0.00 KM |
Nearby Transport
| Name | NLC | TLC | Distance |
|---|---|---|---|
| Hereford | 3607 | HFD | 3.63 KM |
Nearby Listings
| Address | Price | Type | Score | Distance |
|---|---|---|---|---|
| Hampton Park, Hereford, HR1 | £ 425,000 | BUY | 7 / 10 | 0.00 KM |
| Auckland Close, Hampton Park, Hereford, HR1 | £ 400,000 | BUY | 7 / 10 | 0.02 KM |
| Eleanor Avenue, Hereford, Herefordshire | £ 435,000 | BUY | Unknown | 0.06 KM |
| Kirkland Close, Hereford | £ 269,995 | BUY | 7 / 10 | 0.11 KM |
| Sudbury Avenue, Hampton Park, HR1 1YA | £ 450,000 | BUY | 7 / 10 | 0.14 KM |
Nearby Properties
| Address | Price | Distance |
|---|---|---|
| 14 Auckland Close | £ 260,000 | 0.02 KM |
| 13 Eleanor Avenue | £ 247,000 | 0.09 KM |
| 14 Eleanor Avenue | £ 285,000 | 0.09 KM |
| 7 Eleanor Avenue | £ 391,000 | 0.09 KM |
| 2 Eleanor Avenue | £ 290,000 | 0.09 KM |