Bradleys says ..
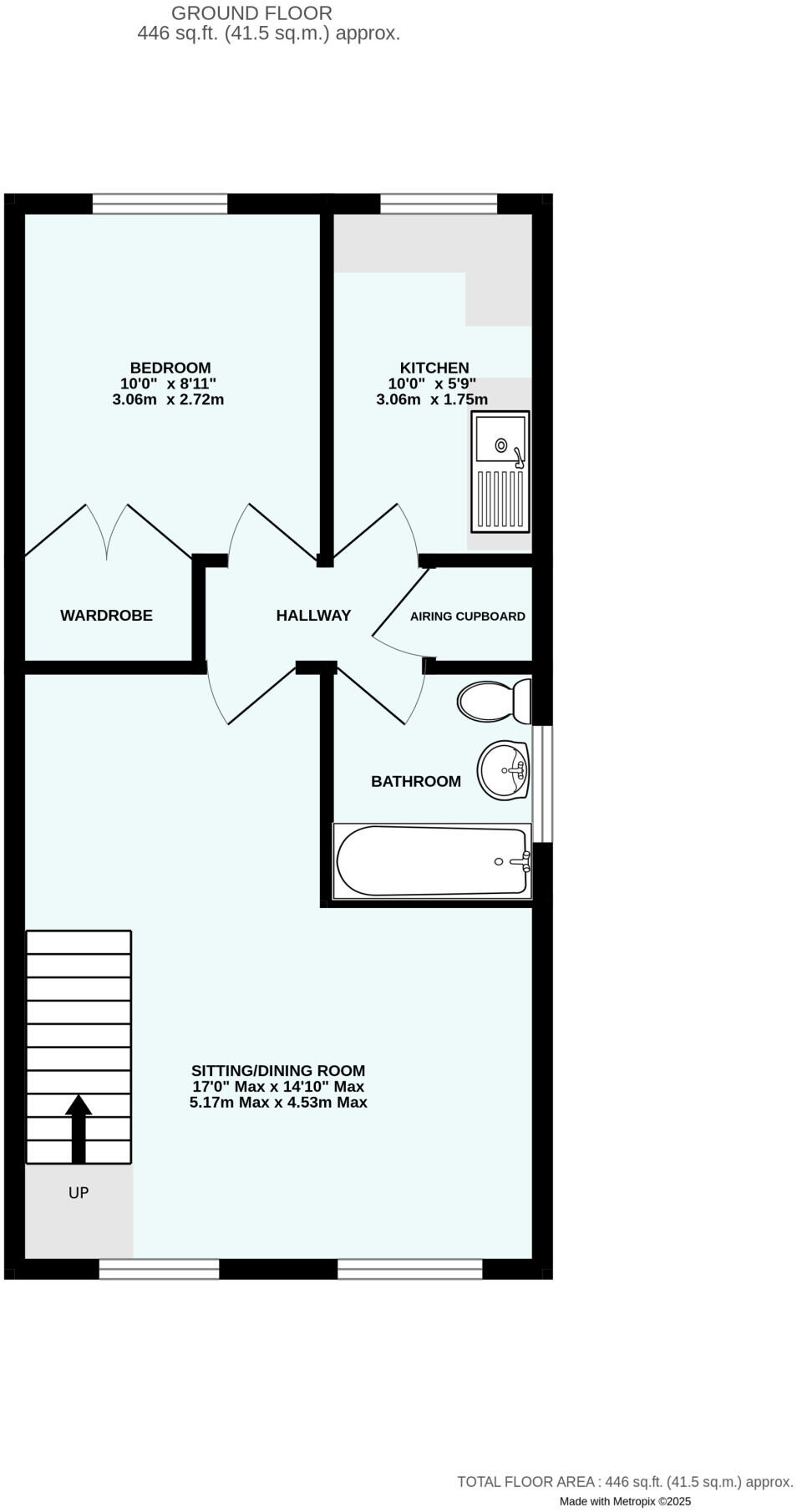
1 Bedroom First Floor Flat in Prime Location Offered to the market for the first time since new, this one bedroom first floor flat is in a prime location in St Thomas within level walking distance to all local amenities and public transport. The property comes with an allocated parking ...
Property Oracle says ..
Therefore, we give this property 6 / 10. *Disclaimer: This is our option and does constitute a recommendation or financial advice. Do your own research. *
- Price
- 8
- Condition
- 6
- Location
- 8
- Land
- 3
- Bedrooms
- 1
- Bathrooms
- 1
- Sqft (est)
- 398.75
The heatmap indicates the level of crime in the area. The color of the heatmap indicates the crime severity and recency.
Metrics Year-on-Year
- Average area value
- 421,780.00 £Increased by 21.83 %
- Est sale value
- 224,895.00 £Increased by 75.70 %
- Average area rental value
- 1,390.00 £/moDecreased by 6.33 %
- Est letting value
- 398.75 £/moUnchanged by 0.00 %
- Est rental Yield
- 3.95 %Decreased by 23.15 %
- Crime Rate
- 2.00 %Unchanged by 0.00 %
from 346,205.00 £
from 127,998.75 £
from 1,484.00 £/mo
from 398.75 £/mo
from 5.14 %
from 2.00 %
Agent Activity
Bradleys created the listing.
Nearby Schools
| Name | Type | Ofsted | Distance |
|---|---|---|---|
| St Thomas Primary School | Academy Converter | Good | 0.28 KM |
| West Exe Nursery School | Local Authority Nursery School | Outstanding | 0.52 KM |
| Montgomery Primary School | Foundation School | Good | 0.63 KM |
| West Exe Children'S Centre | Children's Centre | 0.64 KM | |
| West Exe School | Academy Sponsor Led | 0.75 KM |
Images
Nearby Streets
| Name | Average Price | Average Sqft | Distance |
|---|---|---|---|
| Waterloo Road | £ 0 | 0 | 0.00 KM |
| St Edmunds Court | £ 0 | 0 | 0.00 KM |
| Clarence Road | £ 0 | 0 | 0.00 KM |
| Edwin Road | £ 0 | 0 | 0.00 KM |
| Shelley Close | £ 375,000 | 0 | 0.00 KM |
Nearby Transport
| Name | NLC | TLC | Distance |
|---|---|---|---|
| Exeter St Thomas | 3414 | EXT | 0.46 KM |
| Exeter Central | 5755 | EXC | 1.66 KM |
| Exeter St David'S | 3410 | EXD | 1.74 KM |
| St James Park (Exeter) | 5751 | SJP | 2.87 KM |
| Polsloe Bridge | 3422 | POL | 4.76 KM |
Nearby Listings
| Address | Price | Type | Score | Distance |
|---|---|---|---|---|
| Ferndale Road, Exeter, Devon | £ 150,000 | BUY | 6 / 10 | 0.00 KM |
| Ferndale Road, Exeter, Devon, EX2 | £ 100,500 | BUY | 5 / 10 | 0.00 KM |
| Sanford Place, Exeter | £ 260,000 | BUY | Unknown | 0.04 KM |
| Regent Street, St. Thomas, EX2 | £ 270,000 | BUY | 6 / 10 | 0.10 KM |
| Chieftain Way, St Thomas, Exeter | £ 425,000 | BUY | 8 / 10 | 0.10 KM |
Nearby Properties
| Address | Price | Distance |
|---|---|---|
| 13 Ferndale Road | £ 232,500 | 0.01 KM |
| 8 Ferndale Road | £ 220,000 | 0.01 KM |
| 23 Ferndale Road | £ 174,000 | 0.01 KM |
| 37 Ferndale Road | £ 115,000 | 0.01 KM |
| 34 Ferndale Road | £ 209,950 | 0.01 KM |