Purplebricks says ..
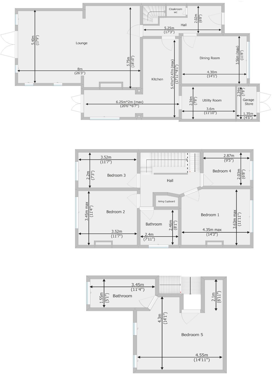
Key features • Five bedrooms • Extended family home • Walking distance to three Grammar Schools and two High Schools • Kitchen / Breakfast Room • Two reception rooms. One extended • Large180’ established rear Garden • Sought after location The property is situated i...
Property Oracle says ..
The property is located in the Judd area of Tonbridge, Kent. It is a five-bedroom, two-bathroom house with a list price of £970,000. The property is situated close to several schools, including The Judd School (Outstanding Ofsted rating) and Sussex Road Community Primary School (Good Ofsted rating). Tonbridge train station is also within a reasonable distance, providing convenient access to London and other major cities. Based on the provided images, the property appears to be in good condition, though some areas may benefit from modernisation. The property includes a garden, which is a desirable feature in this area. The average house price in the area is £269,779, and the average price per square foot is £246. Given the property’s size (1,744.83 sqft), location, condition, and amenities, the list price seems relatively high compared to other properties in the area, though comparable to similar properties on Quarry Hill Road. However, the lack of plot size information makes a definitive statement on price difficult.
Therefore, we give this property 7 / 10. *Disclaimer: This is our option and does constitute a recommendation or financial advice. Do your own research. *
- Price
- 6
- Condition
- 8
- Location
- 9
- Land
- 7
- Bedrooms
- 5
- Bathrooms
- 2
- Sqft (est)
- 1,744.83
The heatmap indicates the level of crime in the area. The color of the heatmap indicates the crime severity and recency.
Metrics Year-on-Year
- Average area value
- 454,908.00 £Decreased by 1.21 %
- Est sale value
- 1,148,098.14 £Increased by 34.29 %
- Average area rental value
- 1,150.00 £/moDecreased by 30.30 %
- Est letting value
- 1,744.83 £/moUnchanged by 0.00 %
- Est rental Yield
- 3.03 %Decreased by 29.53 %
- Crime Rate
- 7.00 %Unchanged by 0.00 %
Agent Activity
Purplebricks created the listing.
Nearby Schools
| Name | Type | Ofsted | Distance |
|---|---|---|---|
| West Kent And Ashford College | Further Education | Requires improvement | 0.27 KM |
| The Judd School | Voluntary Aided School | Outstanding | 0.29 KM |
| Sussex Road Community Primary School | Community School | Good | 0.52 KM |
| The Hayesbrook School | Academy Converter | Good | 0.66 KM |
| South Tonbridge Children'S Centre | Children's Centre | 0.88 KM |
Images
Nearby Streets
| Name | Average Price | Average Sqft | Distance |
|---|---|---|---|
| Quarry Rise | £ 0 | 0 | 0.00 KM |
| MU29 | £ 0 | 0 | 0.00 KM |
| MU31 | £ 0 | 0 | 0.00 KM |
| Northcote Road | £ 0 | 0 | 0.00 KM |
| Fairview Close | £ 0 | 0 | 0.00 KM |
Nearby Transport
| Name | NLC | TLC | Distance |
|---|---|---|---|
| Tonbridge | 5229 | TON | 0.77 KM |
| High Brooms | 5235 | HIB | 4.31 KM |
| Hildenborough | 5236 | HLB | 5.28 KM |
| Leigh (Kent) | 5294 | LIH | 6.21 KM |
| Tunbridge Wells | 5230 | TBW | 6.27 KM |
Nearby Listings
| Address | Price | Type | Score | Distance |
|---|---|---|---|---|
| Quarry Rise, Tonbridge, TN9 | £ 970,000 | BUY | 7 / 10 | 0.00 KM |
| Quarry Rise, Tonbridge | £ 675,000 | BUY | 5 / 10 | 0.00 KM |
| Quarry Hill Road, Tonbridge | £ 1,000,000 | BUY | 8 / 10 | 0.10 KM |
| Quarry Hill Road, Tonbridge, TN9 2PE | £ 1,250,000 | BUY | 8 / 10 | 0.10 KM |
| Quarry Hill Road, Tonbridge, Kent, TN9 | £ 975,000 | BUY | 7 / 10 | 0.10 KM |
Nearby Properties
| Address | Price | Distance |
|---|---|---|
| 75 Quarry Hill Road | £ 940,000 | 0.10 KM |
| 66 Quarry Hill Road | £ 647,000 | 0.10 KM |
| 68 Quarry Hill Road | £ 499,950 | 0.10 KM |
| 61 Quarry Hill Road | £ 980,000 | 0.10 KM |
| 73 Quarry Hill Road | £ 875,000 | 0.10 KM |