Land To The Rear Of 101 Old Farm Avenue, Sidcup, Kent, DA15
By Kallars
£ 310,000
Reviews
2 out of 5 stars
Kallars says ..
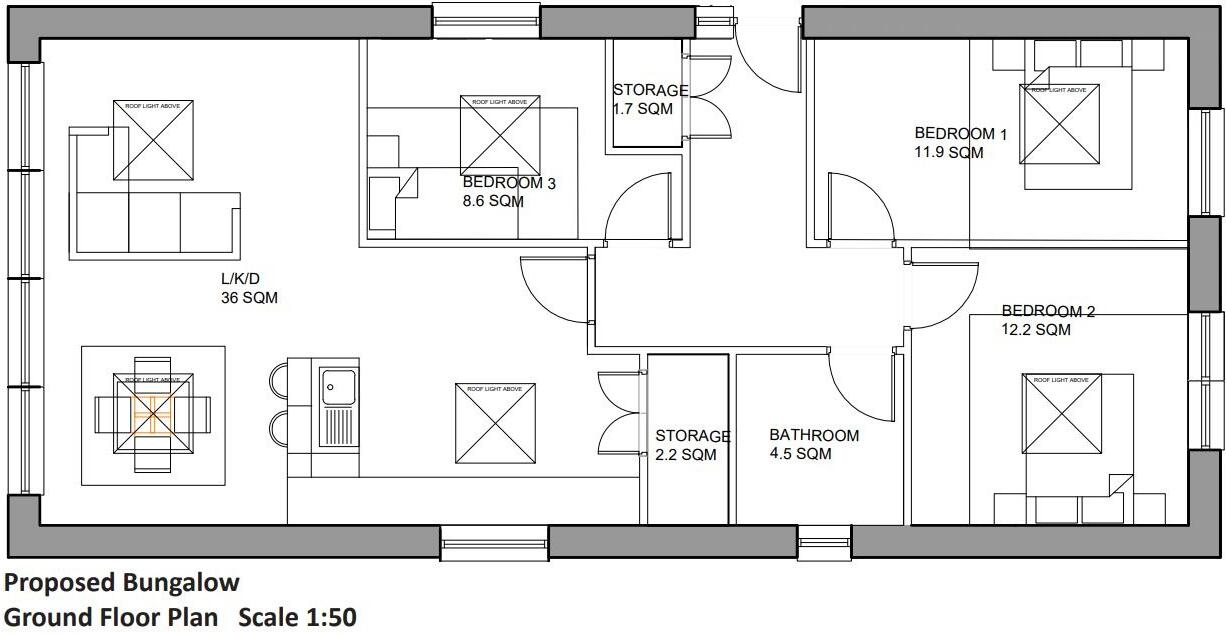
FULL PLANNING PERMISSION GRANTED FOR THREE BEDROOM BUNGALOW
Property Oracle says ..
This listing is for a plot of land at Land To The Rear Of 101 Old Farm Avenue, Sidcup, Kent, DA15 8AQ, with full planning permission granted for a three-bedroom bungalow. The location is a positive aspect, offering a balance between suburban tranquility and convenient access to transport links and well-regarded schools. The proximity to Sidcup station provides easy commutes to London. However, the area’s detailed character requires further investigation to ascertain its long-term desirability.
The planned bungalow itself is a significant selling point; providing a new and modern dwelling avoiding the costs and uncertainty of home renovations. The artist’s impressions suggest a well-designed and aesthetically pleasing structure. However, it is crucial to review the planning permission documents to fully comprehend the specifics of the design and any potential limitations. The absence of details about the plot size is a notable drawback, making a complete assessment of the property’s value difficult.
The list price of £310,000 necessitates careful scrutiny. Considering comparable properties in the vicinity, the price seems competitive, particularly when considering the convenience of purchasing a property with planning permission granted, thus negating additional costs. Nonetheless, before committing to a purchase, thorough due diligence is essential. This includes independent cost assessments for the actual construction and professional appraisals of the land’s value, in addition to a comprehensive examination of the planning permission documentation. The property therefore presents a reasonable investment opportunity, provided the requisite groundwork is undertaken.
Therefore, we give this property 5 / 10. *Disclaimer: This is our option and does constitute a recommendation or financial advice. Do your own research. *
- Price
- 7
- Condition
- 4
- Location
- 7
- Land
- 5
- Bedrooms
- 3
- Bathrooms
- 1
- Sqft (est)
- 777.15
The heatmap indicates the level of crime in the area. The color of the heatmap indicates the crime severity and recency.
Metrics Year-on-Year
- Average area value
- 530,000.00 £Increased by 4.88 %
- Est sale value
- 481,833.00 £Increased by 7.27 %
- Average area rental value
- 2,283.00 £/moIncreased by 32.04 %
- Est letting value
- 1,554.30 £/moIncreased by 100.00 %
- Est rental Yield
- 5.17 %Increased by 25.79 %
- Crime Rate
- 1.00 %Unchanged by 0.00 %
Agent Activity
Kallars marked this listing as sold.
Kallars created the listing.
Nearby Schools
| Name | Type | Ofsted | Distance |
|---|---|---|---|
| Burnt Oak Junior School | Academy Sponsor Led | Outstanding | 0.64 KM |
| Longlands Primary School | Community School | Good | 0.73 KM |
| Holy Trinity Lamorbey Church Of England School | Academy Converter | Good | 0.83 KM |
| Benedict House Preparatory School | Other Independent School | Good | 0.84 KM |
| West Lodge School | Other Independent School | 0.98 KM |
Images
Nearby Streets
| Name | Average Price | Average Sqft | Distance |
|---|---|---|---|
| Ham Shades Close | £ 295,750 | 0 | 0.00 KM |
| Elder Close | £ 0 | 0 | 0.00 KM |
| Grange Close | £ 320,000 | 0 | 0.00 KM |
| Kingsmead Close | £ 0 | 0 | 0.00 KM |
| Sandhurst Road | £ 0 | 0 | 0.00 KM |
Nearby Transport
| Name | NLC | TLC | Distance |
|---|---|---|---|
| Sidcup | 5125 | SID | 0.92 KM |
| New Eltham | 5119 | NEH | 2.79 KM |
| Falconwood | 5137 | FCN | 3.21 KM |
| Albany Park | 5132 | AYP | 3.33 KM |
| Welling | 5128 | WLI | 3.35 KM |
Nearby Listings
| Address | Price | Type | Score | Distance |
|---|---|---|---|---|
| Land To The Rear Of 101 Old Farm Avenue, Sidcup, Kent, DA15 | £ 310,000 | BUY | 5 / 10 | 0.00 KM |
| Bursdon Close, Sidcup, Kent, DA15 | £ 450,000 | BUY | Unknown | 0.04 KM |
| Old Farm Avenue, Sidcup | £ 550,000 | BUY | 6 / 10 | 0.06 KM |
| Bursdon Close, Sidcup, DA15 8AQ | £ 350,000 | BUY | 7 / 10 | 0.10 KM |
| Old Farm Avenue, Sidcup, DA15 8AJ | £ 525,000 | BUY | Unknown | 0.16 KM |
Nearby Properties
| Address | Price | Distance |
|---|---|---|
| 43 Bursdon Close | £ 75,000 | 0.10 KM |
| 2 Bursdon Close | £ 382,500 | 0.10 KM |
| 7 Bursdon Close | £ 195,000 | 0.10 KM |
| 39 Bursdon Close | £ 326,000 | 0.10 KM |
| 41 Bursdon Close | £ 485,000 | 0.10 KM |