Calder Road, North Shore, FY2
By The Square Room
£ 219,950
Reviews
3 out of 5 stars
The Square Room says ..
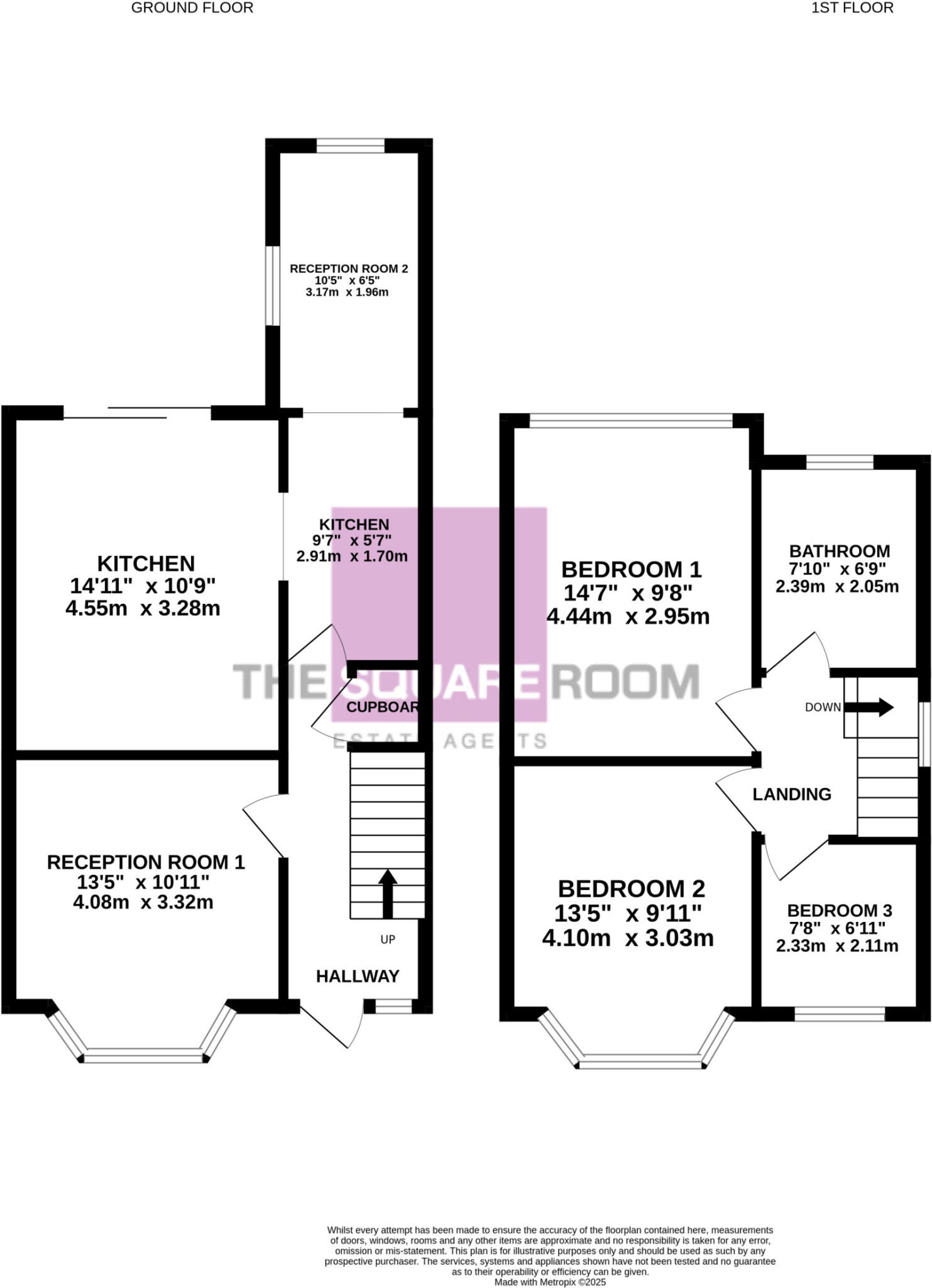
STUNNING THREE BEDROOM SEMI DETACHED FAMILY HOME - POPULAR RESIDENTIAL LOCATION - EASY ACCESS TO NORTH SHORE GOLFCOURSE AND THE SEA FRONT - DRIVEWAY FOR TWO CARS - LANDSCAPED SPACIOUS REAR GARDEN - MODERN FITTED KITCHEN AND BATHROOM - READY TO MOVE INTO - MUST VIEW TO APPREACIATE
Property Oracle says ..
Therefore, we give this property 7 / 10. *Disclaimer: This is our option and does constitute a recommendation or financial advice. Do your own research. *
- Price
- 6
- Condition
- 8
- Location
- 7
- Land
- 7
- Bedrooms
- 3
- Bathrooms
- 1
- Sqft (est)
- 807.04
The heatmap indicates the level of crime in the area. The color of the heatmap indicates the crime severity and recency.
Metrics Year-on-Year
- Average area value
- 184,997.00 £Increased by 10.26 %
- Est sale value
- 166,250.24 £Increased by 42.07 %
- Average area rental value
- 800.00 £/moIncreased by 8.55 %
- Est letting value
- 0.00 £/mo
- Est rental Yield
- 5.19 %Decreased by 1.52 %
- Crime Rate
- 0.00 %
from 167,777.00 £
from 117,020.80 £
from 737.00 £/mo
from 0.00 £/mo
from 5.27 %
from 0.00 %
Agent Activity
The Square Room created the listing.
Nearby Schools
| Name | Type | Ofsted | Distance |
|---|---|---|---|
| Langdale Free School | Free Schools | Good | 0.57 KM |
| Holy Family Catholic Primary School | Voluntary Aided School | Good | 0.62 KM |
| Unity College Blackpool Children'S Centre | Children's Centre Linked Site | 0.62 KM | |
| Unity Academy Blackpool | Academy Sponsor Led | Good | 0.66 KM |
| Westminster Primary Academy | Academy Converter | 1.00 KM |
Images
Nearby Streets
| Name | Average Price | Average Sqft | Distance |
|---|---|---|---|
| Argyll Court | £ 172,500 | 0 | 0.00 KM |
| Tower View | £ 0 | 0 | 0.00 KM |
| Regency Gardens | £ 227,500 | 0 | 0.00 KM |
| Westminster Road | £ 0 | 0 | 0.00 KM |
| Carlton Grove | £ 0 | 0 | 0.00 KM |
Nearby Transport
| Name | NLC | TLC | Distance |
|---|---|---|---|
| Layton (Lancs) | 2669 | LAY | 1.71 KM |
| Blackpool North | 2739 | BPN | 1.87 KM |
| Blackpool South | 2740 | BPS | 4.41 KM |
| Blackpool Pleasure Beach | 2738 | BPB | 5.67 KM |
| Poulton-Le-Fylde | 2671 | PFY | 6.14 KM |
Nearby Listings
| Address | Price | Type | Score | Distance |
|---|---|---|---|---|
| Calder Road, North Shore, FY2 | £ 219,950 | BUY | 7 / 10 | 0.00 KM |
| Calder Road, Blackpool, Lancashire, FY2 | £ 205,000 | BUY | 7 / 10 | 0.04 KM |
| Pierston Avenue, Bispham | £ 179,950 | BUY | 6 / 10 | 0.11 KM |
| Pierston Avenue, North Shore, FY2 | £ 175,000 | BUY | Unknown | 0.12 KM |
| Knowle Avenue, Bispham, FY2 | £ 239,950 | BUY | Unknown | 0.14 KM |
Nearby Properties
| Address | Price | Distance |
|---|---|---|
| 52 Calder Road | £ 168,000 | 0.04 KM |
| 59 Calder Road | £ 145,000 | 0.04 KM |
| 60 Calder Road | £ 147,500 | 0.04 KM |
| 50 Calder Road | £ 152,500 | 0.04 KM |
| 46 Calder Road | £ 155,000 | 0.04 KM |