Cherry Tree Lane, Ely, Soham
By Cheffins Residential
£ 150,000
Reviews
3 out of 5 stars
Cheffins Residential says ..
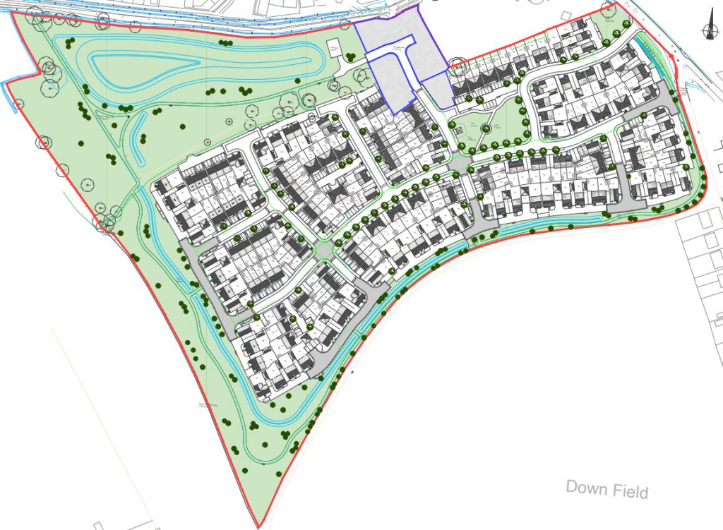
Fantastic opportunity to own one of just eleven Self-Build Plots ranging in size from 207 square metres to 511 square metres situated on the northern edge of the new development off Fordham Road, Soham. The Self-Build Plots are suitable for the construction of two storey detached houses rang...
Property Oracle says ..
This property is located in Soham South, Ely, Cambridgeshire. The property is a house on Cherrytree Lane. Nearby schools include St Andrew’S Cofe Primary School and Soham Village College. The list price is 150,000, which is below the average for the area. The property appears to be in good condition and has a reasonable garden. Overall, this property seems like a good opportunity for potential buyers. However, without internal images, it’s difficult to fully assess the condition of the property. Further investigation is recommended.
Therefore, we give this property 6 / 10. *Disclaimer: This is our option and does constitute a recommendation or financial advice. Do your own research. *
- Price
- 8
- Condition
- 7
- Location
- 6
- Land
- 6
- Bedrooms
- 0
- Bathrooms
- 0
The heatmap indicates the level of crime in the area. The color of the heatmap indicates the crime severity and recency.
Metrics Year-on-Year
- Average area value
- 320,000.00 £Decreased by 9.25 %
- Average area rental value
- 1,225.00 £/moDecreased by 8.10 %
- Est rental Yield
- 4.59 %Increased by 1.10 %
- Crime Rate
- 4.00 %Unchanged by 0.00 %
Agent Activity
Cheffins Residential created the listing.
Nearby Schools
| Name | Type | Ofsted | Distance |
|---|---|---|---|
| St Andrew'S Cofe Primary School | Academy Converter | Good | 1.26 KM |
| Soham Village College | Academy Converter | Good | 1.34 KM |
| The Weatheralls Primary School | Academy Sponsor Led | Requires improvement | 1.84 KM |
| Soham Child And Family Zone | Children's Centre | 2.08 KM | |
| The Shade Primary School | Academy Sponsor Led | Good | 4.05 KM |
Images
Nearby Streets
| Name | Average Price | Average Sqft | Distance |
|---|---|---|---|
| The Crescent | £ 0 | 0 | 0.00 KM |
| Crucion Way | £ 0 | 0 | 0.00 KM |
| Perch Chase | £ 445,000 | 0 | 0.00 KM |
| Minnow Gardens | £ 0 | 0 | 0.00 KM |
| Windmill Close | £ 270,000 | 0 | 0.00 KM |
Nearby Listings
| Address | Price | Type | Score | Distance |
|---|---|---|---|---|
| Cherry Tree Lane, Ely, Soham | £ 150,000 | BUY | 6 / 10 | 0.00 KM |
| Cherry Tree Lane, Ely, Soham | £ 175,000 | BUY | 6 / 10 | 0.00 KM |
| Cherry Tree Lane, Ely, Soham | £ 165,000 | BUY | 6 / 10 | 0.01 KM |
| Cherry Tree Lane, Ely, Soham | £ 150,000 | BUY | 6 / 10 | 0.01 KM |
| Cherry Tree Lane, Ely, Soham | £ 150,000 | BUY | 5 / 10 | 0.01 KM |
Nearby Properties
| Address | Price | Distance |
|---|---|---|
| 23 Fordham Road | £ 285,000 | 0.36 KM |
| 38 Fordham Road | £ 307,850 | 0.36 KM |
| 52a Fordham Road | £ 490,000 | 0.36 KM |
| 33 Fordham Road | £ 273,000 | 0.36 KM |
| 60 Fordham Road | £ 377,500 | 0.36 KM |