AU
Copperfield Drive, Leeds, West Yorkshire
By Auction House
£ 65,000
Reviews
2 out of 5 stars
Auction House says ..
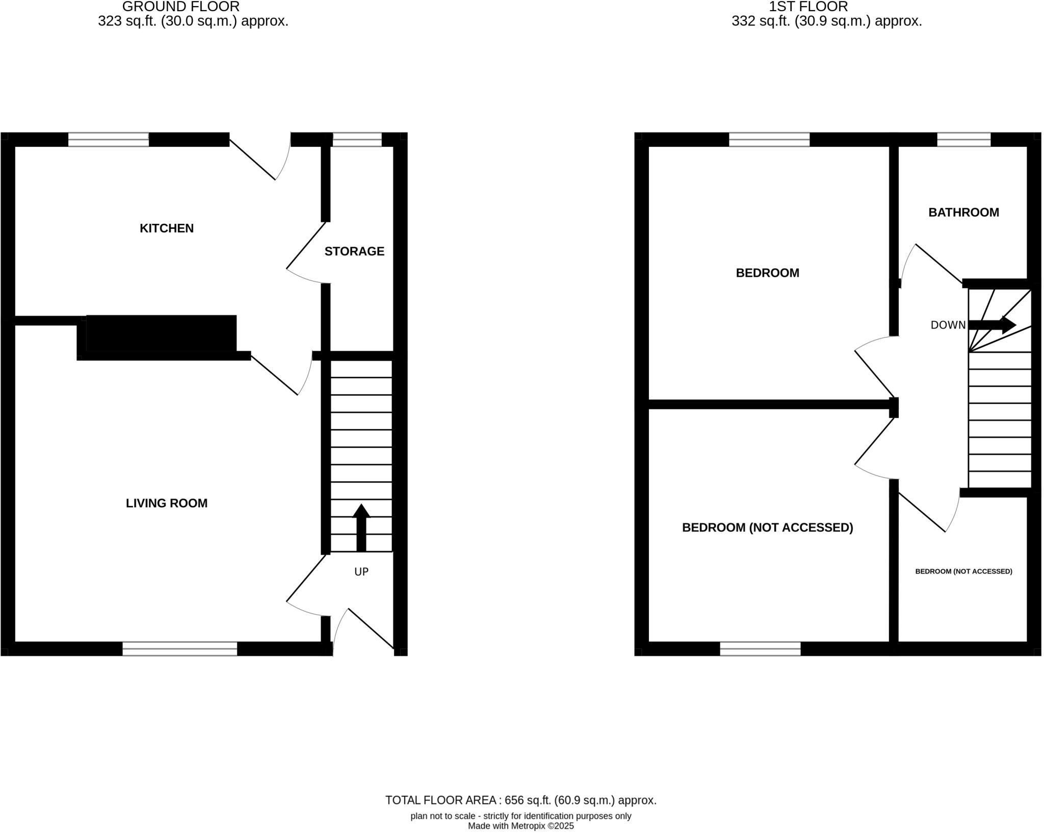
This three bedroom, mid terraced house is in poor internal condition and requires a substantial refurbishment, making it ideal for an investor. The house benefits from on street parking, rear garden and opportunity to add value. This is a popular area for rentals, with similar properties in refur...
Property Oracle says ..
Therefore, we give this property 4 / 10. *Disclaimer: This is our option and does constitute a recommendation or financial advice. Do your own research. *
- Price
- 8
- Condition
- 2
- Location
- 6
- Land
- 3
- Bedrooms
- 3
- Bathrooms
- 1
- Sqft (est)
- 656.00
The heatmap indicates the level of crime in the area. The color of the heatmap indicates the crime severity and recency.
Metrics Year-on-Year
- Average area value
- 134,444.00 £Decreased by 13.73 %
- Est sale value
- 108,240.00 £Decreased by 25.68 %
- Average area rental value
- 1,095.00 £/moIncreased by 5.59 %
- Est letting value
- 656.00 £/moUnchanged by 0.00 %
- Est rental Yield
- 9.77 %Increased by 22.43 %
- Crime Rate
- 17.00 %Unchanged by 0.00 %
from 155,843.00 £
from 145,632.00 £
from 1,037.00 £/mo
from 656.00 £/mo
from 7.98 %
from 17.00 %
Agent Activity
Auction House created the listing.
Nearby Schools
| Name | Type | Ofsted | Distance |
|---|---|---|---|
| The Richmond Hill Academy | Academy Sponsor Led | 0.41 KM | |
| Richmond Hill Children'S Centre | Children's Centre | 0.79 KM | |
| All Saint'S Richmond Hill Church Of England Primary School | Voluntary Aided School | Good | 0.87 KM |
| Trinity Academy Leeds | Free Schools | 1.17 KM | |
| Mount St Mary'S Catholic High School | Voluntary Aided School | Good | 1.21 KM |
Images
Nearby Streets
| Name | Average Price | Average Sqft | Distance |
|---|---|---|---|
| Copperfield Avenue | £ 140,000 | 0 | 0.00 KM |
| Back Cautley Road | £ 0 | 0 | 0.00 KM |
| St Hilda's Place | £ 0 | 0 | 0.00 KM |
| East Park Road | £ 100,000 | 0 | 0.00 KM |
| Spring Close Gardens | £ 0 | 0 | 0.00 KM |
Nearby Transport
| Name | NLC | TLC | Distance |
|---|---|---|---|
| Leeds | 8487 | LDS | 3.52 KM |
| Burley Park | 8500 | BUY | 7.19 KM |
| Cross Gates | 8473 | CRG | 7.40 KM |
| Cottingley | 8505 | COT | 8.22 KM |
| Outwood | 8309 | OUT | 8.31 KM |
Nearby Listings
| Address | Price | Type | Score | Distance |
|---|---|---|---|---|
| Copperfield Drive, Leeds, West Yorkshire | £ 65,000 | BUY | 4 / 10 | 0.00 KM |
| Cautley Road, Cross Green, LS9 | £ 137,500 | BUY | 5 / 10 | 0.06 KM |
| Copperfield Crescent, Leeds | £ 150,000 | BUY | Unknown | 0.06 KM |
| Copperfield Grove, Leeds | £ 130,000 | BUY | Unknown | 0.09 KM |
| Copperfield Grove, Cross Green, LS9 | £ 140,000 | BUY | 6 / 10 | 0.14 KM |
Nearby Properties
| Address | Price | Distance |
|---|---|---|
| 3 Copperfield Drive | £ 50,000 | 0.01 KM |
| 12 Copperfield Drive | £ 55,250 | 0.01 KM |
| 16 Copperfield Drive | £ 208,000 | 0.01 KM |
| 5 Copperfield Drive | £ 34,250 | 0.01 KM |
| 10 Copperfield Drive | £ 82,000 | 0.01 KM |