Fearnalls says ..
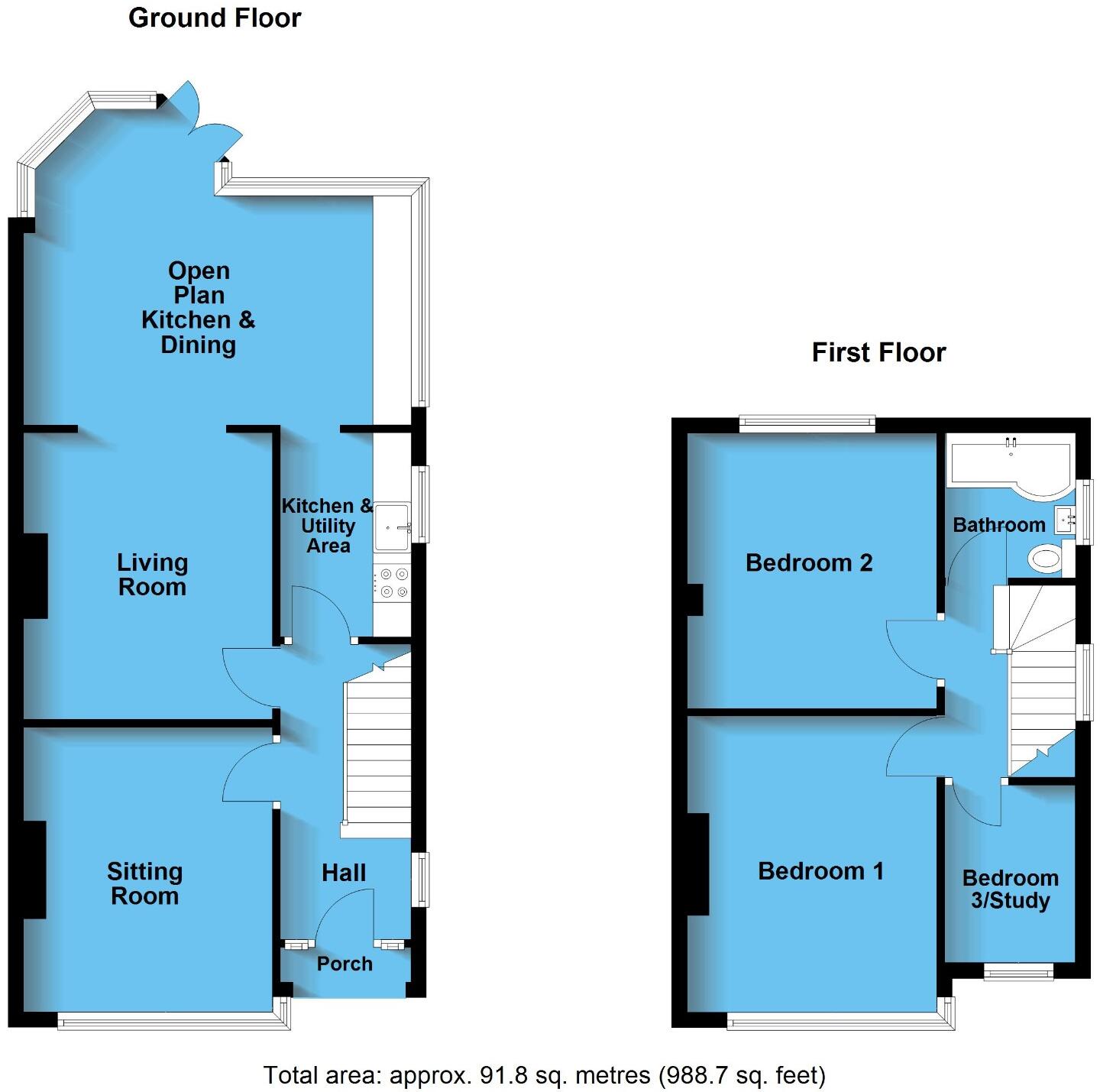
Well presented and extended three bedroom semi detached home with a larger than average rear garden. There is a range of adaptable living accommodation with sitting room, living room, open plan kitchen/diner and further kitchen/utility room. Driveway Parking. Close to local shops and transport links
Property Oracle says ..
This is a three-bedroom semi-detached property located in Upton, Chester. The property benefits from a good-sized garden, a modern kitchen and bathroom, and off-street parking. The property is located close to local amenities, including schools and transport links. The property is in generally good condition but may benefit from some updating. The property is a traditional build and retains some of its original features.
Therefore, we give this property 7 / 10. *Disclaimer: This is our option and does constitute a recommendation or financial advice. Do your own research. *
- Price
- 7
- Condition
- 7
- Location
- 7
- Land
- 8
- Bedrooms
- 3
- Bathrooms
- 1
- Sqft (est)
- 988.13
The heatmap indicates the level of crime in the area. The color of the heatmap indicates the crime severity and recency.
Metrics Year-on-Year
- Average area value
- 364,766.00 £Decreased by 2.54 %
- Est sale value
- 314,225.34 £Increased by 5.30 %
- Average area rental value
- 1,277.00 £/moDecreased by 18.09 %
- Est letting value
- 988.13 £/moUnchanged by 0.00 %
- Est rental Yield
- 4.20 %Decreased by 16.00 %
- Crime Rate
- 6.00 %Unchanged by 0.00 %
Agent Activity
Fearnalls created the listing.
Nearby Schools
| Name | Type | Ofsted | Distance |
|---|---|---|---|
| Dorin Park School & Specialist Sen College | Community Special School | Good | 0.79 KM |
| Ancora House School | Pupil Referral Unit | Outstanding | 0.79 KM |
| Upton Heath Cofe Primary School | Academy Converter | 1.15 KM | |
| Mill View Primary School | Academy Converter | 1.18 KM | |
| University Of Chester | Higher Education Institutions | 1.39 KM |
Images
Nearby Streets
| Name | Average Price | Average Sqft | Distance |
|---|---|---|---|
| The Croft | £ 0 | 0 | 0.00 KM |
| Prince Rupert's Trench | £ 0 | 0 | 0.00 KM |
| Deva Link | £ 550,000 | 0 | 0.00 KM |
| A5116 | £ 0 | 0 | 0.00 KM |
| Delamere Street | £ 0 | 0 | 0.00 KM |
Nearby Transport
| Name | NLC | TLC | Distance |
|---|---|---|---|
| Bache | 2187 | BAC | 0.21 KM |
| Chester | 2412 | CTR | 2.10 KM |
| Capenhurst | 2186 | CPU | 7.79 KM |
| Ellesmere Port | 2121 | ELP | 8.02 KM |
| Overpool | 2157 | OVE | 8.91 KM |
Nearby Listings
| Address | Price | Type | Score | Distance |
|---|---|---|---|---|
| Upton Drive, Upton, Chester | £ 335,000 | BUY | 7 / 10 | 0.00 KM |
| Upton Drive, Upton, Chester, Cheshire, CH2 | £ 325,000 | BUY | 7 / 10 | 0.05 KM |
| Pine Gardens, Upton, Chester, Cheshire, CH2 | £ 300,000 | BUY | 6 / 10 | 0.17 KM |
| Upton Drive, Upton, CH2 | £ 275,000 | BUY | 6 / 10 | 0.19 KM |
| Upton Drive, Upton, CH2 | £ 300,000 | BUY | 7 / 10 | 0.20 KM |
Nearby Properties
| Address | Price | Distance |
|---|---|---|
| 14 Upton Drive | £ 152,000 | 0.02 KM |
| 40 Upton Drive | £ 305,000 | 0.02 KM |
| 7 Upton Drive | £ 380,000 | 0.02 KM |
| 13 Upton Drive | £ 215,000 | 0.02 KM |
| 12 Upton Drive | £ 249,950 | 0.02 KM |