eXp UK says ..
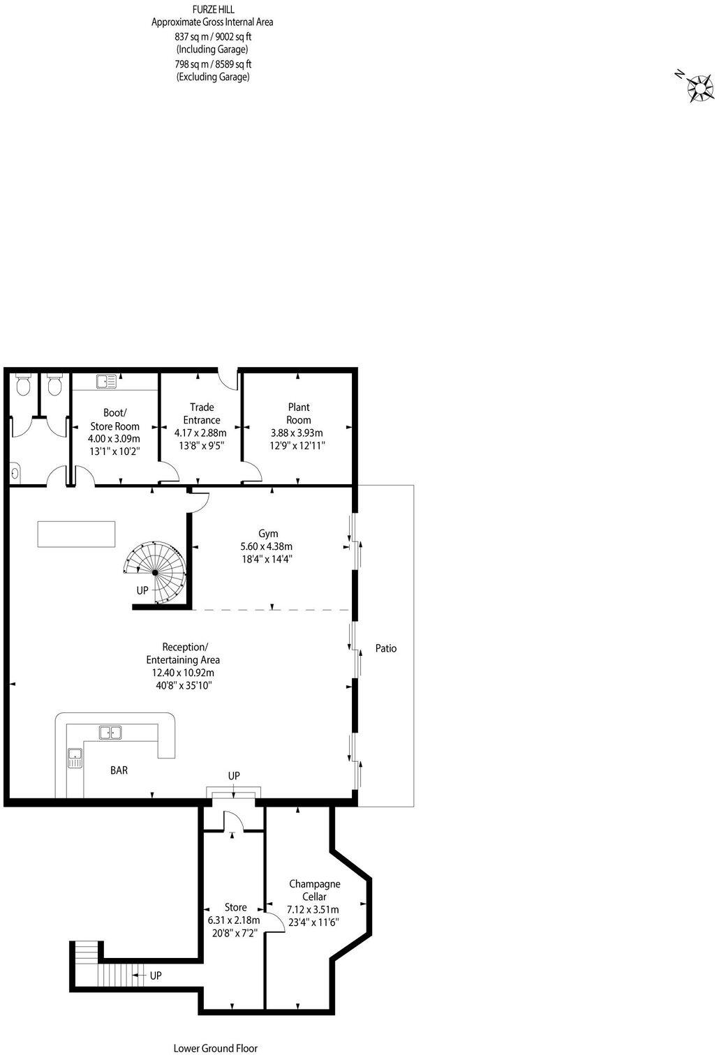
REF: NK1268 Indoor Jacuzzi & Sauna | 41ft Kitchen/Diner | Second Kitchen | Lift to a First Floor Bedroom | Seven Bedrooms | Five Bathrooms | Two Home Offices | 9,000 Sq Ft, Over Four Floors | Chain Free
Property Oracle says ..
This is a substantial detached property located on Furze Hill, within the Webb Estate in Purley, Surrey. The house features seven bedrooms and five bathrooms, with a total square footage of 2,565.04.
From the images, the property appears to be in excellent condition, showcasing modern interiors and well-maintained exteriors. The house benefits from a large garden with a pond, a spacious patio area ideal for outdoor dining and entertaining, and a driveway with ample parking space. Interior features include a modern kitchen, multiple reception rooms, and a basement with a bar and wine cellar.
The property’s location offers proximity to several schools, including St David’s School, Thomas More Catholic School, and Margaret Roper Catholic Primary School. Transportation links are also convenient, with Reedham (London) railway station located less than a kilometer away.
Considering the average price per square foot in the area is £513.00, and this property is listed at approximately £1,559 per square foot, the listing price of £4,000,000 suggests a premium. However, this premium may be justified by the property’s size, excellent condition, desirable location within the Webb Estate, and the inclusion of luxury features such as a sauna, gym, wine cellar, and large garden.
Therefore, we give this property 8 / 10. *Disclaimer: This is our option and does constitute a recommendation or financial advice. Do your own research. *
- Price
- 7
- Condition
- 9
- Location
- 8
- Land
- 9
- Bedrooms
- 7
- Bathrooms
- 5
- Sqft (est)
- 2,565.04
The heatmap indicates the level of crime in the area. The color of the heatmap indicates the crime severity and recency.
Metrics Year-on-Year
- Average area value
- 616,068.00 £Decreased by 0.97 %
- Est sale value
- 1,508,243.52 £Increased by 27.00 %
- Average area rental value
- 1,898.00 £/moDecreased by 5.95 %
- Est letting value
- 2,565.04 £/moUnchanged by 0.00 %
- Est rental Yield
- 3.70 %Decreased by 4.88 %
- Crime Rate
- 2.00 %Unchanged by 0.00 %
Agent Activity
eXp UK created the listing.
Nearby Schools
| Name | Type | Ofsted | Distance |
|---|---|---|---|
| St David'S School | Other Independent School | 0.38 KM | |
| Thomas More Catholic School | Voluntary Aided School | Good | 0.88 KM |
| Margaret Roper Catholic Primary School | Voluntary Aided School | Good | 0.88 KM |
| Laleham Lea School | Other Independent School | 0.89 KM | |
| The John Fisher School | Voluntary Aided School | Good | 1.11 KM |
Images
Nearby Streets
| Name | Average Price | Average Sqft | Distance |
|---|---|---|---|
| Hill Road | £ 0 | 0 | 0.00 KM |
| Fire Station Cottages | £ 279,995 | 0 | 0.00 KM |
| Church Hill | £ 562,500 | 0 | 0.00 KM |
| Church Road | £ 0 | 0 | 0.00 KM |
| Purley Road | £ 350,000 | 0 | 0.00 KM |
Nearby Transport
| Name | NLC | TLC | Distance |
|---|---|---|---|
| Reedham (London) | 5431 | RHM | 0.93 KM |
| Purley | 5379 | PUR | 1.36 KM |
| Coulsdon Town | 5382 | CDN | 2.10 KM |
| Coulsdon South | 5408 | CDS | 2.88 KM |
| Riddlesdown | 5432 | RDD | 3.06 KM |
Nearby Listings
| Address | Price | Type | Score | Distance |
|---|---|---|---|---|
| Webb Estate, Purley, Surrey | £ 4,000,000 | BUY | 8 / 10 | 0.00 KM |
| Webb Estate, Purley, Surrey | £ 3,750,000 | BUY | 8 / 10 | 0.00 KM |
| Webb Estate, Purley, Surrey | £ 2,450,000 | BUY | 8 / 10 | 0.07 KM |
| Webb Estate, Purley, Surrey | £ 3,250,000 | BUY | 8 / 10 | 0.12 KM |
| Furze Hill, Purley, CR8 | £ 2,900,000 | BUY | 8 / 10 | 0.13 KM |
Nearby Properties
| Address | Price | Distance |
|---|---|---|
| 3a Furze Hill | £ 875,000 | 0.01 KM |
| 15 Furze Hill | £ 1,680,000 | 0.01 KM |
| 13 Furze Hill | £ 2,000,000 | 0.01 KM |
| 1a Furze Hill | £ 825,000 | 0.01 KM |
| 11 Furze Hill | £ 4,225,000 | 0.01 KM |