Hemel Hempstead, Hertfordshire, HP3
By Chancellors
£ 160,000
Reviews
2 out of 5 stars
Chancellors says ..
Being sold via Secure Sale online bidding. Terms & Conditions apply. Starting Bid £160,000
Property Oracle says ..
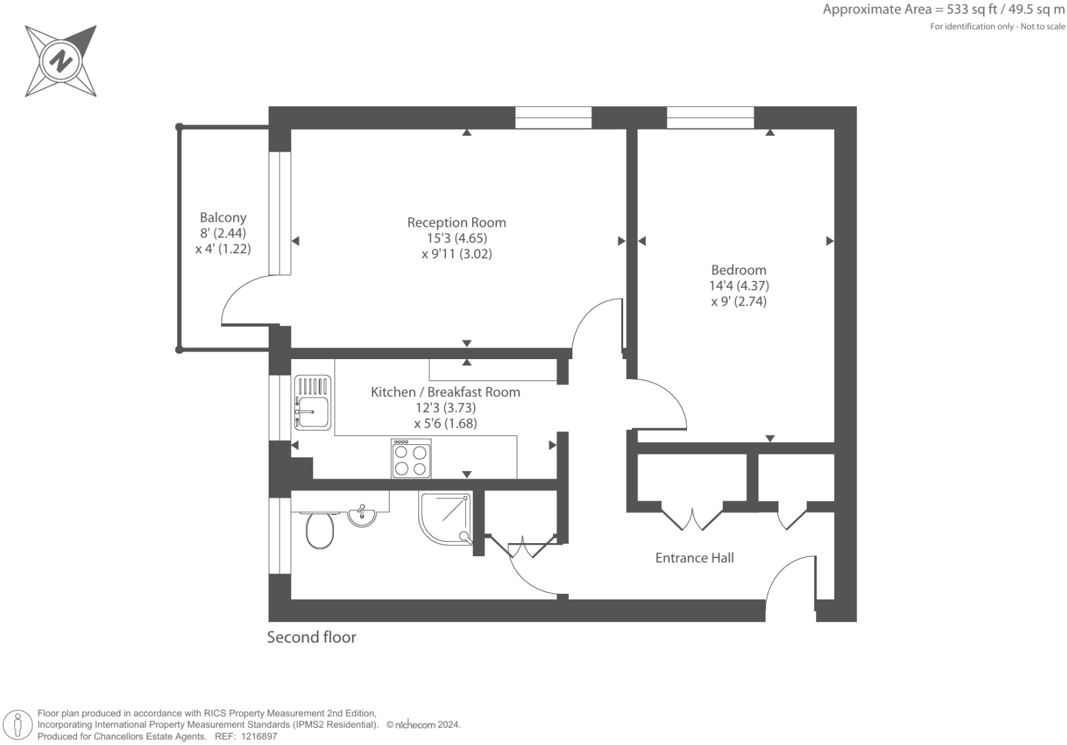
This one-bedroom apartment located in Hemel Hempstead, Hertfordshire, is presented in excellent condition and is offered at a competitive price. The property’s interior is well-maintained, showing recent upgrades and a stylish décor. It includes a functional kitchen and bathroom, and the living areas are well-proportioned. The location offers convenient access to Apsley train station and several good primary schools, making it a suitable option for commuters and families with young children. However, the lack of a substantial private garden is a notable drawback. The property’s overall condition and competitive pricing make it a potentially attractive buy, though potential buyers should consider the absence of private outdoor space beyond a balcony and the need to independently verify details surrounding amenities in the close vicinity.
Therefore, we give this property 5 / 10. *Disclaimer: This is our option and does constitute a recommendation or financial advice. Do your own research. *
- Price
- 7
- Condition
- 8
- Location
- 7
- Land
- 1
- Bedrooms
- 1
- Bathrooms
- 1
- Sqft (est)
- 533.00
The heatmap indicates the level of crime in the area. The color of the heatmap indicates the crime severity and recency.
Metrics Year-on-Year
- Average area value
- 485,000.00 £Increased by 20.51 %
- Est sale value
- 278,759.00 £Increased by 6.09 %
- Average area rental value
- 1,460.00 £/moDecreased by 8.12 %
- Est letting value
- 533.00 £/moUnchanged by 0.00 %
- Est rental Yield
- 3.61 %Decreased by 23.84 %
- Crime Rate
- 1.00 %Unchanged by 0.00 %
Agent Activity
Chancellors created the listing.
Nearby Schools
| Name | Type | Ofsted | Distance |
|---|---|---|---|
| Tudor Primary School | Community School | Good | 0.20 KM |
| Broadfield Academy | Academy Converter | 0.86 KM | |
| Lime Walk Primary School | Community School | Good | 1.02 KM |
| D7 Windmill Family Centre | Children's Centre | 1.14 KM | |
| George Street Primary School | Community School | Good | 1.40 KM |
Images
Nearby Streets
| Name | Average Price | Average Sqft | Distance |
|---|---|---|---|
| Wheelers Lane | £ 0 | 0 | 0.00 KM |
| Marriotts Way | £ 462,500 | 0 | 0.00 KM |
| Park Lane | £ 0 | 0 | 0.00 KM |
| St Albans Road | £ 194,000 | 0 | 0.00 KM |
| Selden Hill | £ 0 | 0 | 0.00 KM |
Nearby Transport
| Name | NLC | TLC | Distance |
|---|---|---|---|
| Apsley | 1430 | APS | 1.73 KM |
| Hemel Hempstead | 1391 | HML | 3.03 KM |
| Kings Langley | 1392 | KGL | 5.43 KM |
Nearby Listings
| Address | Price | Type | Score | Distance |
|---|---|---|---|---|
| Hemel Hempstead, Hertfordshire, HP3 | £ 160,000 | BUY | 5 / 10 | 0.00 KM |
| Fern Drive, Hemel Hempstead | £ 230,000 | BUY | 5 / 10 | 0.01 KM |
| Fern Drive, Hemel Hempstead | £ 230,000 | BUY | 6 / 10 | 0.05 KM |
| Fern Drive, Hemel Hempstead | £ 125,000 | BUY | 5 / 10 | 0.05 KM |
| Fern Drive, Hemel Hempstead, Hertfordshire, HP3 | £ 225,000 | BUY | 5 / 10 | 0.10 KM |
Nearby Properties
| Address | Price | Distance |
|---|---|---|
| 87 Fern Drive | £ 120,000 | 0.05 KM |
| 141 Fern Drive | £ 114,000 | 0.05 KM |
| 123 Fern Drive | £ 137,500 | 0.05 KM |
| 127 Fern Drive | £ 120,000 | 0.05 KM |
| 91 Fern Drive | £ 207,000 | 0.05 KM |