Jacobs Well, GU4
By Chantries and Pewleys Estate Agents
£ 1,000,000
Reviews
3 out of 5 stars
Chantries and Pewleys Estate Agents says ..
Four-bedroom Edwardian family home set in gardens of around 0.34 of an acre.
Property Oracle says ..
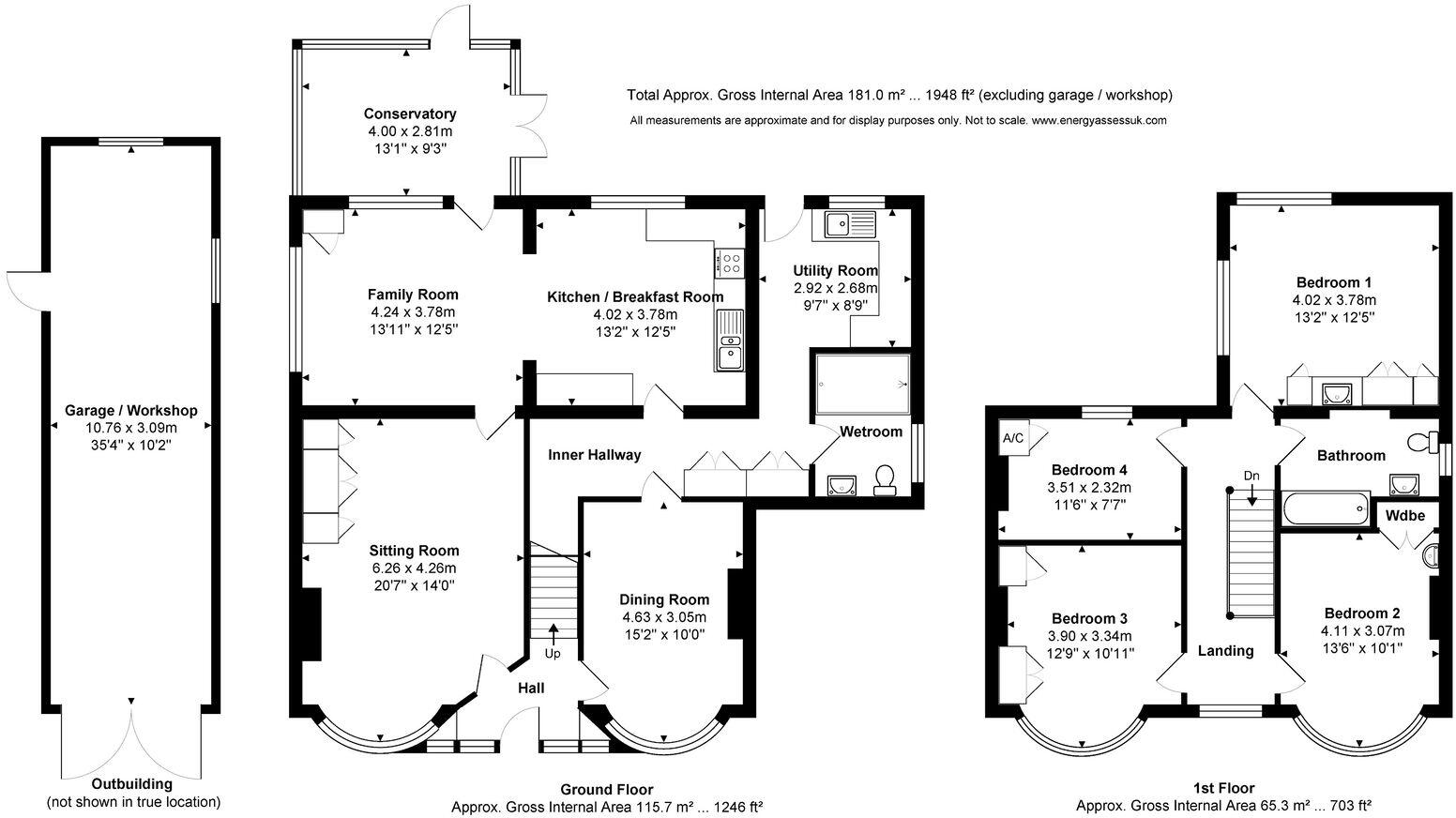
The property is a 4 bedroom, 2 bathroom detached house located in Jacobs Well, Worplesdon, Guildford, Surrey. It is listed at £1,000,000 and has 1,948.27 sqft of living space. The plot size is not specified. The property appears to be in good condition, showing a well-maintained interior and exterior. The images show a traditional style with some modern updates, particularly in the bathroom and laundry areas. The garden is of a reasonable size and includes a shed and patio area. There is evidence of mature planting and a greenhouse. The location is in Jacobs Well, a village near Guildford. The area benefits from proximity to several railway stations providing links to London and other major towns. There are also several highly-rated primary schools within a reasonable distance. Based on this information, the location score is likely to be high, reflecting the desirability of the area and the convenient access to amenities and transportation. Considering the list price of £1,000,000, the average price in the area is £558,789 and the average price per sqft is £489. This property is significantly more expensive than the average. However, the larger size (1948 sqft compared to the average 1142 sqft) and apparent good condition justify a higher price. The lack of plot size information makes it difficult to fully assess the value, as land size significantly impacts property prices in this area. Nearby comparable properties are also priced higher, suggesting the list price is within the range of similar properties, although the lack of sqft information for these properties makes a precise comparison difficult.
Therefore, we give this property 7 / 10. *Disclaimer: This is our option and does constitute a recommendation or financial advice. Do your own research. *
- Price
- 7
- Condition
- 8
- Location
- 9
- Land
- 7
- Bedrooms
- 4
- Bathrooms
- 2
- Sqft (est)
- 1,948.27
The heatmap indicates the level of crime in the area. The color of the heatmap indicates the crime severity and recency.
Metrics Year-on-Year
- Average area value
- 968,500.00 £Increased by 58.88 %
- Est sale value
- 1,293,651.28 £Increased by 44.03 %
- Average area rental value
- 2,620.00 £/moDecreased by 16.13 %
- Est letting value
- 1,948.27 £/moDecreased by 50.00 %
- Est rental Yield
- 3.25 %Decreased by 47.15 %
- Crime Rate
- 2.00 %Unchanged by 0.00 %
Agent Activity
Chantries and Pewleys Estate Agents created the listing.
Nearby Schools
| Name | Type | Ofsted | Distance |
|---|---|---|---|
| Weyfield Academy | Academy Sponsor Led | Requires improvement | 1.62 KM |
| Guildford Nursery School And Family Centre | Local Authority Nursery School | Good | 1.64 KM |
| Pond Meadow School | Academy Special Converter | Outstanding | 1.66 KM |
| Guildford Nursery School & Childrens Centre | Children's Centre | 1.70 KM | |
| Burpham Foundation Primary School | Foundation School | Outstanding | 1.96 KM |
Images
Nearby Streets
| Name | Average Price | Average Sqft | Distance |
|---|---|---|---|
| Crowcroft Close | £ 600,000 | 0 | 0.00 KM |
| Bull Lane | £ 0 | 0 | 0.00 KM |
| Woking Road cyclepath | £ 0 | 0 | 0.00 KM |
| Ramin Court | £ 0 | 0 | 0.00 KM |
Nearby Transport
| Name | NLC | TLC | Distance |
|---|---|---|---|
| Worplesdon | 5686 | WPL | 2.87 KM |
| London Road (Guildford) | 5632 | LRD | 3.09 KM |
| Guildford | 5631 | GLD | 3.79 KM |
| Woking | 5685 | WOK | 5.69 KM |
| Shalford (Surrey) | 5638 | SFR | 6.01 KM |
Nearby Listings
| Address | Price | Type | Score | Distance |
|---|---|---|---|---|
| Jacobs Well, GU4 | £ 1,000,000 | BUY | 7 / 10 | 0.00 KM |
| Holly Lea, Jacobs Well, Guildford, Surrey, GU4 | £ 800,000 | BUY | 6 / 10 | 0.14 KM |
| Crabtree Cottage, Clay Lane, Jacobs Well, Surrey, GU4 | £ 695,000 | BUY | 7 / 10 | 0.15 KM |
| Clay Lane, Jacobs Well, Guildford, Surrey, GU4 | £ 450,000 | BUY | Unknown | 0.15 KM |
| Clay Lane, Jacob's Well, Guildford, Surrey, GU4 | £ 700,000 | BUY | Unknown | 0.16 KM |
Nearby Properties
| Address | Price | Distance |
|---|---|---|
| Greyswood | £ 450,000 | 0.04 KM |
| Merrilea | £ 710,000 | 0.04 KM |
| Rose Cottage | £ 800,000 | 0.06 KM |
| Par-mar | £ 600,000 | 0.06 KM |
| Hurst Farm House | £ 370,000 | 0.13 KM |