Branchalmuir Crescent, Newmains, Wishaw
By Fred Estate Agents
£ 109,995
Reviews
3 out of 5 stars
Fred Estate Agents says ..
Situated within a sought after location in the town of Wishaw, lies this well appointed two bedroom mid terrace property.
Property Oracle says ..
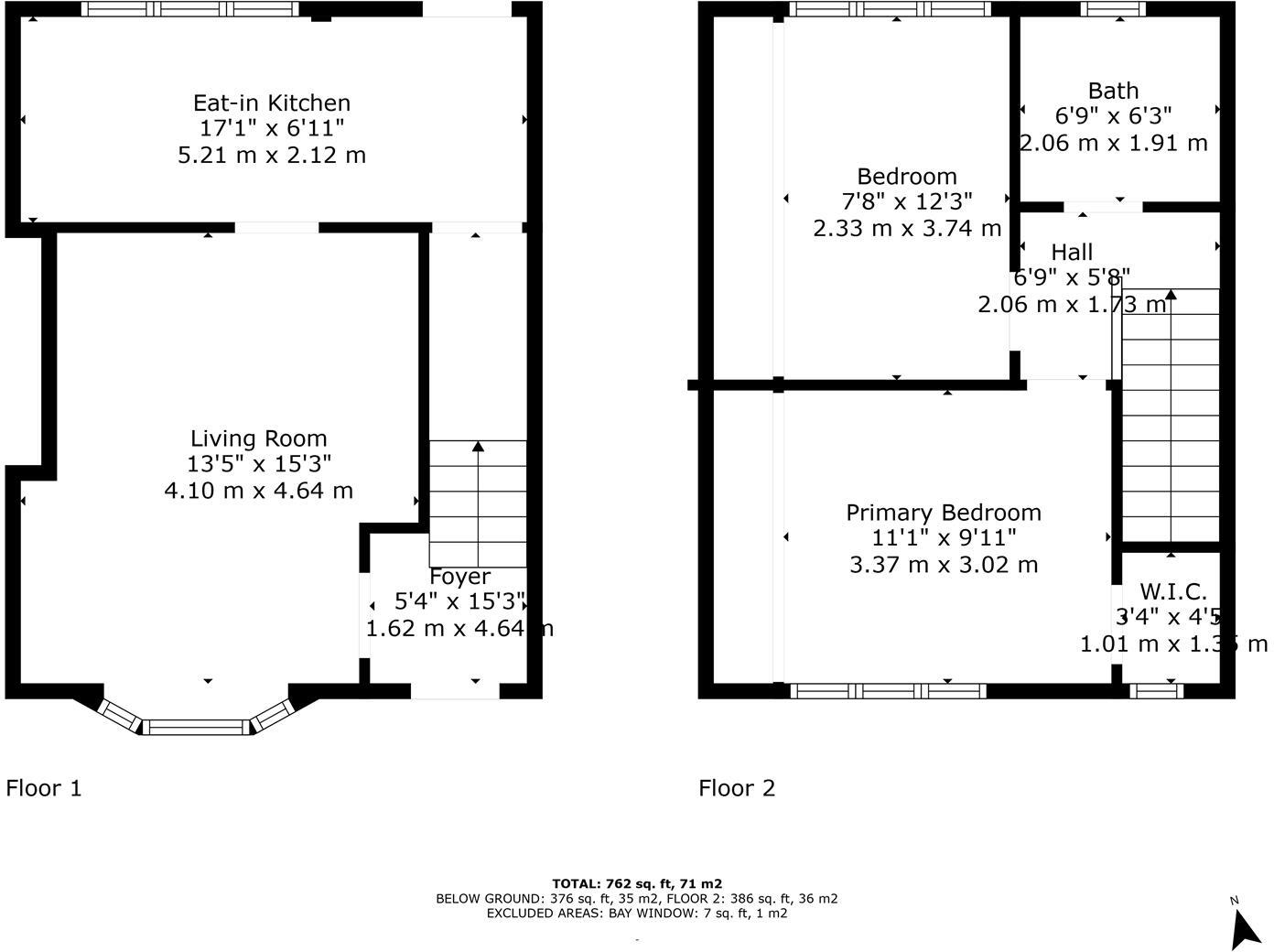
This property is a 2 bedroom, 1 bathroom mid-terrace house located in Newmains, Wishaw. Based on the provided images, the property appears to be in good condition with a modern kitchen and bathroom. The property benefits from a small rear garden. While the location is not explicitly detailed, the proximity to several train stations (Cleland, Wishaw, Hartwood, Carluke, and Shieldmuir) suggests reasonable access to transportation. The list price of £109,995 seems slightly higher than some comparable properties in the area. However, the modern updates and good condition may justify the price point. More information on local schools and amenities would be needed for a comprehensive evaluation.
Therefore, we give this property 6 / 10. *Disclaimer: This is our option and does constitute a recommendation or financial advice. Do your own research. *
- Price
- 7
- Condition
- 8
- Location
- 6
- Land
- 4
- Bedrooms
- 2
- Bathrooms
- 1
- Sqft (est)
- 764.24
The heatmap indicates the level of crime in the area. The color of the heatmap indicates the crime severity and recency.
Metrics Year-on-Year
- Average area value
- 925,000.00 £Increased by 139.51 %
- Est sale value
- 334,737.12 £Increased by 50.52 %
- Average area rental value
- 825.00 £/moDecreased by 10.71 %
- Est letting value
- 0.00 £/mo
- Est rental Yield
- 1.07 %Decreased by 62.72 %
- Crime Rate
- 0.00 %
Agent Activity
Fred Estate Agents created the listing.
Images
Nearby Streets
| Name | Average Price | Average Sqft | Distance |
|---|---|---|---|
| Branchalmuir Crescent | £ 0 | 0 | 0.00 KM |
| Lawrie Street | £ 0 | 0 | 0.00 KM |
| King Street | £ 77,000 | 0 | 0.00 KM |
| Westwood Road | £ 0 | 0 | 0.00 KM |
| Aitken Close | £ 0 | 0 | 0.00 KM |
Nearby Transport
| Name | NLC | TLC | Distance |
|---|---|---|---|
| Cleland | 9718 | CEA | 3.13 KM |
| Wishaw | 9694 | WSH | 4.70 KM |
| Hartwood | 9246 | HTW | 5.88 KM |
| Carluke | 9702 | CLU | 7.62 KM |
| Shieldmuir | 9552 | SDM | 7.82 KM |
Nearby Listings
| Address | Price | Type | Score | Distance |
|---|---|---|---|---|
| Branchalmuir Crescent, Newmains, Wishaw | £ 109,995 | BUY | 6 / 10 | 0.00 KM |
| Branchalmuir Crescent, Newmains | £ 82,500 | BUY | Unknown | 0.05 KM |
| Branchalmuir Crescent, Newmains, Wishaw | £ 90,000 | BUY | 7 / 10 | 0.05 KM |
| Banavie Road, Newmains, Wishaw | £ 125,000 | BUY | 7 / 10 | 0.21 KM |
| Clark Street, Newmains, Wishaw | £ 135,000 | BUY | 7 / 10 | 0.34 KM |