St. Josephs Close, Plymouth, Devon, PL6 5BA
By Sensible Move
£ 395,000
Reviews
3 out of 5 stars
Sensible Move says ..
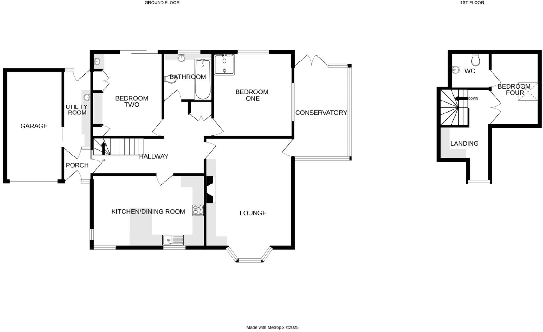
DETACHED BUNGALOW with additional attic room situated in a SOUGHT AFTER CUL DE SAC and benefiting from a BEAUTIFUL LARGE GARDEN
Property Oracle says ..
The property is a detached bungalow located in St. Josephs Close, Plymouth, Devon. It benefits from a good sized garden, and appears to be well maintained, although the interior decor is dated. The property is within easy reach of several primary and secondary schools, all within a 1km radius. Good transport links are also nearby with several train stations within a 3 - 6km radius.
The average house price in the area is £301,315, with an average price per square foot of £368. While the list price of £395,000 is higher than the average, comparable properties in the area are listed at similar prices. More information regarding the square footage of the property would be needed to provide a more detailed price analysis. The property’s condition appears to be good, needing only some cosmetic upgrades to bring it up to date. The garden is a significant asset, offering additional space and privacy.
Based on the available information, the property appears to be reasonably priced for the location and condition. Further information on the property’s size would allow for a more precise assessment of its value.
Therefore, we give this property 7 / 10. *Disclaimer: This is our option and does constitute a recommendation or financial advice. Do your own research. *
- Price
- 7
- Condition
- 8
- Location
- 7
- Land
- 8
- Bedrooms
- 2
- Bathrooms
- 1
The heatmap indicates the level of crime in the area. The color of the heatmap indicates the crime severity and recency.
Metrics Year-on-Year
- Average area value
- 251,250.00 £Decreased by 14.94 %
- Average area rental value
- 1,138.00 £/moIncreased by 4.88 %
- Est rental Yield
- 5.44 %Increased by 23.36 %
- Crime Rate
- 0.00 %
Agent Activity
Sensible Move created the listing.
Nearby Schools
| Name | Type | Ofsted | Distance |
|---|---|---|---|
| Widey Court Primary School | Academy Converter | Good | 0.35 KM |
| Courtlands School | Academy Special Converter | Good | 0.44 KM |
| St Boniface'S Rc College | Academy Sponsor Led | Requires improvement | 0.56 KM |
| Manadon Vale Primary School | Academy Converter | Good | 0.61 KM |
| Eggbuckland Community College | Academy Converter | Requires improvement | 0.96 KM |
Images
Nearby Streets
| Name | Average Price | Average Sqft | Distance |
|---|---|---|---|
| St Joseph's Close | £ 360,000 | 0 | 0.00 KM |
| Fort Austin Avenue | £ 0 | 0 | 0.00 KM |
| Leighton Road | £ 0 | 0 | 0.00 KM |
| Tailyour Road | £ 200,000 | 0 | 0.00 KM |
| Grosvenor Road | £ 310,000 | 0 | 0.00 KM |
Nearby Transport
| Name | NLC | TLC | Distance |
|---|---|---|---|
| Plymouth | 3580 | PLY | 3.15 KM |
| Devonport | 3579 | DPT | 5.17 KM |
| Dockyard (Devonport) | 3588 | DOC | 5.48 KM |
| Keyham | 3571 | KEY | 5.56 KM |
| St Budeaux Ferry Road | 3590 | SBF | 6.15 KM |
Nearby Listings
| Address | Price | Type | Score | Distance |
|---|---|---|---|---|
| St. Josephs Close, Plymouth, Devon, PL6 5BA | £ 395,000 | BUY | 7 / 10 | 0.00 KM |
| Crownhill, Plymouth | £ 395,000 | BUY | 6 / 10 | 0.01 KM |
| St. Bridgets Avenue, Plymouth, Devon | £ 400,000 | BUY | 7 / 10 | 0.04 KM |
| 1 St Josephs Close, Plymouth, Devon, PL6 5BA | £ 410,000 | BUY | 7 / 10 | 0.04 KM |
| St. Bridgets Avenue, Plymouth, Devon, PL6 | £ 268,000 | BUY | 7 / 10 | 0.05 KM |
Nearby Properties
| Address | Price | Distance |
|---|---|---|
| 21 St Bridgets Avenue | £ 239,000 | 0.05 KM |
| 1 Moreton Avenue | £ 250,000 | 0.13 KM |
| 2 Moreton Avenue | £ 230,000 | 0.13 KM |
| 9 Moreton Avenue | £ 235,000 | 0.13 KM |
| 16 Moreton Avenue | £ 260,000 | 0.13 KM |