Ty Brachty Terrace, crumlin, NP11
By Cariad Property
£ 149,995
Reviews
3 out of 5 stars
Cariad Property says ..
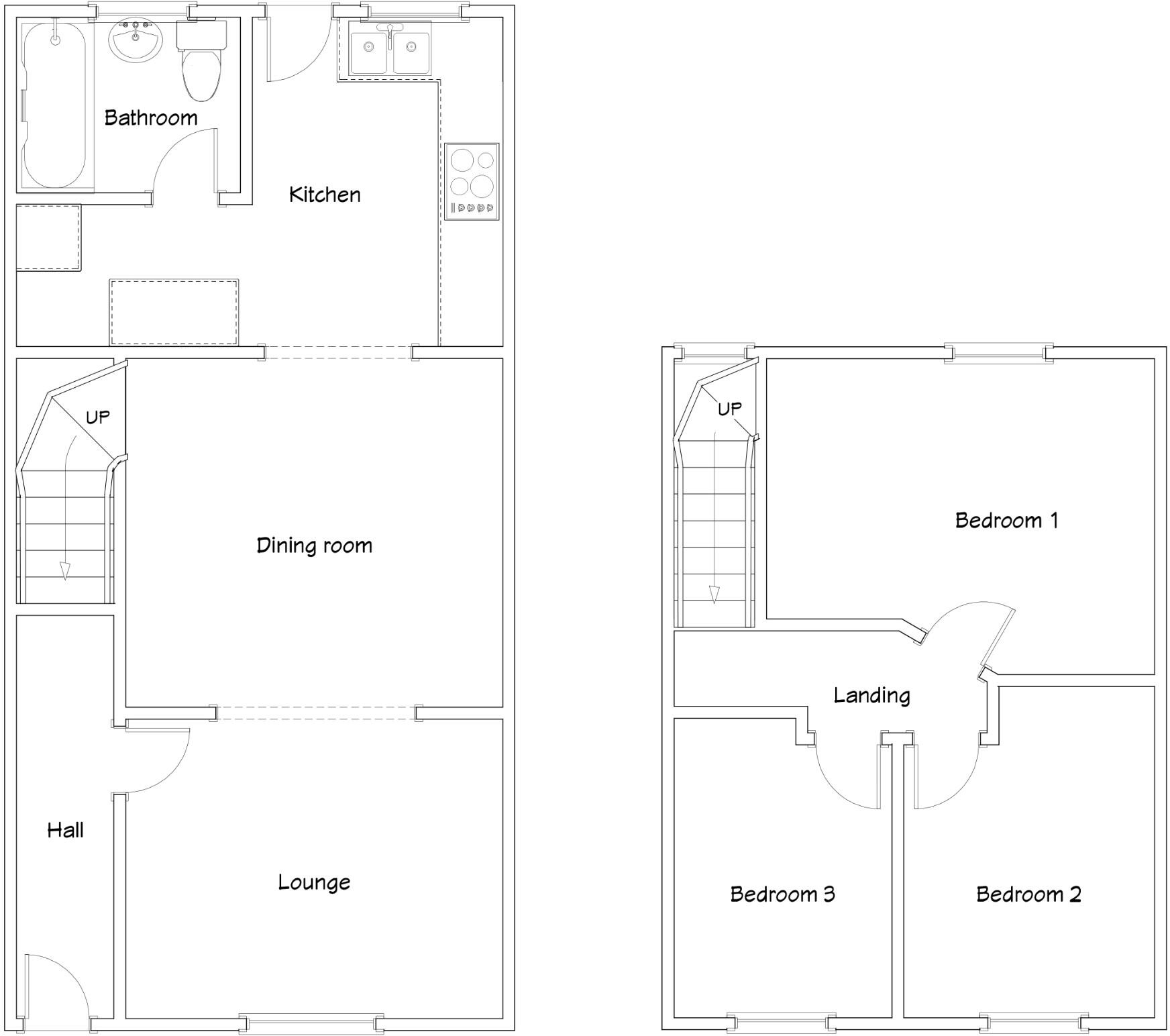
YOUR FIRST TIME HOME? YES INDEED! Super three-bedroom property, village location, great rear garden and a garage, modern interior, no chain, a real find.
Property Oracle says ..
Therefore, we give this property 7 / 10. *Disclaimer: This is our option and does constitute a recommendation or financial advice. Do your own research. *
- Price
- 9
- Condition
- 8
- Location
- 6
- Land
- 7
- Bedrooms
- 3
- Bathrooms
- 1
- Sqft (est)
- 960.00
The heatmap indicates the level of crime in the area. The color of the heatmap indicates the crime severity and recency.
Metrics Year-on-Year
- Average area value
- 219,115.00 £Increased by 18.08 %
- Est sale value
- 239,040.00 £Increased by 3.75 %
- Average area rental value
- 1,500.00 £/moIncreased by 50.30 %
- Est letting value
- 960.00 £/moUnchanged by 0.00 %
- Est rental Yield
- 8.21 %Increased by 27.29 %
- Crime Rate
- 7.00 %Unchanged by 0.00 %
from 185,563.00 £
from 230,400.00 £
from 998.00 £/mo
from 960.00 £/mo
from 6.45 %
from 7.00 %
Agent Activity
Cariad Property created the listing.
Nearby Schools
| Name | Type | Ofsted | Distance |
|---|---|---|---|
| Rhiw Syr Dafyedd Primary | Welsh Establishment | 1.69 KM | |
| Crumlin High Level Primary School | Welsh Establishment | 1.93 KM | |
| Tynewydd Primary School | Welsh Establishment | 2.29 KM | |
| Trinant Primary School | Welsh Establishment | 2.32 KM | |
| Newbridge School | Welsh Establishment | 2.81 KM |
Images
Nearby Streets
| Name | Average Price | Average Sqft | Distance |
|---|---|---|---|
| Pen-Y-Bryn Court | £ 0 | 0 | 0.00 KM |
| The Hollies | £ 0 | 0 | 0.00 KM |
| The Elms | £ 0 | 0 | 0.00 KM |
| Pen-Y-Groes | £ 315,000 | 0 | 0.00 KM |
| Cae'r Hen Dy | £ 0 | 0 | 0.00 KM |
Nearby Transport
| Name | NLC | TLC | Distance |
|---|---|---|---|
| Newbridge | 9919 | NBE | 2.58 KM |
| Llanhilleth | 9916 | LTH | 3.39 KM |
| Gilfach Fargoed | 4022 | GFF | 7.40 KM |
| Crosskeys | 9902 | CKY | 7.73 KM |
| Bargoed | 4011 | BGD | 7.83 KM |
Nearby Listings
| Address | Price | Type | Score | Distance |
|---|---|---|---|---|
| Ty Brachty Terrace, crumlin, NP11 | £ 149,995 | BUY | 7 / 10 | 0.00 KM |
| Ty Brachty Terrace, Crumlin, Newport. NP11 | £ 160,000 | BUY | Unknown | 0.01 KM |
| Ty Brachty Terrace, Crumlin, NP11 3BU | £ 100,000 | BUY | 6 / 10 | 0.05 KM |
| Cemaes Road, Crumlin, NEWPORT | £ 400,000 | BUY | 7 / 10 | 0.15 KM |
| Pendinas Avenue, Crumlin, Newport | £ 375,000 | BUY | 7 / 10 | 0.19 KM |
Nearby Properties
| Address | Price | Distance |
|---|---|---|
| 7 Ty Brachty Terrace | £ 75,000 | 0.00 KM |
| 30 Ty Brachty Terrace | £ 74,000 | 0.00 KM |
| 27 Ty Brachty Terrace | £ 75,000 | 0.00 KM |
| 28 Ty Brachty Terrace | £ 40,000 | 0.00 KM |
| 11 Ty Brachty Terrace | £ 76,000 | 0.02 KM |