ST
Bechers Court, Aintree, Liverpool
By Stratton & King Ltd
£ 85,000
Reviews
3 out of 5 stars
Stratton & King Ltd says ..
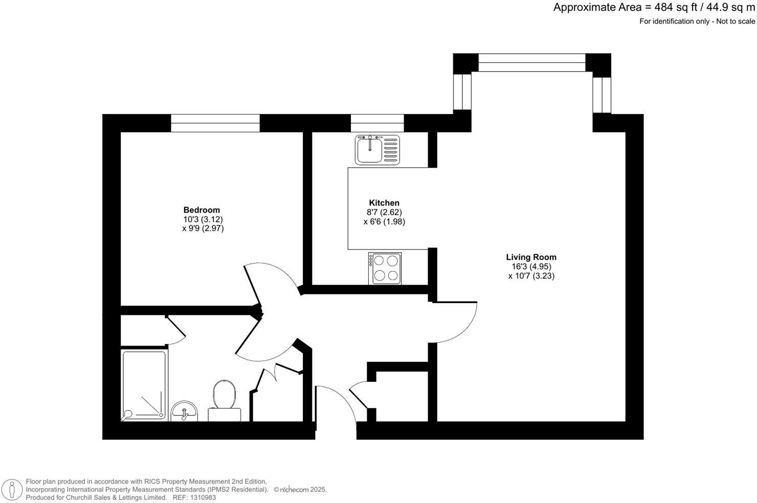
DRAFT PARTICULARS - Awaiting verification from the seller **ONE BEDROOM FIRST FLOOR RETIREMENT APARTMENT** Welcome to Bechers Court! Churchill Sales & Lettings are delighted to be marketing this wonderful one bedroom first floor apartment presented in very good order throughout....
Property Oracle says ..
Therefore, we give this property 7 / 10. *Disclaimer: This is our option and does constitute a recommendation or financial advice. Do your own research. *
- Price
- 9
- Condition
- 8
- Location
- 7
- Land
- 6
- Bedrooms
- 1
- Bathrooms
- 1
- Sqft (est)
- 484.00
The heatmap indicates the level of crime in the area. The color of the heatmap indicates the crime severity and recency.
Metrics Year-on-Year
- Average area value
- 225,800.00 £Decreased by 11.13 %
- Est sale value
- 186,340.00 £Increased by 76.61 %
- Average area rental value
- 900.00 £/moDecreased by 18.70 %
- Est letting value
- 484.00 £/mo
- Est rental Yield
- 4.78 %Decreased by 8.60 %
- Crime Rate
- 15.00 %Unchanged by 0.00 %
from 254,068.00 £
from 105,512.00 £
from 1,107.00 £/mo
from 0.00 £/mo
from 5.23 %
from 15.00 %
Agent Activity
Stratton & King Ltd created the listing.
Nearby Schools
| Name | Type | Ofsted | Distance |
|---|---|---|---|
| Aintree Davenhill Primary School | Community School | Good | 1.03 KM |
| Holy Rosary Catholic Primary School | Voluntary Aided School | Outstanding | 1.60 KM |
| St Benedict'S Catholic Primary School | Voluntary Aided School | Good | 1.88 KM |
| Fazakerley & Croxteth Children'S Centre | Children's Centre | 2.07 KM | |
| St Oswald'S Church Of England Primary School | Voluntary Aided School | Good | 2.10 KM |
Images
Nearby Streets
| Name | Average Price | Average Sqft | Distance |
|---|---|---|---|
| Wally's Steps | £ 80,000 | 0 | 0.00 KM |
| Manor Drive | £ 235,000 | 0 | 0.00 KM |
| Cranwell Close | £ 240,000 | 0 | 0.00 KM |
| Newark Close | £ 200,000 | 0 | 0.00 KM |
| Fir Grove | £ 235,000 | 0 | 0.00 KM |
Nearby Transport
| Name | NLC | TLC | Distance |
|---|---|---|---|
| Old Roan | 2258 | ORN | 0.17 KM |
| Aintree | 2125 | AIN | 1.41 KM |
| Fazakerley | 2126 | FAZ | 2.40 KM |
| Orrell Park | 2247 | OPK | 2.95 KM |
| Maghull | 2155 | MAG | 3.22 KM |
Nearby Listings
| Address | Price | Type | Score | Distance |
|---|---|---|---|---|
| Bechers Court, Aintree, Liverpool | £ 85,000 | BUY | 7 / 10 | 0.00 KM |
| Bechers Court, Liverpool | £ 89,950 | BUY | 7 / 10 | 0.01 KM |
| 125 Ormskirk Road, Liverpool, L9 | £ 120,000 | BUY | 7 / 10 | 0.02 KM |
| Bechers Court, Aintree, Liverpool | £ 78,000 | BUY | 6 / 10 | 0.02 KM |
| Mostyn Avenue, Old Roan | £ 220,000 | BUY | 7 / 10 | 0.16 KM |
Nearby Properties
| Address | Price | Distance |
|---|---|---|
| 46 Mostyn Avenue | £ 154,000 | 0.16 KM |
| 26 Mostyn Avenue | £ 132,000 | 0.16 KM |
| 48 Mostyn Avenue | £ 225,500 | 0.16 KM |
| 22 Mostyn Avenue | £ 208,000 | 0.16 KM |
| 30 Mostyn Avenue | £ 190,500 | 0.16 KM |