Church Lane, Great Sutton
By Platinum Independent Estate Agents
£ 220,000
Reviews
3 out of 5 stars
Platinum Independent Estate Agents says ..
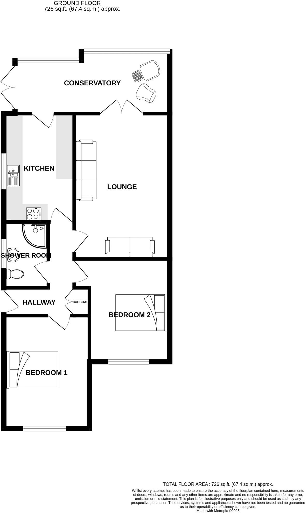
NO ONWARD CHAIN. Platinum are pleased to welcome onto the market this spacious two bedroom semi detached bungalow. Situated within the highly sought after location of Great Sutton, this delightful property benefits from a modern kitchen & shower room, detached garage and boasts two double bedrooms
Property Oracle says ..
This property is located in Great Sutton, Cheshire, and is a 2-bedroom house with 1 bathroom. The property is listed at £220,000 and has a plot size of 726 sqft. The average price for properties in the area is £315,458, with an average price per sqft of £299. Given the photos, the property appears to be in reasonable condition, though some minor updating or cosmetic work may be desirable. The property includes a garden and a detached garage, which are positive features. The list price is below the average price for the area, but it is important to note that the average price per sqft is significantly higher than what this property offers. Therefore, while the price may seem reasonable in comparison to other properties on Church Lane, the relatively small size of the property compared to the average in the area needs to be considered. The location is close to several schools and transportation links, making it a convenient location.
Therefore, we give this property 7 / 10. *Disclaimer: This is our option and does constitute a recommendation or financial advice. Do your own research. *
- Price
- 7
- Condition
- 7
- Location
- 8
- Land
- 6
- Bedrooms
- 2
- Bathrooms
- 1
- Sqft (est)
- 726.00
- Lot (est)
- 726.00
The heatmap indicates the level of crime in the area. The color of the heatmap indicates the crime severity and recency.
Metrics Year-on-Year
- Average area value
- 258,571.00 £Decreased by 18.16 %
- Est sale value
- 238,128.00 £Increased by 11.95 %
- Average area rental value
- 1,230.00 £/moIncreased by 21.30 %
- Est letting value
- 726.00 £/mo
- Est rental Yield
- 5.71 %Increased by 48.31 %
- Crime Rate
- 0.00 %
Agent Activity
Platinum Independent Estate Agents created the listing.
Nearby Schools
| Name | Type | Ofsted | Distance |
|---|---|---|---|
| St Saviour'S Catholic Primary And Nursery School | Voluntary Aided School | Good | 0.32 KM |
| Archers Brook Semh Residential School | Community Special School | Good | 0.42 KM |
| Meadow Community Primary School | Community School | Outstanding | 0.69 KM |
| Brookside Primary School | Community School | Good | 0.79 KM |
| The Bridge Short Stay School | Pupil Referral Unit | Good | 1.40 KM |
Images
Nearby Streets
| Name | Average Price | Average Sqft | Distance |
|---|---|---|---|
| Greystones | £ 232,500 | 0 | 0.00 KM |
| Holmfield Drive | £ 340,000 | 0 | 0.00 KM |
| Whitecroft Road | £ 0 | 0 | 0.00 KM |
| Green Lane | £ 0 | 0 | 0.00 KM |
| Paul Callan Drive | £ 0 | 0 | 0.00 KM |
Nearby Transport
| Name | NLC | TLC | Distance |
|---|---|---|---|
| Overpool | 2157 | OVE | 1.69 KM |
| Capenhurst | 2186 | CPU | 1.76 KM |
| Little Sutton | 2156 | LTT | 2.29 KM |
| Ellesmere Port | 2121 | ELP | 3.93 KM |
| Hooton | 2193 | HOO | 6.04 KM |
Nearby Listings
| Address | Price | Type | Score | Distance |
|---|---|---|---|---|
| Church Lane, Great Sutton | £ 220,000 | BUY | 7 / 10 | 0.00 KM |
| Knowle Close, Ellesmere Port, CH66 | £ 260,000 | BUY | 7 / 10 | 0.10 KM |
| Knowle Close, Great Sutton, Ellesmere Port, CH66 | £ 250,000 | BUY | Unknown | 0.10 KM |
| Church Lane, Great Sutton, Ellesmere Port, Cheshire, CH66 | £ 190,000 | BUY | 6 / 10 | 0.10 KM |
| Knowle Close, Ellesmere Port, Cheshire, CH66 | £ 200,000 | BUY | 5 / 10 | 0.10 KM |
Nearby Properties
| Address | Price | Distance |
|---|---|---|
| 80 Church Lane | £ 280,000 | 0.10 KM |
| 90 Church Lane | £ 170,000 | 0.10 KM |
| 96 Church Lane | £ 150,000 | 0.10 KM |
| 29 Knowle Close | £ 215,000 | 0.10 KM |
| 23 Knowle Close | £ 142,500 | 0.10 KM |