Denmark Hill Estate, London
UR

Denmark Hill Estate, London

By Urban Village

£ 415,000

Reviews

3 out of 5 stars

Urban Village says ..

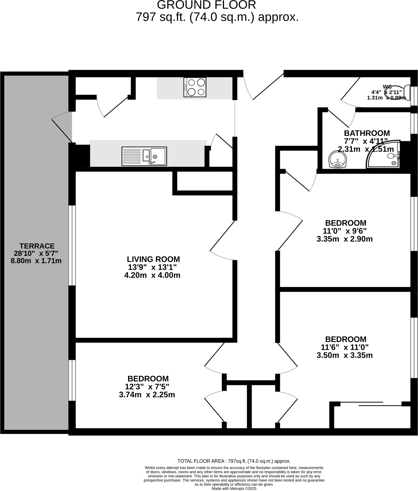
A spacious three bedroom, one bathroom ground floor apartment located just 5 minutes away from Denmark Hill Station! The property benefits from three well-sized bedrooms, providing ample space for relaxation and personalization, a large reception with room for dining. The kitchen comes equipped w...

Property Oracle says ..

This property is a 3-bedroom apartment located in the Denmark Hill Estate, London, with a list price of £415,000. The apartment has 697 sqft of living space and a 797 sqft plot. The average price for properties in the area is £294,997, with an average price per sqft of £262. The apartment appears to be in good condition based on the provided images. The interior is modern and well-maintained, with updated kitchen and bathroom fixtures. There is no visible evidence of damage or disrepair. The property benefits from a small, private outside space. The location is convenient, with Denmark Hill train station within easy reach, providing good transport links. Several schools are also located nearby, including the Outstanding rated Bethlem And Maudsley Hospital School. Considering the property’s condition, location, and size, the list price of £415,000 seems slightly above average for the area, but not unreasonable. While the average price per sqft in the area is £262, this property is smaller than average. The modern condition and convenient location likely justify the higher price per sqft. Nearby comparable properties support this assessment, with prices ranging from £235,000 to £600,000. The lack of sqft data for these properties makes a direct comparison difficult.

Therefore, we give this property 7 / 10. *Disclaimer: This is our option and does constitute a recommendation or financial advice. Do your own research. *

Price
7
Condition
9
Location
8
Land
6
Bedrooms
3
Bathrooms
1
Sqft (est)
697.00
Lot (est)
797.00

The heatmap indicates the level of crime in the area. The color of the heatmap indicates the crime severity and recency.

Metrics Year-on-Year

Average area value
500,707.00 £
Decreased by 15.06 %
from 589,450.00 £
Est sale value
656,574.00 £
Increased by 7.41 %
from 611,269.00 £
Average area rental value
1,757.00 £/mo
Decreased by 22.97 %
from 2,281.00 £/mo
Est letting value
2,091.00 £/mo
Unchanged by 0.00 %
from 2,091.00 £/mo
Est rental Yield
4.21 %
Decreased by 9.27 %
from 4.64 %
Crime Rate
5.00 %
Unchanged by 0.00 %
from 5.00 %

Agent Activity

  • Urban Village created the listing.

Nearby Schools

NameTypeOfstedDistance
The Hospital And Home Tuition Sick Children'S ServiceMiscellaneous0.52 KM
Bethlem And Maudsley Hospital SchoolCommunity Special SchoolOutstanding0.63 KM
Lyndhurst Primary SchoolAcademy Converter0.71 KM
Bessemer Grange Primary SchoolCommunity SchoolGood0.71 KM
Bessemer Grange Primary School & Children'S CentreChildren's Centre0.72 KM

Images

5479_6536869_IMG_... 5479_6536869_IMG_... 5479_6536869_IMG_... 5479_6536869_IMG_... 5479_6536869_IMG_... 5479_6536869_IMG_... 5479_6536869_IMG_... 5479_6536869_IMG_... 5479_6536869_IMG_... 5479_6536869_IMG_... 5479_6536869_IMG_... 5479_6536869_IMG_... 5479_6536869_IMG_... 5479_6536869_IMG_... 5479_6536869_IMG_... 5479_6536869_IMG_... 5479_6536869_IMG_... 5479_6536869_IMG_... 5479_6536869_IMG_... 5479_6536869_IMG_... 5479_6536869_IMG_...

Nearby Streets

NameAverage PriceAverage SqftDistance
Ruskin Park House £ 000.00 KM
Deepdene Road £ 000.00 KM
Ashworth Close £ 000.00 KM
Red Post Hill £ 000.00 KM
Edgar Kail Way £ 375,00000.00 KM

Nearby Transport

NameNLCTLCDistance
Denmark Hill5421DMK0.45 KM
East Dulwich5358EDW1.10 KM
North Dulwich5429NDL1.11 KM
Loughborough Junction5082LGJ1.35 KM
Herne Hill5066HNH1.82 KM

Nearby Listings

AddressPriceTypeScoreDistance
Denmark Hill Estate, London £ 415,000BUY7 / 100.00 KM
Denmark Hill Estate, London, SE5 £ 425,000BUY5 / 100.05 KM
Blanchedowne, Camberwell, London £ 450,000BUY7 / 100.12 KM
Spring Hill Close, SE5 £ 475,000BUYUnknown0.13 KM
Denmark Hill, Herne Hill, London, SE5 £ 1,400,000BUY6 / 100.14 KM

Nearby Properties

AddressPriceDistance
34 Blanchedowne £ 148,0000.09 KM
58 Blanchedowne £ 390,0000.09 KM
38 Blanchedowne £ 450,0000.09 KM
46 Blanchedowne £ 210,0000.09 KM
20 Blanchedowne £ 605,0000.11 KM