BR
Bailey Close, Frimley, Camberley, Surrey, GU16
By Bridges Estate Agents
£ 525,000
Reviews
3 out of 5 stars
Bridges Estate Agents says ..
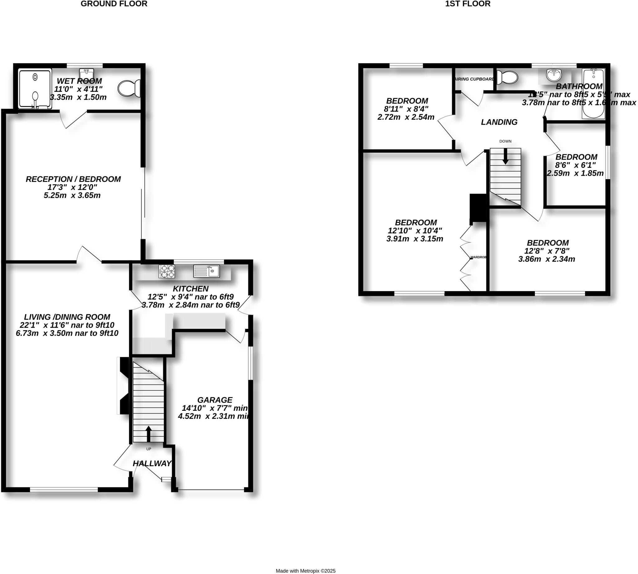
Located on a popular established development near green space and within a stone`s throw of Frimley high street and train station is this extended four/five-bedroom semi-detached family home. The property offers a 17ft reception/downstairs bedroom, downstairs wet room, modern fitted kitchen, 22ft...
Property Oracle says ..
Therefore, we give this property 6 / 10. *Disclaimer: This is our option and does constitute a recommendation or financial advice. Do your own research. *
- Price
- 4
- Condition
- 6
- Location
- 7
- Land
- 7
- Bedrooms
- 4
- Bathrooms
- 2
The heatmap indicates the level of crime in the area. The color of the heatmap indicates the crime severity and recency.
Metrics Year-on-Year
- Average area value
- 362,500.00 £Decreased by 23.04 %
- Average area rental value
- 2,625.00 £/moIncreased by 52.17 %
- Est rental Yield
- 8.69 %Increased by 97.95 %
- Crime Rate
- 5.00 %Unchanged by 0.00 %
from 471,043.00 £
from 1,725.00 £/mo
from 4.39 %
from 5.00 %
Agent Activity
Bridges Estate Agents created the listing.
Nearby Schools
| Name | Type | Ofsted | Distance |
|---|---|---|---|
| Henry Tyndale School | Community Special School | Outstanding | 1.03 KM |
| North Farnborough Infant School | Community School | Outstanding | 1.35 KM |
| Kings International College | Foundation School | Good | 1.35 KM |
| Farnborough Hill | Other Independent School | 1.35 KM | |
| The Sixth Form College Farnborough | Academy 16-19 Converter | Outstanding | 1.41 KM |
Images
Nearby Streets
| Name | Average Price | Average Sqft | Distance |
|---|---|---|---|
| Footpath 197 | £ 0 | 0 | 0.00 KM |
| Portsmouth Road | £ 562,500 | 0 | 0.00 KM |
| Gilbert Road Footpath | £ 0 | 0 | 0.00 KM |
| The Grove | £ 0 | 0 | 0.00 KM |
| Kirkby Court | £ 0 | 0 | 0.00 KM |
Nearby Transport
| Name | NLC | TLC | Distance |
|---|---|---|---|
| Frimley | 5683 | FML | 0.21 KM |
| Farnborough North | 5688 | FNN | 1.08 KM |
| Farnborough (Main) | 5521 | FNB | 2.03 KM |
| Camberley | 5682 | CAM | 2.77 KM |
| Blackwater | 5625 | BAW | 4.15 KM |
Nearby Listings
| Address | Price | Type | Score | Distance |
|---|---|---|---|---|
| Woburn Avenue, Farnborough, Hampshire, GU14 | £ 475,000 | BUY | 6 / 10 | 0.00 KM |
| Woburn Avenue, Farnborough, Hampshire, GU14 | £ 500,000 | BUY | 6 / 10 | 0.00 KM |
| Bailey Close, Frimley, Camberley, Surrey, GU16 | £ 525,000 | BUY | 6 / 10 | 0.00 KM |
| Hollytree Gardens, Frimley, Camberley, Surrey | £ 500,000 | BUY | Unknown | 0.06 KM |
| Maybury Close, Frimley, Camberley, Surrey, GU16 | £ 200,000 | BUY | 5 / 10 | 0.11 KM |
Nearby Properties
| Address | Price | Distance |
|---|---|---|
| 31 Bailey Close | £ 205,000 | 0.04 KM |
| 11 Bailey Close | £ 260,000 | 0.04 KM |
| 19 Bailey Close | £ 295,000 | 0.04 KM |
| 7 Bailey Close | £ 240,000 | 0.04 KM |
| 23 Bailey Close | £ 320,000 | 0.04 KM |