Ladywell Place, Plymouth, PL4
By Atwell Martin
£ 475,000
Reviews
3 out of 5 stars
Atwell Martin says ..
Stunning 4-bed link detached with sea views. Elegant interiors, original fireplaces, spacious rooms, private garden and 7kw solar array with battery storage. Tranquil retreat near the city centre.
Property Oracle says ..
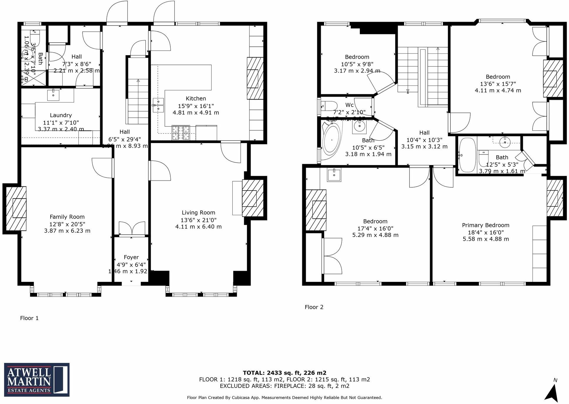
This four-bedroom, three-bathroom property in Plymouth’s Drake area presents itself well in the provided photographs. The interior is bright, spacious, and appears recently updated, with modern fixtures and tasteful décor. Original features like the fireplaces and ornate ceiling moldings add character. The kitchen is well-equipped and flows smoothly into a patio area, ideal for outdoor living. While the garden itself seems compact, it provides a welcome private space. The property also boasts a significant advantage with the 7kW solar array and battery storage, a highly desirable feature in the current market. Its location offers a balance between a residential setting and convenient access to the city center and local amenities. However, a more detailed analysis would require knowing the exact plot size and having access to more comprehensive comparable sales data to accurately assess the list price in relation to the local market. It’s vital to conduct a thorough property survey and obtain necessary legal and financial advice before committing to purchase.
Therefore, we give this property 6 / 10. *Disclaimer: This is our option and does constitute a recommendation or financial advice. Do your own research. *
- Price
- 7
- Condition
- 8
- Location
- 7
- Land
- 4
- Bedrooms
- 4
- Bathrooms
- 3
- Sqft (est)
- 2,432.64
The heatmap indicates the level of crime in the area. The color of the heatmap indicates the crime severity and recency.
Metrics Year-on-Year
- Average area value
- 172,750.00 £Decreased by 26.23 %
- Est sale value
- 491,393.28 £Decreased by 27.60 %
- Average area rental value
- 822.00 £/moIncreased by 45.49 %
- Est letting value
- 0.00 £/mo
- Est rental Yield
- 5.71 %Increased by 96.90 %
- Crime Rate
- 6.00 %Unchanged by 0.00 %
Agent Activity
Atwell Martin created the listing.
Nearby Schools
| Name | Type | Ofsted | Distance |
|---|---|---|---|
| Holy Cross Catholic Primary School | Academy Converter | 0.27 KM | |
| Mount Street Primary School | Academy Sponsor Led | 0.35 KM | |
| Plymouth College Of Art | Higher Education Institutions | Good | 0.62 KM |
| Ace Schools Plymouth | Academy Alternative Provision Converter | Good | 0.65 KM |
| Plymouth High School For Girls | Academy Converter | 0.71 KM |
Images
Nearby Streets
| Name | Average Price | Average Sqft | Distance |
|---|---|---|---|
| Friary Retail Park | £ 180,000 | 0 | 0.00 KM |
| Opie Lane | £ 0 | 0 | 0.00 KM |
| Carlton Terrace | £ 260,000 | 0 | 0.00 KM |
| Olivia Court | £ 0 | 0 | 0.00 KM |
| Hill Park Crescent | £ 0 | 0 | 0.00 KM |
Nearby Transport
| Name | NLC | TLC | Distance |
|---|---|---|---|
| Plymouth | 3580 | PLY | 1.33 KM |
| Devonport | 3579 | DPT | 4.33 KM |
| Dockyard (Devonport) | 3588 | DOC | 4.95 KM |
| Keyham | 3571 | KEY | 5.56 KM |
| St Budeaux Ferry Road | 3590 | SBF | 6.79 KM |
Nearby Listings
| Address | Price | Type | Score | Distance |
|---|---|---|---|---|
| Ladywell Place, Plymouth, PL4 | £ 475,000 | BUY | 6 / 10 | 0.00 KM |
| Ladywell Place, Plymouth | £ 160,000 | BUY | 5 / 10 | 0.01 KM |
| Ladywell Place, Plymouth, Devon, PL4 | £ 140,000 | BUY | 6 / 10 | 0.02 KM |
| Gascoyne Place, Plymouth | £ 150,000 | BUY | 6 / 10 | 0.11 KM |
| Gascoyne Place, Greenbank, Plymouth | £ 200,000 | BUY | Unknown | 0.12 KM |
Nearby Properties
| Address | Price | Distance |
|---|---|---|
| 12 Ladywell Place | £ 240,000 | 0.01 KM |
| 70 Camden Street | £ 81,000 | 0.03 KM |
| 94 Camden Street | £ 46,950 | 0.03 KM |
| 86 Camden Street | £ 88,000 | 0.03 KM |
| 20 Beaumont Avenue | £ 121,000 | 0.07 KM |