Nested says ..
We are delighted to bring this 4 bedroom, detached home in the beautiful village of Tewin to market. Rarely available with a beautiful garden, this home needs to be seen to be fully appreciated
Property Oracle says ..
Location: Tewin is a desirable village in Hertfordshire, known for its peaceful atmosphere and village feel. The property’s proximity to Tewin Cowper Church of England Voluntary Aided Primary School (0.28km) is a significant advantage for families. While slightly further, other good Ofsted-rated primary schools are also within a reasonable distance. The nearby train stations (Welwyn North, Welwyn Garden City) provide good transport links to London and other areas, adding to the property’s appeal.
Condition: The property appears to be in good condition. The images show a well-maintained interior with a recently updated kitchen and bathrooms. There is no visible evidence of significant repairs or renovations needed.
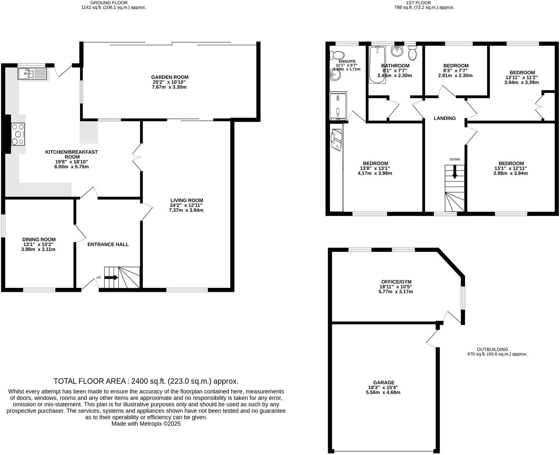
Land: The property includes a sizeable garden, offering ample outdoor space. The garden is well-maintained, as evidenced by the photos.
Price: The list price of £875,000 is higher than the average price for the area (£761,666). However, the property is significantly larger than the average (2,134.69 sqft vs 1,584 sqft). Considering its size, location, good condition, and the presence of a garden, the price appears to be in line with the market value for similar properties in Tewin. While some nearby properties are listed at lower prices, they are either smaller or of a different type (terraced vs detached). The higher-priced nearby listings support the asking price, demonstrating that similar detached properties in desirable locations command a premium.
Therefore, we give this property 8 / 10. *Disclaimer: This is our option and does constitute a recommendation or financial advice. Do your own research. *
- Price
- 7
- Condition
- 9
- Location
- 9
- Land
- 8
- Bedrooms
- 4
- Bathrooms
- 2
- Sqft (est)
- 2,134.69
- Lot (est)
- 2,400.00
The heatmap indicates the level of crime in the area. The color of the heatmap indicates the crime severity and recency.
Metrics Year-on-Year
- Average area value
- 1,374,500.00 £Increased by 3.64 %
- Est sale value
- 1,344,854.70 £Decreased by 36.62 %
- Average area rental value
- 2,050.00 £/moDecreased by 36.32 %
- Est letting value
- 0.00 £/moDecreased by 100.00 %
- Est rental Yield
- 1.79 %Decreased by 38.49 %
- Crime Rate
- 29.00 %Unchanged by 0.00 %
Agent Activity
Nested created the listing.
Nearby Schools
| Name | Type | Ofsted | Distance |
|---|---|---|---|
| Tewin Cowper Church Of England Voluntary Aided Primary School | Voluntary Aided School | Good | 0.28 KM |
| Springmead Primary School | Academy Sponsor Led | 2.28 KM | |
| Watchlytes Primary School | Community School | Good | 2.97 KM |
| The Holy Family Catholic Primary School | Voluntary Aided School | Good | 3.06 KM |
| Waterside Academy | Academy Converter | 3.11 KM |
Images
Nearby Streets
| Name | Average Price | Average Sqft | Distance |
|---|---|---|---|
| School Lane | £ 0 | 0 | 0.00 KM |
| Badgers Walk | £ 1,250,000 | 0 | 0.00 KM |
Nearby Transport
| Name | NLC | TLC | Distance |
|---|---|---|---|
| Welwyn North | 6096 | WLW | 4.17 KM |
| Welwyn Garden City | 6183 | WGC | 5.75 KM |
| Watton-At-Stone | 6095 | WAS | 5.83 KM |
| Knebworth | 6088 | KBW | 6.55 KM |
| Hertford North | 6085 | HFN | 7.27 KM |
Nearby Listings
| Address | Price | Type | Score | Distance |
|---|---|---|---|---|
| Harwood Close, Tewin, AL6 | £ 875,000 | BUY | 8 / 10 | 0.00 KM |
| Lower Green, Tewin, Welwyn | £ 525,000 | BUY | 6 / 10 | 0.10 KM |
| Lower Green, Tewin, AL6 | £ 500,000 | BUY | Unknown | 0.10 KM |
| Lower Green, Tewin | £ 550,000 | BUY | 7 / 10 | 0.11 KM |
| Godfries Close, Tewin, Welwyn, AL6 0LQ | £ 750,000 | BUY | 7 / 10 | 0.20 KM |
Nearby Properties
| Address | Price | Distance |
|---|---|---|
| 14 Harwood Close | £ 245,000 | 0.06 KM |
| 32 Harwood Close | £ 385,000 | 0.06 KM |
| 13 Harwood Close | £ 250,000 | 0.06 KM |
| 28 Harwood Close | £ 615,000 | 0.06 KM |
| 33 Harwood Close | £ 395,000 | 0.06 KM |