Winkworth says ..
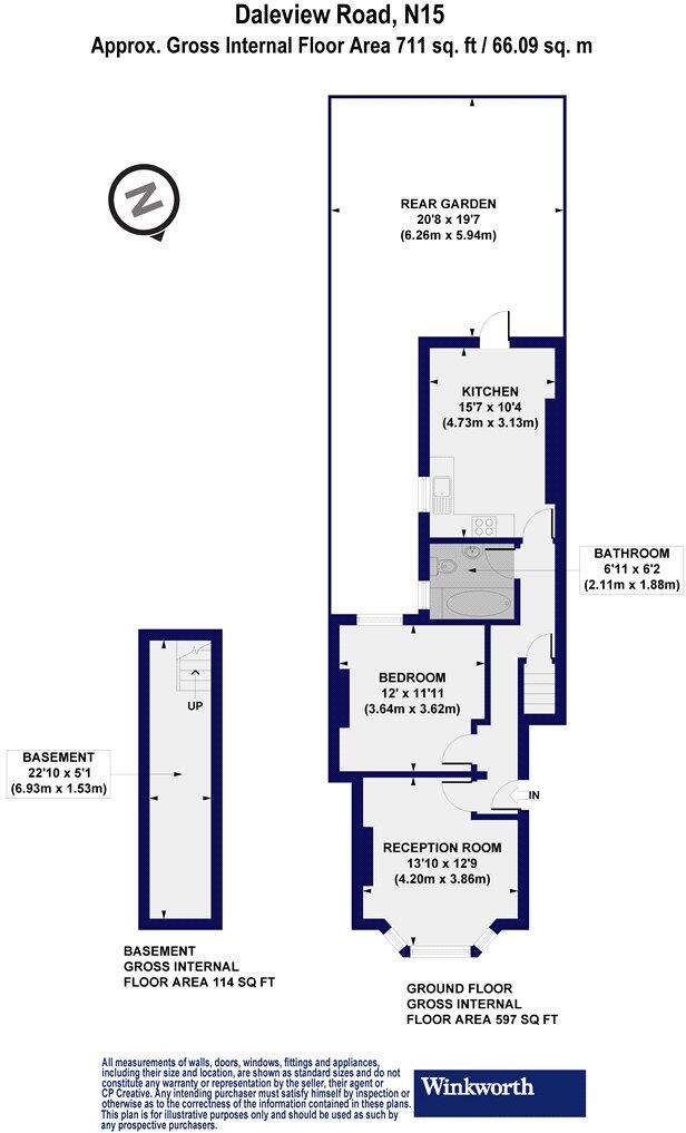
A stunning, one double bedroom apartment set on the ground floor of this handsome, Victorian building in N15. Standing in excess of 700 sqft, the property gives any potential purchase superb potential to come in and put their own stamp on it. Accommodation comprises of a spacious reception room, ...
Property Oracle says ..
Therefore, we give this property 7 / 10. *Disclaimer: This is our option and does constitute a recommendation or financial advice. Do your own research. *
- Price
- 8
- Condition
- 7
- Location
- 7
- Land
- 6
- Bedrooms
- 1
- Bathrooms
- 1
- Sqft (est)
- 1,042.25
The heatmap indicates the level of crime in the area. The color of the heatmap indicates the crime severity and recency.
Metrics Year-on-Year
- Average area value
- 789,000.00 £Increased by 13.27 %
- Est sale value
- 1,211,094.50 £Increased by 105.66 %
- Average area rental value
- 2,233.00 £/moIncreased by 4.05 %
- Est letting value
- 3,126.75 £/moIncreased by 200.00 %
- Est rental Yield
- 3.40 %Decreased by 8.11 %
- Crime Rate
- 6.00 %Unchanged by 0.00 %
from 696,574.00 £
from 588,871.25 £
from 2,146.00 £/mo
from 1,042.25 £/mo
from 3.70 %
from 6.00 %
Agent Activity
Winkworth created the listing.
Nearby Schools
| Name | Type | Ofsted | Distance |
|---|---|---|---|
| Our Lady'S Catholic High School | Voluntary Aided School | Good | 0.26 KM |
| Beis Yaakov Girls School | Other Independent School | Good | 0.27 KM |
| Yesodey Hatorah School | Other Independent School | Requires improvement | 0.33 KM |
| Vishnitz Girls School | Other Independent School | Good | 0.35 KM |
| Yesodey Hatorah Girls School | Other Independent School | 0.37 KM |
Images
Nearby Streets
| Name | Average Price | Average Sqft | Distance |
|---|---|---|---|
| Latimer Road | £ 0 | 0 | 0.00 KM |
| Russell Road | £ 672,500 | 0 | 0.00 KM |
| Barry Avenue | £ 0 | 0 | 0.00 KM |
| Fairview Road | £ 0 | 0 | 0.00 KM |
| Tarbert Mews | £ 0 | 0 | 0.00 KM |
Nearby Transport
| Name | NLC | TLC | Distance |
|---|---|---|---|
| Stamford Hill | 6968 | SMH | 0.17 KM |
| South Tottenham | 7404 | STO | 0.72 KM |
| Seven Sisters | 6931 | SVS | 0.72 KM |
| Stoke Newington | 6934 | SKW | 1.27 KM |
| Bruce Grove | 6958 | BCV | 2.15 KM |
Nearby Listings
| Address | Price | Type | Score | Distance |
|---|---|---|---|---|
| Daleview Road, London, N15 | £ 500,000 | BUY | 7 / 10 | 0.00 KM |
| Ground Floor Flat, 5 Daleview Road, Tottenham, London, N15 | £ 160,000 | BUY | 5 / 10 | 0.05 KM |
| Thorpe Road, London, N15 | £ 550,000 | BUY | 7 / 10 | 0.06 KM |
| Howard Road, Tottenham, London, N15 | £ 450,000 | BUY | 5 / 10 | 0.10 KM |
| Vartry Road, London, N15 | £ 575,000 | BUY | 7 / 10 | 0.10 KM |
Nearby Properties
| Address | Price | Distance |
|---|---|---|
| 18 Daleview Road | £ 310,000 | 0.03 KM |
| 32 Daleview Road | £ 75,500 | 0.03 KM |
| 52 Daleview Road | £ 300,000 | 0.03 KM |
| 25a Daleview Road | £ 265,000 | 0.07 KM |
| 29 Daleview Road | £ 250,000 | 0.07 KM |