Cloudesley Road, St Leonards on Sea
By John Bray
£ 160,000
Reviews
2 out of 5 stars
John Bray says ..
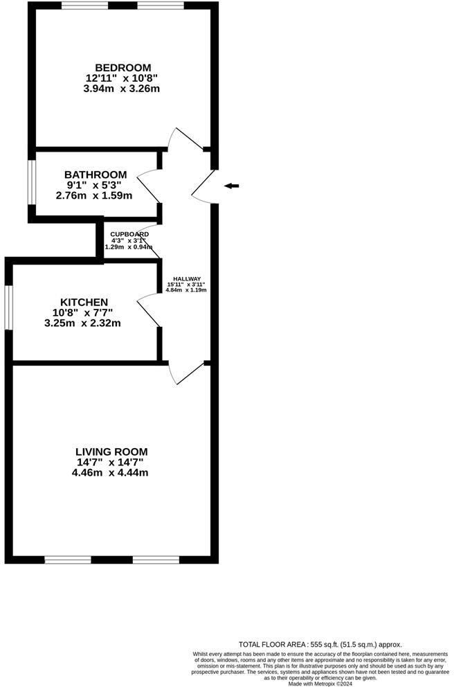
The property : a well presented and spacious double bedroom apartment located on the ground floor of this attractive period building. The accommodation comprises a bright living room which measures 14'7" x 14'7", positioned at the rear of the property with original features including a grand cast...
Property Oracle says ..
This is a one-bedroom flat in Gensing, St Leonards on Sea. The property is in a good location, close to local amenities and transport links. The flat itself is in reasonable condition, but it would benefit from some modernisation. The property does not have a garden, but it is located close to several parks and green spaces. The asking price of £160,000 is below the average for the area, making it an attractive purchase for first-time buyers or investors.
Therefore, we give this property 5 / 10. *Disclaimer: This is our option and does constitute a recommendation or financial advice. Do your own research. *
- Price
- 7
- Condition
- 5
- Location
- 7
- Land
- 3
- Bedrooms
- 1
- Bathrooms
- 1
- Sqft (est)
- 554.77
The heatmap indicates the level of crime in the area. The color of the heatmap indicates the crime severity and recency.
Metrics Year-on-Year
- Average area value
- 288,000.00 £Decreased by 2.53 %
- Est sale value
- 253,529.89 £Increased by 32.08 %
- Average area rental value
- 969.00 £/moDecreased by 11.99 %
- Est letting value
- 554.77 £/moUnchanged by 0.00 %
- Est rental Yield
- 4.04 %Decreased by 9.62 %
- Crime Rate
- 10.00 %Unchanged by 0.00 %
Agent Activity
John Bray created the listing.
Nearby Schools
| Name | Type | Ofsted | Distance |
|---|---|---|---|
| Christ Church Cofe Primary And Nursery Academy | Academy Converter | Good | 0.32 KM |
| St Paul'S Church Of England Academy | Academy Converter | Good | 0.52 KM |
| St Leonards Children'S Centre | Children's Centre | 0.53 KM | |
| Lansdowne Children'S Centre | Secure Units | 0.57 KM | |
| St Mary Star Of The Sea Catholic Primary School | Voluntary Aided School | Good | 0.62 KM |
Images
Nearby Streets
| Name | Average Price | Average Sqft | Distance |
|---|---|---|---|
| Shornden Passage | £ 0 | 0 | 0.00 KM |
| Norcross Passage | £ 0 | 0 | 0.00 KM |
| The Twittens | £ 133,333 | 0 | 0.00 KM |
| Saint John's Road | £ 0 | 0 | 0.00 KM |
| Station Approach | £ 430,000 | 0 | 0.00 KM |
Nearby Transport
| Name | NLC | TLC | Distance |
|---|---|---|---|
| St Leonards Warrior Square | 5239 | SLQ | 0.51 KM |
| Hastings | 5219 | HGS | 1.82 KM |
| West St Leonards | 5242 | WLD | 2.40 KM |
| Ore | 5021 | ORE | 3.52 KM |
| Crowhurst | 5233 | CWU | 7.26 KM |
Nearby Listings
| Address | Price | Type | Score | Distance |
|---|---|---|---|---|
| Cloudesley Road, St Leonards on Sea | £ 160,000 | BUY | 5 / 10 | 0.00 KM |
| Cloudesley Road, St. Leonards-On-Sea | £ 160,000 | BUY | 6 / 10 | 0.01 KM |
| Cloudesley Road, St. Leonards-On-Sea | £ 199,950 | BUY | 5 / 10 | 0.02 KM |
| Cloudesley Road, St. Leonards-On-Sea | £ 900,000 | BUY | 6 / 10 | 0.09 KM |
| De Cham Road, St. Leonards-On-Sea | £ 165,000 | BUY | 7 / 10 | 0.09 KM |
Nearby Properties
| Address | Price | Distance |
|---|---|---|
| 7 Cloudesley Road | £ 245,000 | 0.03 KM |
| 3 Cloudesley Road | £ 290,000 | 0.03 KM |
| 6 Cloudesley Road | £ 662,500 | 0.03 KM |
| 41 St Peters Road | £ 355,000 | 0.07 KM |
| 12 Cloudesley Road | £ 293,000 | 0.10 KM |