Milton Road, Cambridge, CB4
CA

Milton Road, Cambridge, CB4

By Carter Jonas

£ 795,000

Reviews

3 out of 5 stars

Carter Jonas says ..

A superbly extended and renovated three-bedroom, semi-detached 1930s city home occupying an exceptional plot with huge potential for development (stp).

Property Oracle says ..

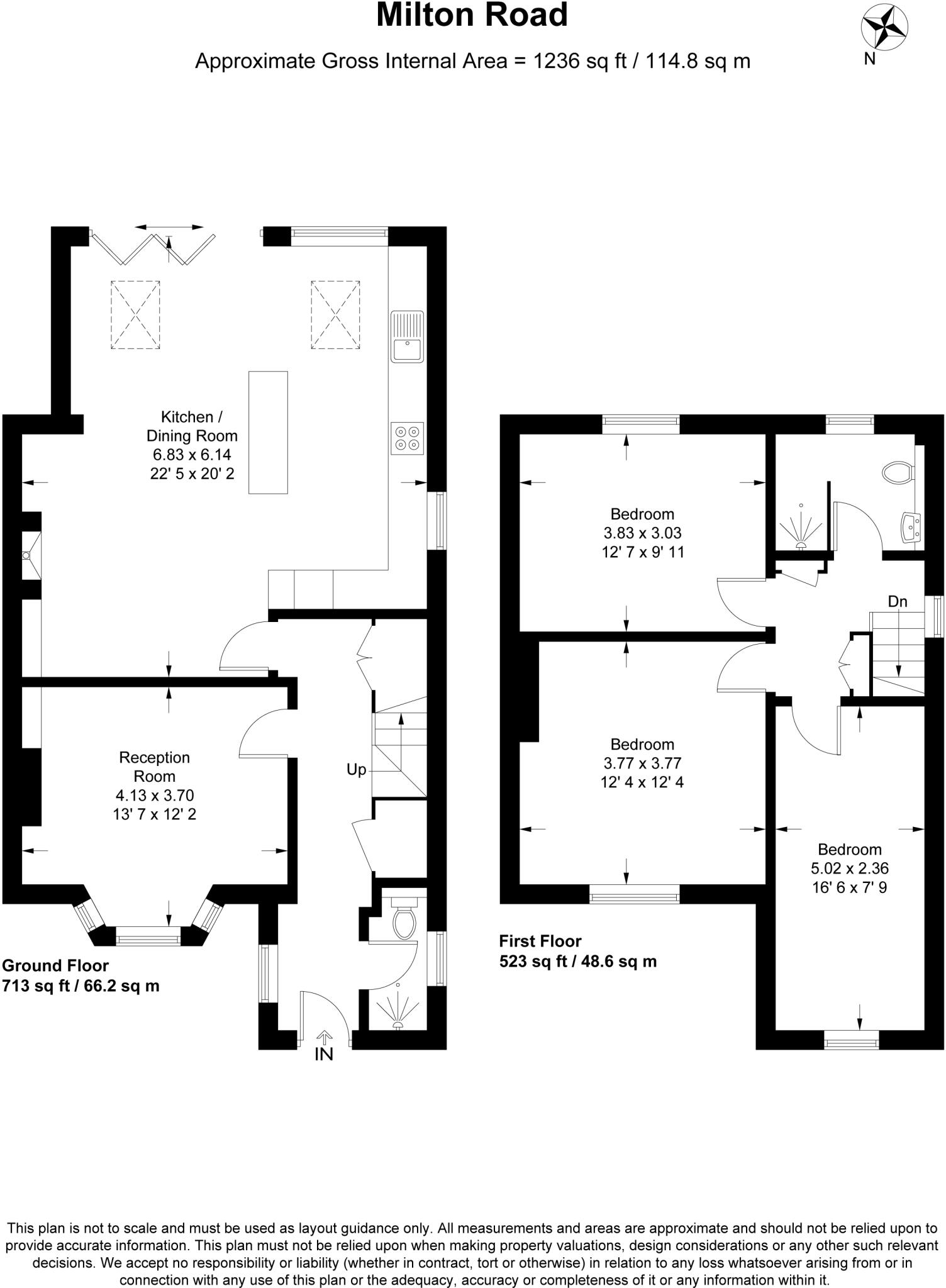
The property is located in King’s Hedges, Cambridge, a residential area. The proximity to Cambridge North train station (1.85km) offers convenient access to Cambridge city centre and beyond. Several primary schools with “Good” Ofsted ratings are within a reasonable distance, making it potentially attractive to families. The average house price in the area is £380,526, and the average price per square foot is £427. Based on the images, the property appears to have undergone a significant extension and modernisation, particularly the kitchen and rear extension. The interior is presented in a modern style, with new flooring and fixtures. However, some original features remain, such as the wooden flooring in the bedrooms, which might be considered characterful by some buyers. The property benefits from a garden, although the images suggest it may require some landscaping. Considering the property’s size (1235.70 sqft), modern interior, and garden, the list price of £795,000 appears relatively high compared to the average price per square foot in the area (£427). Nearby comparable properties show a range of prices, with some significantly lower. The lack of plot size information in the listing makes it difficult to fully assess the value, particularly given the garden’s apparent size. Further investigation into the specific features and condition of the property would be needed to fully justify the list price.

Therefore, we give this property 6 / 10. *Disclaimer: This is our option and does constitute a recommendation or financial advice. Do your own research. *

Price
6
Condition
8
Location
7
Land
6
Bedrooms
3
Bathrooms
2
Sqft (est)
1,235.70

The heatmap indicates the level of crime in the area. The color of the heatmap indicates the crime severity and recency.

Metrics Year-on-Year

Average area value
486,667.00 £
Increased by 28.96 %
from 377,364.00 £
Est sale value
755,012.70 £
Increased by 22.44 %
from 616,614.30 £
Average area rental value
1,440.00 £/mo
Decreased by 10.17 %
from 1,603.00 £/mo
Est letting value
1,235.70 £/mo
Decreased by 50.00 %
from 2,471.40 £/mo
Est rental Yield
3.55 %
Decreased by 30.39 %
from 5.10 %
Crime Rate
4.00 %
Unchanged by 0.00 %
from 4.00 %

Agent Activity

  • Carter Jonas created the listing.

Nearby Schools

NameTypeOfstedDistance
Chesterton Primary SchoolAcademy Sponsor LedGood0.68 KM
Shirley Community Primary SchoolCommunity SchoolGood1.01 KM
Cambridge Arts And Sciences Sixth Form And Tutorial CollegeOther Independent School1.05 KM
The Grove Primary SchoolCommunity SchoolGood1.14 KM
Chesterton Child And Family CentreChildren's Centre1.20 KM

Images

Picture No. 24 Picture No. 04 Picture No. 05 Picture No. 13 Picture No. 06 Picture No. 12 Picture No. 07 Picture No. 21 Picture No. 22 Picture No. 09 Picture No. 10 Picture No. 14 Picture No. 08 Picture No. 15 Picture No. 16 Picture No. 17 Picture No. 23

Nearby Streets

NameAverage PriceAverage SqftDistance
Eaton Close £ 000.00 KM
Martin's Stile Lane £ 000.00 KM
Morello Place £ 000.00 KM
Guided Busway bridleway £ 000.00 KM
Codon Court £ 365,00000.00 KM

Nearby Transport

NameNLCTLCDistance
Cambridge North8001CMB1.85 KM
Cambridge7022CBG3.47 KM
Waterbeach7079WBC7.37 KM
Shelford (Cambs)7043SED8.48 KM

Nearby Listings

AddressPriceTypeScoreDistance
Milton Road, Cambridge, CB4 £ 795,000BUY6 / 100.00 KM
Milton Road, Cambridge, Cambridgeshire £ 975,000BUY6 / 100.04 KM
Woodhead Drive, Cambridge, Cambridgeshire, CB4 £ 275,000BUY6 / 100.10 KM
Milton Road, Cambridge £ 200,000BUY7 / 100.11 KM
Fraser Road, Cambridge £ 600,000BUY6 / 100.13 KM

Nearby Properties

AddressPriceDistance
330 Milton Road £ 270,0000.02 KM
344 Milton Road £ 510,0000.02 KM
338 Milton Road £ 535,0000.02 KM
326 Milton Road £ 490,0000.02 KM
348 Milton Road £ 300,0000.02 KM