Burnbank Street, Airdrie, ML6
LA

Burnbank Street, Airdrie, ML6

By Lanarkshire Law Estate Agents Limited

£ 125,000

Reviews

3 out of 5 stars

Lanarkshire Law Estate Agents Limited says ..

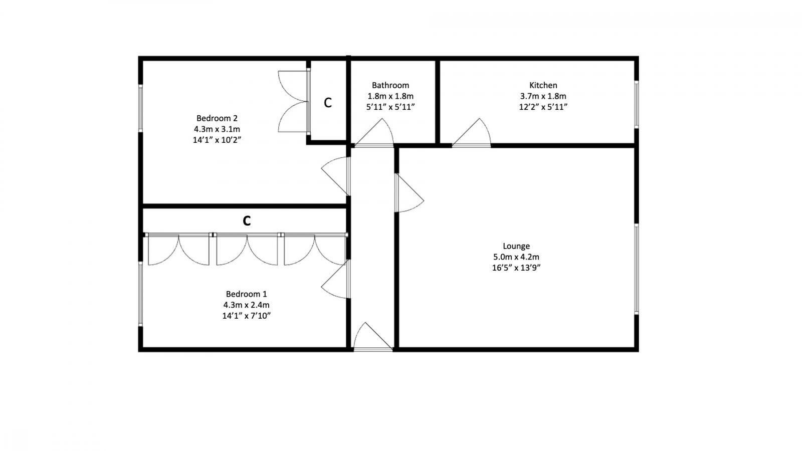
Located on the quiet and desirable Burnbank Street in Airdrie, this modern two-bedroom semi-detached bungalow is presented to the market in true walk-in condition. Tastefully decorated throughout in neutral tones, this bright and airy home

Property Oracle says ..

This semi-detached bungalow in Airdrie, North Lanarkshire is listed at £125,000. The property boasts 2 bedrooms and 1 bathroom, spanning 587.17 sqft. While the plot size is not specified, the images show a small, enclosed rear garden with a decked area. The interior has been recently renovated, featuring a modern kitchen and updated bathrooms. The living area is bright and spacious with a feature fireplace. The property appears to be in excellent condition. Airdrie benefits from good transport links, with Airdrie train station less than a kilometer away, offering connections to Glasgow and beyond. However, the average house price in the area is significantly higher at £217,650, and the average price per sqft is £199. This property is priced considerably lower than the average, which may reflect its smaller size and plot. Nearby properties are mostly flats or land plots, with prices varying greatly. Considering the condition, location and size, the asking price may be considered reasonable for a smaller property in need of no work.

Therefore, we give this property 6 / 10. *Disclaimer: This is our option and does constitute a recommendation or financial advice. Do your own research. *

Price
7
Condition
9
Location
7
Land
3
Bedrooms
2
Bathrooms
1
Sqft (est)
587.17

The heatmap indicates the level of crime in the area. The color of the heatmap indicates the crime severity and recency.

Metrics Year-on-Year

Average area value
270,748.00 £
Increased by 61.17 %
from 167,987.00 £
Est sale value
120,957.02 £
Increased by 21.18 %
from 99,818.90 £
Average area rental value
939.00 £/mo
Increased by 29.70 %
from 724.00 £/mo
Est letting value
0.00 £/mo
from 0.00 £/mo
Est rental Yield
4.16 %
Decreased by 19.54 %
from 5.17 %
Crime Rate
0.00 %
from 0.00 %

Agent Activity

  • Lanarkshire Law Estate Agents Limited marked this listing as sold.

  • Lanarkshire Law Estate Agents Limited created the listing.

Images

2 Bedroom Semi Detached Bungalow for Sale Gallery Gallery Gallery Gallery Gallery Gallery Gallery Gallery Gallery Gallery Gallery Gallery Gallery Gallery Gallery Gallery Gallery Gallery Gallery Gallery Gallery Gallery Gallery Gallery Gallery Gallery Gallery

Nearby Streets

NameAverage PriceAverage SqftDistance
Burnbank Street £ 103,50000.00 KM
Davidson Street £ 84,99900.00 KM
Burnbank Quadrant £ 000.00 KM
Aitchison Court £ 000.00 KM
Mitchell Street £ 000.00 KM

Nearby Transport

NameNLCTLCDistance
Airdrie9759ADR0.64 KM
Coatdyke9762COA2.02 KM
Whifflet9753WFF3.84 KM
Drumgelloch9757DRU4.22 KM
Coatbridge Sunnyside9752CBS4.56 KM

Nearby Listings

AddressPriceTypeScoreDistance
Burnbank Street, Airdrie, ML6 £ 125,000BUY6 / 100.00 KM
Land North Of 31 Davidson Street, Airdrie, ML6 0ED £ 75,000BUY5 / 100.07 KM
Land North Of 31 Davidson Street, Airdrie, ML6 0ED £ 45,000BUY5 / 100.07 KM
High Street, Airdrie, ML6 £ 60,000BUY5 / 100.08 KM
High Street, Airdrie, Lanarkshire, ML6 £ 35,000BUYUnknown0.08 KM