Loudon Way, Ashford, Kent, TN23 3NE
By eXp UK
£ 160,000
Reviews
2 out of 5 stars
eXp UK says ..
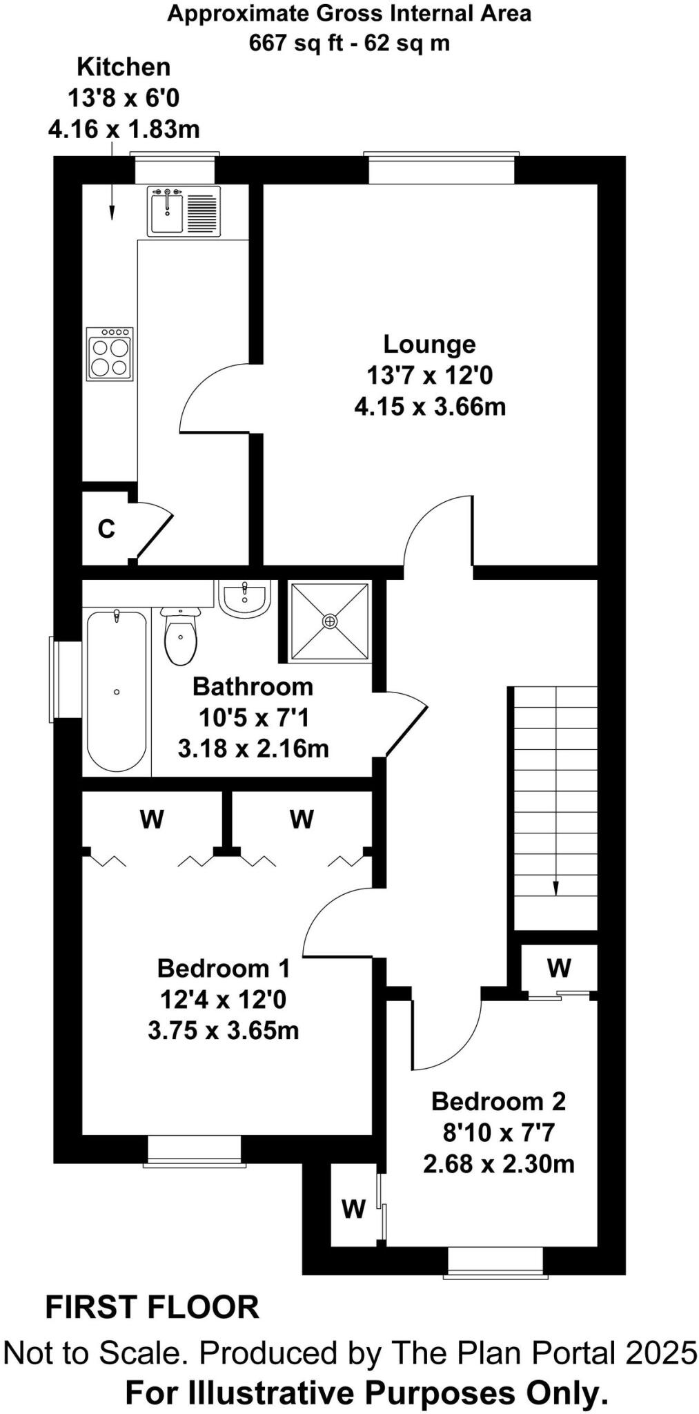
A Two bedroom first floor flat with gas heating, plenty of wardrobe and storage space. You do have to be over 55 to live here though. For more info or to view please call quoting BD0443
Property Oracle says ..
The property is a two-bedroom apartment located in Ashford, Kent. The listing price is £160,000. Based on the provided images, the property appears to be in reasonable condition for its age, although some updating may be desirable to appeal to a wider range of buyers. The kitchen and bathroom appear functional but could benefit from some modernisation. The apartment benefits from built-in storage. The property is part of a retirement complex for over 55s, which may limit its appeal to a specific demographic. There is no mention of a garden or outdoor space.
The average price for properties in the area is significantly higher at £278,019, with an average price per square foot of £315. Considering the property’s size (667.36 sq ft), age, condition, and the fact that it’s within a retirement complex, the listing price of £160,000 appears relatively reasonable, potentially even representing good value for money given the current market conditions in Ashford. However, it’s important to note that the limited outdoor space and age restriction could impact its overall value. The proximity to Godinton Primary School (0.19 KM) is a positive attribute, especially for potential buyers interested in family-friendly locations. Ashford International train station (3.51 KM) also provides convenient transport links.
Therefore, we give this property 5 / 10. *Disclaimer: This is our option and does constitute a recommendation or financial advice. Do your own research. *
- Price
- 8
- Condition
- 7
- Location
- 7
- Land
- 1
- Bedrooms
- 2
- Bathrooms
- 1
- Sqft (est)
- 667.36
The heatmap indicates the level of crime in the area. The color of the heatmap indicates the crime severity and recency.
Metrics Year-on-Year
- Average area value
- 257,097.00 £Decreased by 8.25 %
- Est sale value
- 220,228.80 £Increased by 14.98 %
- Average area rental value
- 956.00 £/moIncreased by 1.92 %
- Est letting value
- 667.36 £/mo
- Est rental Yield
- 4.46 %Increased by 10.95 %
- Crime Rate
- 7.00 %Unchanged by 0.00 %
Agent Activity
eXp UK created the listing.
Nearby Schools
| Name | Type | Ofsted | Distance |
|---|---|---|---|
| Godinton Primary School | Academy Converter | Good | 0.19 KM |
| The Wyvern School (Buxford) | Foundation Special School | Good | 0.78 KM |
| Repton Manor Primary School | Foundation School | Good | 0.90 KM |
| Great Chart Primary School | Community School | Outstanding | 1.68 KM |
| Ashford Oaks Community Primary School | Community School | Good | 1.77 KM |
Images
Nearby Streets
| Name | Average Price | Average Sqft | Distance |
|---|---|---|---|
| Rowan Close | £ 0 | 0 | 0.00 KM |
| Lilac Court | £ 0 | 0 | 0.00 KM |
| Patrick Clayton Drive | £ 225,000 | 0 | 0.00 KM |
| Aspen Drive | £ 0 | 0 | 0.00 KM |
| Honeyfield | £ 0 | 0 | 0.00 KM |
Nearby Transport
| Name | NLC | TLC | Distance |
|---|---|---|---|
| Ashford International | 5004 | AFK | 3.51 KM |
| Charing (Kent) | 5097 | CHG | 8.69 KM |
| Ham Street | 5037 | HMT | 9.45 KM |
| Wye | 5031 | WYE | 9.90 KM |
Nearby Listings
| Address | Price | Type | Score | Distance |
|---|---|---|---|---|
| Loudon Way, Ashford, Kent, TN23 3NE | £ 160,000 | BUY | 5 / 10 | 0.00 KM |
| Loudon Way, Ashford, Kent, TN23 3NE | £ 150,000 | BUY | 6 / 10 | 0.00 KM |
| Loudon Way, Ashford, Kent, TN23 3NE | £ 160,000 | BUY | 6 / 10 | 0.00 KM |
| Loudon Way, Ashford | £ 160,000 | BUY | 6 / 10 | 0.01 KM |
| Loudon Court, Godinton Park TN23 | £ 140,000 | BUY | 5 / 10 | 0.08 KM |
Nearby Properties
| Address | Price | Distance |
|---|---|---|
| 8 Lockholt Close | £ 200,000 | 0.07 KM |
| 4 Lockholt Close | £ 157,500 | 0.07 KM |
| 2 Lockholt Close | £ 170,000 | 0.07 KM |
| 31 Lockholt Close | £ 185,000 | 0.09 KM |
| 7 Lockholt Close | £ 245,000 | 0.09 KM |