Good Move says ..
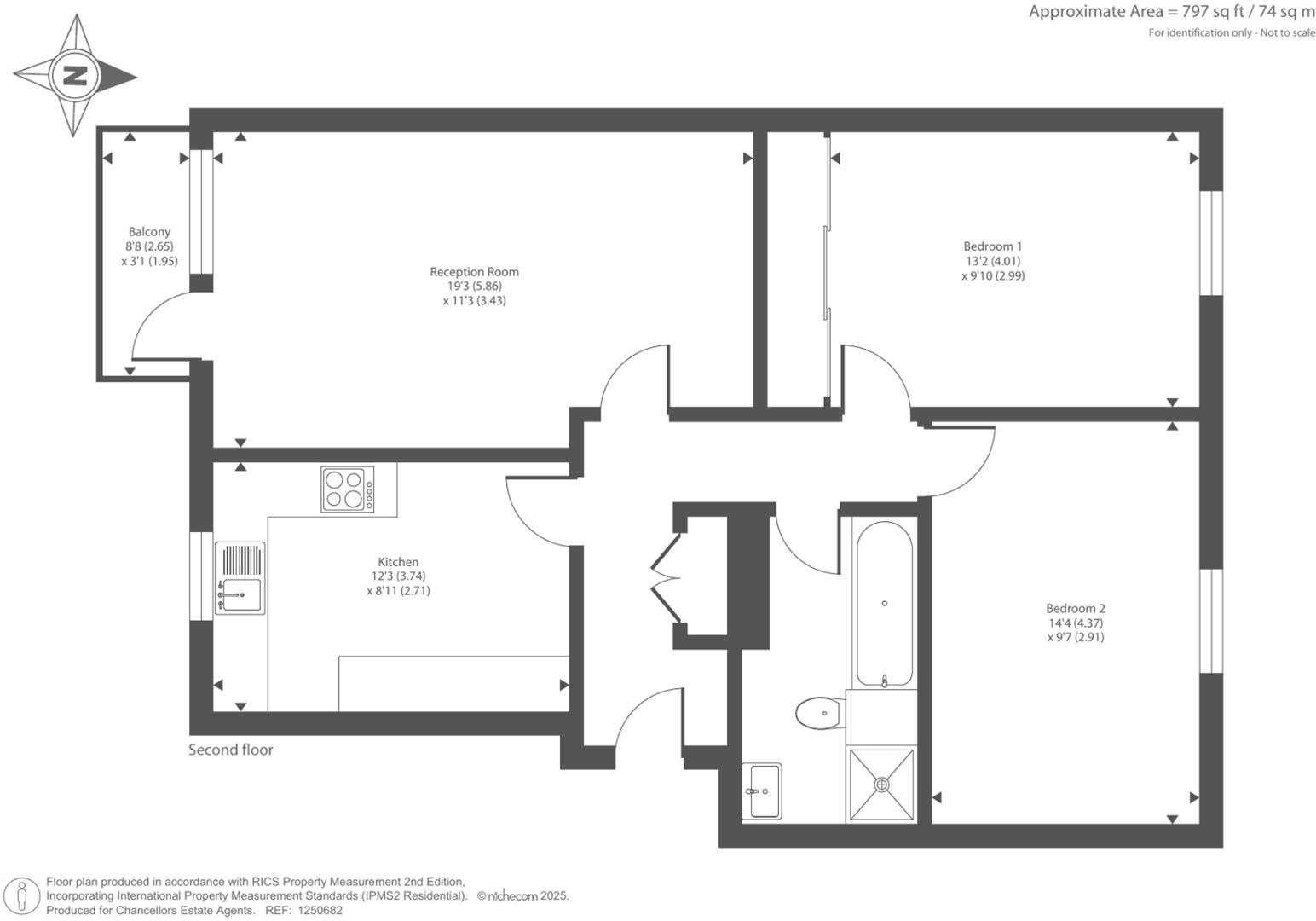
Goodmove are delighted to present this two bedroom apartment for a quick sale. Ideally positioned within walking distance of the mainline and Reading West station with local bus routes nearby the apartment will appeal for purchaser seeking central address with excellent transport links....
Property Oracle says ..
Therefore, we give this property 6 / 10. *Disclaimer: This is our option and does constitute a recommendation or financial advice. Do your own research. *
- Price
- 9
- Condition
- 8
- Location
- 8
- Land
- 1
- Bedrooms
- 2
- Bathrooms
- 1
- Sqft (est)
- 620.96
The heatmap indicates the level of crime in the area. The color of the heatmap indicates the crime severity and recency.
Metrics Year-on-Year
- Average area value
- 382,304.00 £Increased by 10.41 %
- Est sale value
- 263,908.00 £Increased by 23.91 %
- Average area rental value
- 1,370.00 £/moIncreased by 3.55 %
- Est letting value
- 620.96 £/moUnchanged by 0.00 %
- Est rental Yield
- 4.30 %Decreased by 6.32 %
- Crime Rate
- 8.00 %Unchanged by 0.00 %
from 346,255.00 £
from 212,989.28 £
from 1,323.00 £/mo
from 620.96 £/mo
from 4.59 %
from 8.00 %
Agent Activity
Good Move marked this listing as sold.
Good Move created the listing.
Nearby Schools
| Name | Type | Ofsted | Distance |
|---|---|---|---|
| The Wren School | Free Schools | Good | 0.35 KM |
| Cranbury College | Academy Alternative Provision Converter | 0.55 KM | |
| St Edward'S Prep | Other Independent School | 0.57 KM | |
| Battle Primary Academy | Academy Sponsor Led | Good | 0.64 KM |
| Blessed Hugh Faringdon Catholic School | Voluntary Aided School | Good | 0.84 KM |
Images
Nearby Streets
| Name | Average Price | Average Sqft | Distance |
|---|---|---|---|
| Pineridge Gardens | £ 245,000 | 0 | 0.00 KM |
| Monck Court | £ 0 | 0 | 0.00 KM |
| Bath Road Overbridge | £ 1,150,000 | 0 | 0.00 KM |
| Shire's Head Close | £ 0 | 0 | 0.00 KM |
| Connaught Road | £ 0 | 0 | 0.00 KM |
Nearby Transport
| Name | NLC | TLC | Distance |
|---|---|---|---|
| Reading West | 3160 | RDW | 1.13 KM |
| Reading | 3149 | RDG | 3.04 KM |
| Tilehurst | 3154 | TLH | 4.45 KM |
| Theale | 3153 | THE | 8.76 KM |
| Earley | 5694 | EAR | 8.79 KM |
Nearby Listings
| Address | Price | Type | Score | Distance |
|---|---|---|---|---|
| Westcote Road, Reading | £ 150,000 | BUY | 6 / 10 | 0.00 KM |
| Westcote Road, Reading, Berkshire, RG30 | £ 215,000 | BUY | 7 / 10 | 0.07 KM |
| Westcote Road, Reading, Berkshire, RG30 | £ 215,000 | BUY | 7 / 10 | 0.07 KM |
| Westcote Road, Reading, Berkshire, RG30 | £ 215,000 | BUY | 6 / 10 | 0.07 KM |
| Westcote Road, Reading | £ 220,000 | BUY | 6 / 10 | 0.11 KM |
Nearby Properties
| Address | Price | Distance |
|---|---|---|
| 27 Westcote Road | £ 350,000 | 0.16 KM |
| 58 Southcote Lane | £ 477,500 | 0.23 KM |
| 15 Southcote Lane | £ 265,000 | 0.23 KM |
| 17 Southcote Lane | £ 400,000 | 0.23 KM |
| 43 Southcote Lane | £ 240,000 | 0.23 KM |