May Cottage, Llandogo, NP25
By Roscoe Rogers & Knight
£ 550,000
Reviews
3 out of 5 stars
Roscoe Rogers & Knight says ..
Nestled in an elevated position in the heart of the Wye Valley, is this stylishly presented four-bedroom family home with exceptional views overlooking the river and surrounding countryside. Located in an area of outstanding natural beauty, the property has been sympathetically modernised with li...
Property Oracle says ..
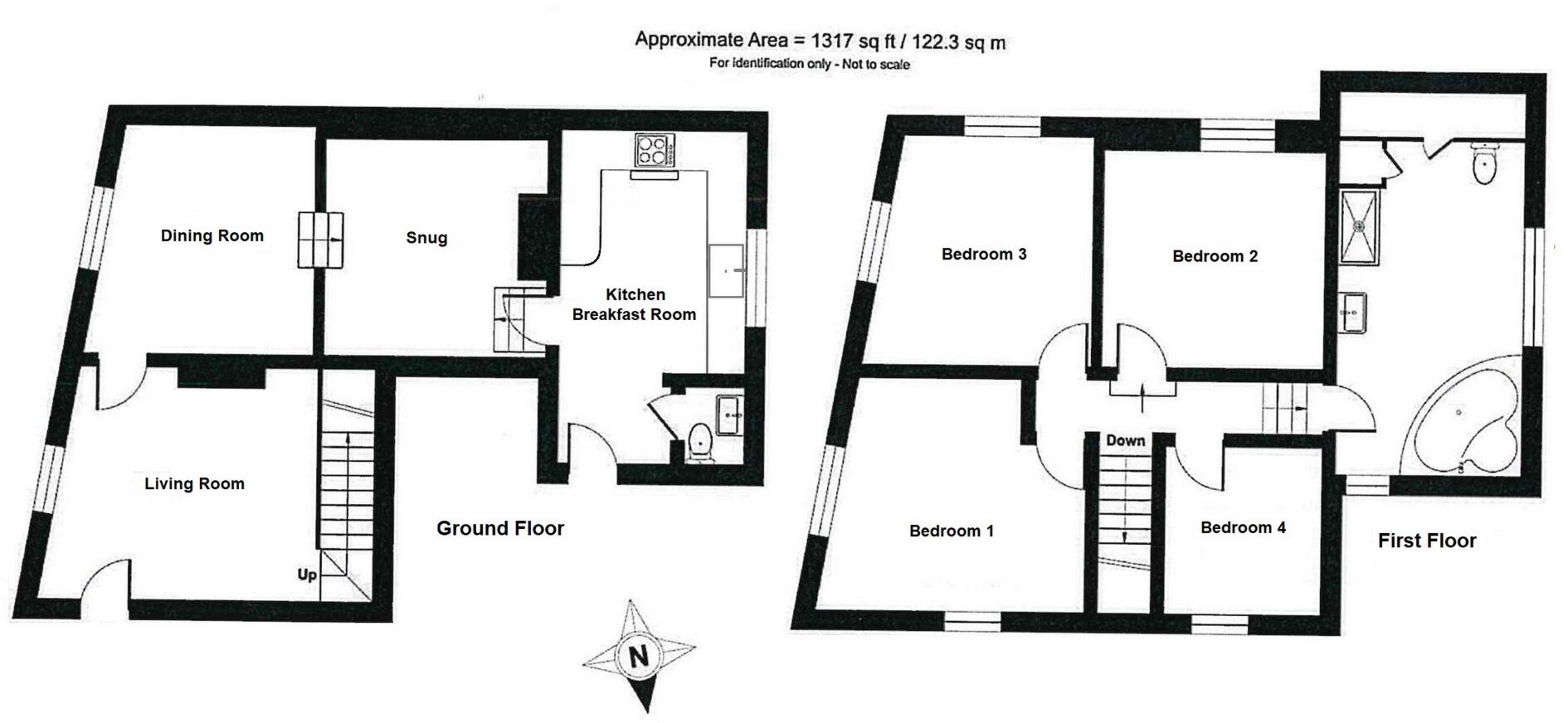
May Cottage is a charming property located in Llandogo, Monmouthshire. The property benefits from being close to Llandogo C.P. School, situated just 0.30 KM away. While other schools are further afield, the proximity of a primary school is a positive for families. The images show the property to be in good condition, with a recently renovated kitchen and well-maintained interior. The property also boasts a garden, adding to its appeal. The list price of £550,000 is significantly higher than the average house price in the area (£284,944). However, comparing it to nearby comparable properties, such as Alpine Lodge (£525,000) and Sibrwd-Y-Coed (£675,000), the price appears more reasonable, although still at the higher end of the market. The lack of square footage data prevents a precise price per square foot comparison, making a definitive statement on value difficult. Overall, May Cottage presents a desirable property in a convenient location, though the price should be carefully considered in relation to the available data.
Therefore, we give this property 7 / 10. *Disclaimer: This is our option and does constitute a recommendation or financial advice. Do your own research. *
- Price
- 7
- Condition
- 9
- Location
- 8
- Land
- 7
- Bedrooms
- 4
- Bathrooms
- 2
- Sqft (est)
- 1,334.72
The heatmap indicates the level of crime in the area. The color of the heatmap indicates the crime severity and recency.
Metrics Year-on-Year
- Average area value
- 287,293.00 £Decreased by 0.23 %
- Est sale value
- 660,686.40 £Increased by 93.36 %
- Average area rental value
- 1,083.00 £/moIncreased by 11.42 %
- Est letting value
- 1,334.72 £/mo
- Est rental Yield
- 4.52 %Increased by 11.60 %
- Crime Rate
- 0.00 %
Agent Activity
Roscoe Rogers & Knight created the listing.
Nearby Schools
| Name | Type | Ofsted | Distance |
|---|---|---|---|
| Llandogo C.P. School | Welsh Establishment | 0.30 KM | |
| Trellech C.P. School | Welsh Establishment | 4.22 KM | |
| St Briavels Parochial Church Of England Primary School | Voluntary Aided School | Outstanding | 5.31 KM |
| Redbrook Church Of England Primary School | Voluntary Controlled School | Good | 6.25 KM |
| Clearwell Church Of England Primary School | Voluntary Controlled School | Good | 8.11 KM |
Images
Nearby Streets
| Name | Average Price | Average Sqft | Distance |
|---|---|---|---|
| Jiggers Driveway | £ 0 | 0 | 0.00 KM |
| Craig Las Road | £ 0 | 0 | 0.00 KM |
| Greenbanks | £ 0 | 0 | 0.00 KM |
Nearby Listings
| Address | Price | Type | Score | Distance |
|---|---|---|---|---|
| May Cottage, Llandogo, NP25 | £ 550,000 | BUY | 7 / 10 | 0.00 KM |
| The Old Bakery, Llandogo, NP25 | £ 449,000 | BUY | 7 / 10 | 0.03 KM |
| Llandogo, Monmouth | £ 350,000 | BUY | Unknown | 0.18 KM |
| Llandogo, Monmouth, NP25 | £ 399,950 | BUY | 6 / 10 | 0.30 KM |
| Llandogo, Monmouth, Monmouthshire, NP25 | £ 575,000 | BUY | 7 / 10 | 0.36 KM |
Nearby Properties
| Address | Price | Distance |
|---|---|---|
| 4 Knoll View | £ 215,000 | 0.09 KM |
| 3 Knoll View | £ 185,000 | 0.09 KM |
| 1 Knoll View | £ 220,000 | 0.11 KM |
| 1 Old Farmhouse Court | £ 138,000 | 0.27 KM |
| 3 Old Farmhouse Court | £ 185,000 | 0.27 KM |