Sears Property says ..
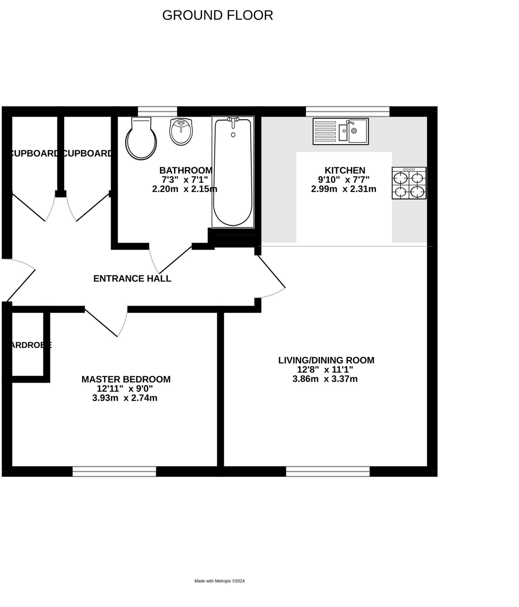
Located in the popular Jennett`s Park development is this top floor one-bedroom apartment, It is ideally positioned for access to main commuter links, the local shop and school as well open green space including Peacock Meadows spreading across 92 acres.
Property Oracle says ..
This one-bedroom flat located on Falcon Way in Bracknell’s Jennett’s Park development presents a modern and well-maintained living space. The interior photos showcase a clean and contemporary aesthetic, with a functional kitchen and bathroom. The proximity to Jennett’s Park Cofe Primary School and the expansive Peacock Meadows makes this appealing to families and nature lovers. The transport links to Bracknell are also an asset. The lack of external space, however, is a key consideration. The property’s value appears to be competitive within the local market, particularly for smaller one-bedroom flats, but further comparison data could inform a more precise valuation. The absence of plot size data makes assessing value against other local properties more difficult, and limits how much can be concluded about the value for money provided by this property
Therefore, we give this property 5 / 10. *Disclaimer: This is our option and does constitute a recommendation or financial advice. Do your own research. *
- Price
- 6
- Condition
- 7
- Location
- 7
- Land
- 1
- Bedrooms
- 1
- Bathrooms
- 1
- Sqft (est)
- 782.21
The heatmap indicates the level of crime in the area. The color of the heatmap indicates the crime severity and recency.
Metrics Year-on-Year
- Average area value
- 423,333.00 £Decreased by 1.00 %
- Est sale value
- 308,972.95 £Increased by 7.63 %
- Average area rental value
- 1,767.00 £/moDecreased by 10.30 %
- Est letting value
- 782.21 £/moUnchanged by 0.00 %
- Est rental Yield
- 5.01 %Decreased by 9.40 %
- Crime Rate
- 2.00 %Unchanged by 0.00 %
Agent Activity
Sears Property created the listing.
Nearby Schools
| Name | Type | Ofsted | Distance |
|---|---|---|---|
| Jennett'S Park Cofe Primary School | Academy Sponsor Led | 0.49 KM | |
| Easthampstead Park Community School | Community School | Good | 0.74 KM |
| Great Hollands Primary School | Academy Sponsor Led | 1.01 KM | |
| The Hollies Children'S Centre | Children's Centre Linked Site | 1.47 KM | |
| Oaks And Hollies Children'S Centre | Children's Centre | 1.47 KM |
Images
Nearby Streets
| Name | Average Price | Average Sqft | Distance |
|---|---|---|---|
| Harrier Way cycle path (north) | £ 430,000 | 0 | 0.00 KM |
| Redwing Place | £ 0 | 0 | 0.00 KM |
| Ringmead | £ 0 | 0 | 0.00 KM |
| Great Hollands Road | £ 340,000 | 0 | 0.00 KM |
| Kings Quarter Queens Quarter | £ 0 | 0 | 0.00 KM |
Nearby Transport
| Name | NLC | TLC | Distance |
|---|---|---|---|
| Bracknell | 5693 | BCE | 3.31 KM |
| Crowthorne | 5628 | CRN | 6.03 KM |
| Martins Heron | 5692 | MAO | 6.20 KM |
| Wokingham | 5696 | WKM | 6.90 KM |
| Sandhurst (Berks) | 5646 | SND | 6.97 KM |
Nearby Listings
| Address | Price | Type | Score | Distance |
|---|---|---|---|---|
| Falcon Way, Bracknell | £ 230,000 | BUY | 5 / 10 | 0.00 KM |
| Falcon Way, Bracknell | £ 220,000 | BUY | 6 / 10 | 0.00 KM |
| Falcon Way, Bracknell, Berkshire, RG12 | £ 285,000 | BUY | 6 / 10 | 0.00 KM |
| Falcon Way, Jennetts Park | £ 285,000 | BUY | 6 / 10 | 0.00 KM |
| Falcon Way, Bracknell, Berkshire, RG12 | £ 500,000 | BUY | 7 / 10 | 0.00 KM |
Nearby Properties
| Address | Price | Distance |
|---|---|---|
| Jennetts View | £ 290,000 | 0.01 KM |
| 50 Falcon Way | £ 427,000 | 0.01 KM |
| 46 Falcon Way | £ 410,000 | 0.01 KM |
| 27 Falcon Way | £ 253,950 | 0.07 KM |
| 23 Falcon Way | £ 260,125 | 0.07 KM |