Knight Frank says ..
A beautifully presented 4 double bedroom house that has been meticulously refurbished to a high standard by the current owners, located in the popular Earlsfield grid. Discover this beautifully refurbished 4-bedroom family home, ideally positioned on a quiet residential street in the heart of Ea...
Property Oracle says ..
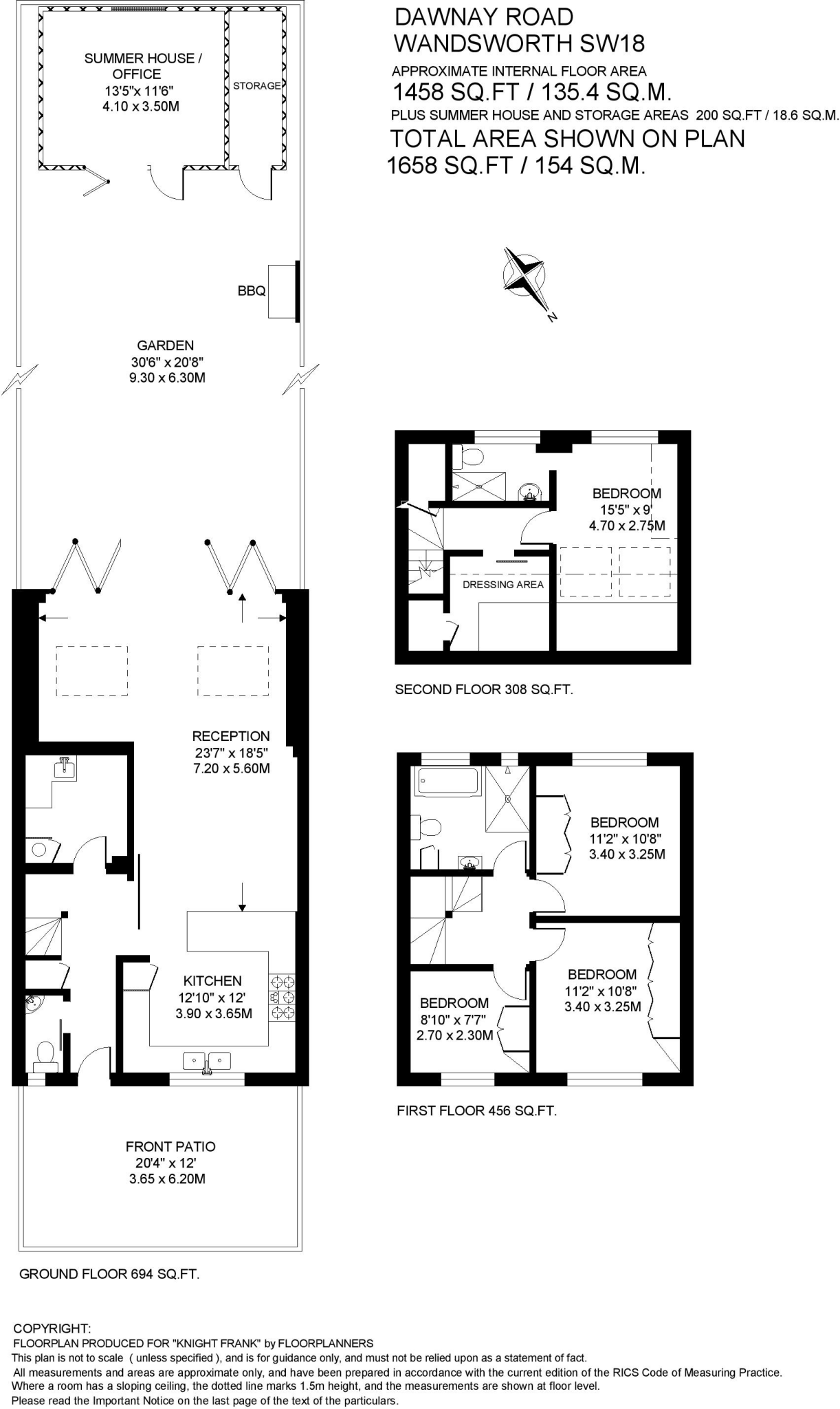
This property is a 4 bedroom, 2 bathroom terraced house located in the Earlsfield area of Wandsworth, London. The property benefits from a modern extension to the rear, creating a large open plan kitchen/living area that opens onto a well-maintained garden. The house is presented in excellent condition and has been recently renovated to a high standard. The location is convenient with good access to local schools, transportation links and amenities. While the list price is above the average for the area, the size of the property, its condition, and the desirable location justify the higher price point.
Therefore, we give this property 8 / 10. *Disclaimer: This is our option and does constitute a recommendation or financial advice. Do your own research. *
- Price
- 8
- Condition
- 10
- Location
- 9
- Land
- 8
- Bedrooms
- 4
- Bathrooms
- 2
- Sqft (est)
- 1,462.00
- Lot (est)
- 1,658.00
The heatmap indicates the level of crime in the area. The color of the heatmap indicates the crime severity and recency.
Metrics Year-on-Year
- Average area value
- 684,091.00 £Decreased by 0.97 %
- Est sale value
- 1,197,378.00 £Decreased by 1.68 %
- Average area rental value
- 2,456.00 £/moIncreased by 5.54 %
- Est letting value
- 2,924.00 £/moUnchanged by 0.00 %
- Est rental Yield
- 4.31 %Increased by 6.68 %
- Crime Rate
- 2.00 %Unchanged by 0.00 %
Agent Activity
Knight Frank marked this listing as sold.
Knight Frank created the listing.
Nearby Schools
| Name | Type | Ofsted | Distance |
|---|---|---|---|
| Burntwood School | Academy Converter | Good | 0.22 KM |
| The Chelsea Group Of Children | Other Independent Special School | Outstanding | 0.52 KM |
| Beatrix Potter Primary School | Community School | Good | 0.52 KM |
| Earlsfield Primary School | Community School | Outstanding | 0.61 KM |
| Garratt Park School | Community Special School | Good | 0.65 KM |
Images
Nearby Streets
| Name | Average Price | Average Sqft | Distance |
|---|---|---|---|
| Squarey Street | £ 0 | 0 | 0.00 KM |
| Atkinson Morley Avenue | £ 0 | 0 | 0.00 KM |
| Lapidge Drive | £ 683,895 | 0 | 0.00 KM |
| Lapidge Drive | £ 0 | 0 | 0.00 KM |
| Bramble Mews | £ 151,250 | 0 | 0.00 KM |
Nearby Transport
| Name | NLC | TLC | Distance |
|---|---|---|---|
| Earlsfield | 5584 | EAD | 0.81 KM |
| Haydons Road | 5289 | HYR | 1.80 KM |
| Wandsworth Common | 5395 | WSW | 2.07 KM |
| Wandsworth Town | 5576 | WNT | 2.52 KM |
| Clapham Junction | 5595 | CLJ | 2.98 KM |
Nearby Listings
| Address | Price | Type | Score | Distance |
|---|---|---|---|---|
| Dawnay Road, London, SW18 | £ 1,400,000 | BUY | 8 / 10 | 0.00 KM |
| Dawnay Road, SW18 | £ 1,099,999 | BUY | 7 / 10 | 0.03 KM |
| Dawnay Road, Earlsfield | £ 995,000 | BUY | 6 / 10 | 0.06 KM |
| Lidiard Road, Earlsfield, London, SW18 | £ 1,195,000 | BUY | Unknown | 0.08 KM |
| Swaby Road, Earlsfield, London, SW18 | £ 795,000 | BUY | 8 / 10 | 0.13 KM |
Nearby Properties
| Address | Price | Distance |
|---|---|---|
| 29 Dawnay Road | £ 877,750 | 0.02 KM |
| 13 Dawnay Road | £ 838,000 | 0.02 KM |
| 23 Dawnay Road | £ 1,075,000 | 0.02 KM |
| 11 Dawnay Road | £ 990,000 | 0.02 KM |
| 17 Dawnay Road | £ 610,000 | 0.02 KM |