Molyneux says ..
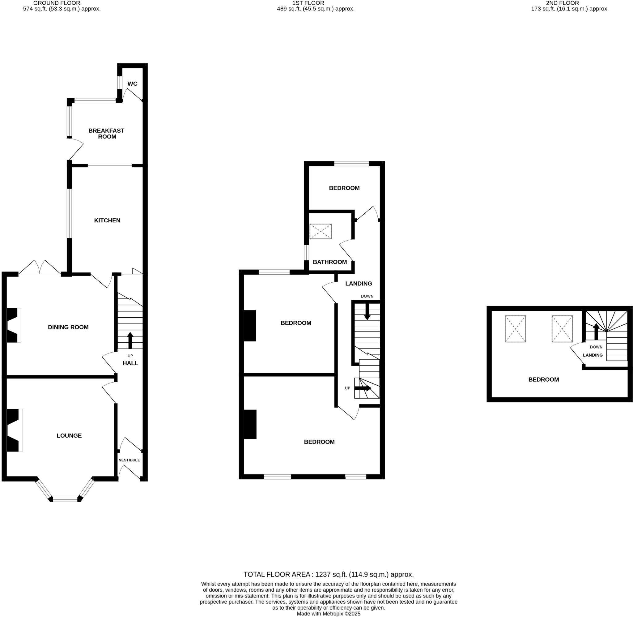
Situated in a much sought after location is this spacious 4 bedroom traditional semi detached character property with well presented accommodation to briefly comprise entrance vestibule, entrance hall, lounge, dining area, fitted kitchen with integrated appliances, breakfast area, cloakroom, and ...
Property Oracle says ..
The property is a four-bedroom house situated in Rhosddu, Wrexham. The location benefits from proximity to Rhosddu Primary School (0.32km), and nearby train stations. The average house price on nearby streets varies significantly, ranging from £132,500 to £180,000. From the images, the property appears to be in good condition with recent updates to the kitchen and bathrooms. The property includes a rear garden. Determining the reasonableness of the £250,000 list price is challenging without the property’s square footage.
Therefore, we give this property 7 / 10. *Disclaimer: This is our option and does constitute a recommendation or financial advice. Do your own research. *
- Price
- 6
- Condition
- 8
- Location
- 7
- Land
- 7
- Bedrooms
- 4
- Bathrooms
- 0
The heatmap indicates the level of crime in the area. The color of the heatmap indicates the crime severity and recency.
Metrics Year-on-Year
- Average area value
- 502,500.00 £Increased by 40.73 %
- Average area rental value
- 961.00 £/moDecreased by 1.13 %
- Est rental Yield
- 2.29 %Decreased by 29.97 %
- Crime Rate
- 3.00 %Unchanged by 0.00 %
Agent Activity
Molyneux created the listing.
Nearby Schools
| Name | Type | Ofsted | Distance |
|---|---|---|---|
| Rhosddu Primary School | Welsh Establishment | 0.32 KM | |
| Alexandra C.P. School | Welsh Establishment | 0.96 KM | |
| Woodlands Children'S Development Centre | Welsh Establishment | 1.03 KM | |
| St Mary'S R.C. Primary School | Welsh Establishment | 1.05 KM | |
| Wat'S Dyke C.P. School | Welsh Establishment | 1.09 KM |
Images
Nearby Streets
| Name | Average Price | Average Sqft | Distance |
|---|---|---|---|
| Price's Lane | £ 132,500 | 0 | 0.00 KM |
| Albany Terrace | £ 0 | 0 | 0.00 KM |
| Lord Street | £ 0 | 0 | 0.00 KM |
| Grange Avenue | £ 180,000 | 0 | 0.00 KM |
| Hazel Grove | £ 145,000 | 0 | 0.00 KM |
Nearby Transport
| Name | NLC | TLC | Distance |
|---|---|---|---|
| Wrexham General | 4487 | WRX | 0.84 KM |
| Wrexham Central | 4486 | WXC | 0.88 KM |
| Gwersyllt | 4300 | GWE | 3.28 KM |
| Cefn-Y-Bedd | 2425 | CYB | 6.41 KM |
| Caergwrle | 2536 | CGW | 7.35 KM |
Nearby Listings
| Address | Price | Type | Score | Distance |
|---|---|---|---|---|
| Spring Road, Rhosddu | £ 250,000 | BUY | 7 / 10 | 0.00 KM |
| Spring Road, Wrexham | £ 170,000 | BUY | Unknown | 0.04 KM |
| Cunliffe Street, Rhosddu, Wrexham | £ 130,000 | BUY | 5 / 10 | 0.06 KM |
| Cunliffe Street, Wrexham | £ 145,000 | BUY | 7 / 10 | 0.06 KM |
| Cunliffe Street, Wrexham | £ 140,000 | BUY | 5 / 10 | 0.07 KM |
Nearby Properties
| Address | Price | Distance |
|---|---|---|
| 52 Spring Road | £ 120,000 | 0.00 KM |
| 44 Spring Road | £ 200,000 | 0.00 KM |
| 58 Spring Road | £ 115,000 | 0.00 KM |
| 11 Spring Road | £ 249,950 | 0.00 KM |
| 30 Spring Road | £ 132,500 | 0.00 KM |