Walsingham Road, Clapton, London, E5
By Keatons
£ 1,125,000
Reviews
3 out of 5 stars
Keatons says ..
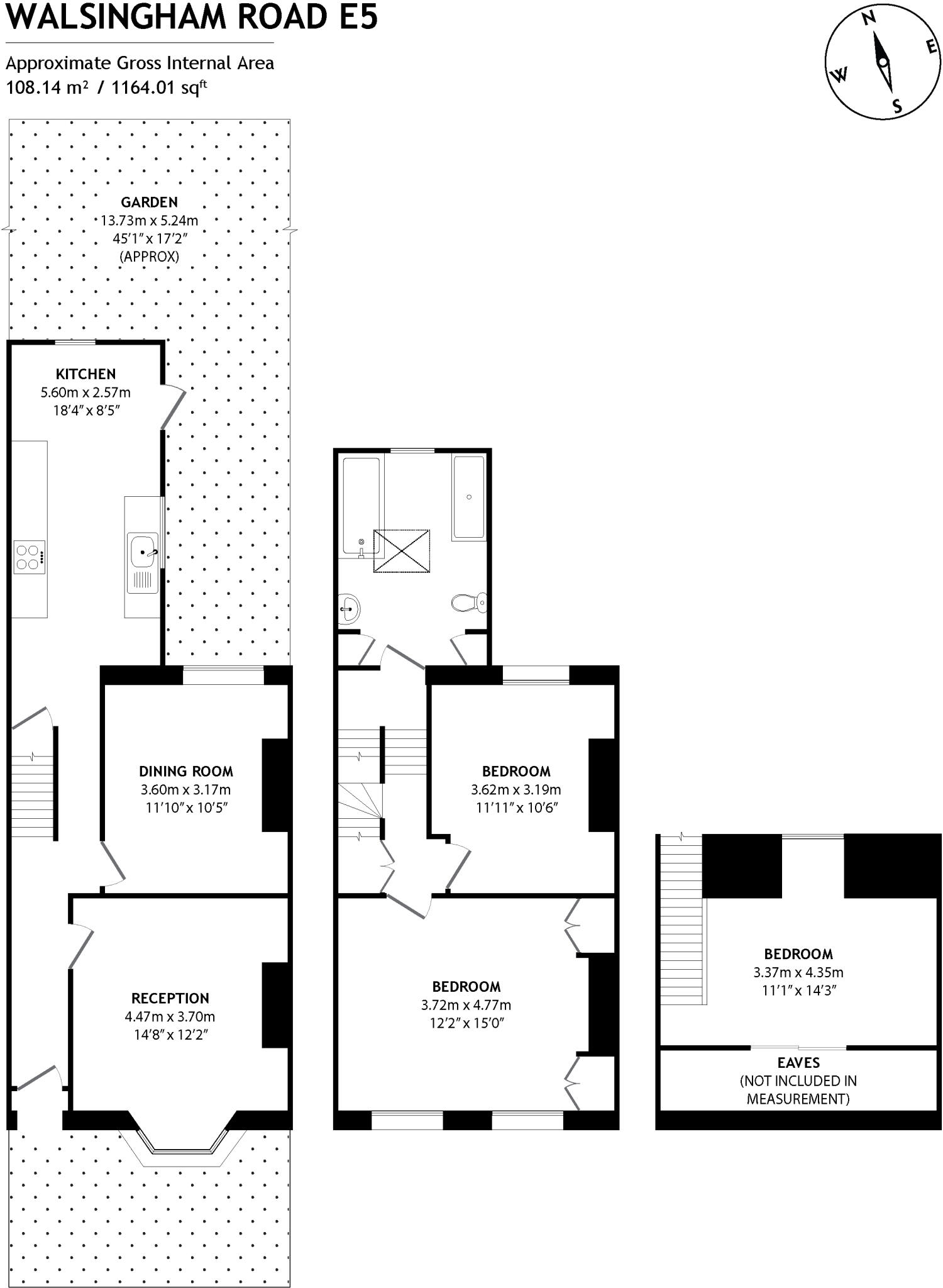
Enviably appointed in this peaceful residential street is this charming three-bedroom Victorian home, sensitively renovated throughout. Offering the perfect blend of Victorian features and striking modern designs with accommodation spaciously arranged over three floors. Bathed in natural light wi...
Property Oracle says ..
Therefore, we give this property 7 / 10. *Disclaimer: This is our option and does constitute a recommendation or financial advice. Do your own research. *
- Price
- 6
- Condition
- 7
- Location
- 8
- Land
- 7
- Bedrooms
- 4
- Bathrooms
- 1
- Sqft (est)
- 1,164.01
- Lot (est)
- 772.72
The heatmap indicates the level of crime in the area. The color of the heatmap indicates the crime severity and recency.
Metrics Year-on-Year
- Average area value
- 309,833.00 £Decreased by 53.44 %
- Est sale value
- 749,622.44 £Decreased by 7.87 %
- Average area rental value
- 2,396.00 £/moIncreased by 9.71 %
- Est letting value
- 4,656.04 £/moIncreased by 100.00 %
- Est rental Yield
- 9.28 %Increased by 135.53 %
- Crime Rate
- 5.00 %Unchanged by 0.00 %
from 665,458.00 £
from 813,642.99 £
from 2,184.00 £/mo
from 2,328.02 £/mo
from 3.94 %
from 5.00 %
Agent Activity
Keatons created the listing.
Nearby Schools
| Name | Type | Ofsted | Distance |
|---|---|---|---|
| St Scholastica'S Catholic Primary School | Voluntary Aided School | Good | 0.18 KM |
| Al-Falah Primary School | Other Independent School | Good | 0.28 KM |
| Nightingale Primary School | Community School | Good | 0.40 KM |
| Baden-Powell School | Community School | Good | 0.42 KM |
| The Brooke House Sixth Form College | Further Education | Good | 0.47 KM |
Images
Nearby Streets
| Name | Average Price | Average Sqft | Distance |
|---|---|---|---|
| Baron's Walk | £ 299,950 | 0 | 0.00 KM |
| Clapton Way | £ 0 | 0 | 0.00 KM |
| Comberton Road | £ 0 | 0 | 0.00 KM |
| Halberd Mews | £ 0 | 0 | 0.00 KM |
| Tilia Road | £ 425,000 | 0 | 0.00 KM |
Nearby Transport
| Name | NLC | TLC | Distance |
|---|---|---|---|
| Clapton | 6926 | CPT | 0.51 KM |
| Rectory Road | 6967 | REC | 0.81 KM |
| Hackney Downs | 6867 | HAC | 1.18 KM |
| Hackney Central | 6977 | HKC | 1.47 KM |
| Stoke Newington | 6934 | SKW | 1.47 KM |
Nearby Listings
| Address | Price | Type | Score | Distance |
|---|---|---|---|---|
| Walsingham Road, Clapton, London, E5 | £ 1,125,000 | BUY | 7 / 10 | 0.00 KM |
| Brooke Road, London, E5 | £ 599,950 | BUY | 6 / 10 | 0.06 KM |
| Brooke Road, Hackney, London, E5 | £ 2,350,000 | BUY | 6 / 10 | 0.06 KM |
| Brooke Road, Clapton, E5 | £ 650,000 | BUY | 5 / 10 | 0.08 KM |
| Brooke Road, London, E5 | £ 1,500,000 | BUY | 7 / 10 | 0.09 KM |
Nearby Properties
| Address | Price | Distance |
|---|---|---|
| 47 Walsingham Road | £ 400,000 | 0.02 KM |
| 45 Walsingham Road | £ 520,000 | 0.02 KM |
| 51 Walsingham Road | £ 1,390,000 | 0.02 KM |
| 35 Walsingham Road | £ 455,000 | 0.02 KM |
| 53 Walsingham Road | £ 1,195,000 | 0.02 KM |