Moorland View, Meltham, Holmfirth, HD9
By Belong, by James White
£ 300,000
Reviews
3 out of 5 stars
Belong, by James White says ..
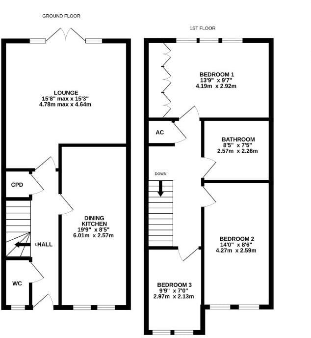
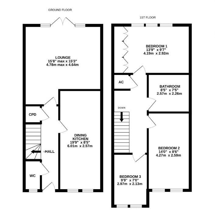
If you’re in the market for a “turn-key” three bedroom home of quality, then this beautifully appointed stone mews might just be where you belong.
Property Oracle says ..
This property is a modern three-bedroom mews house located in Meltham, Holmfirth. The location benefits from being within proximity to local schools and transport links. The property itself is in excellent condition, having been recently renovated to a high standard. It features a modern kitchen and bathroom, and a well-maintained garden. While the plot size is small, the property offers good value for money considering its condition, location, and modern amenities. The average price per sqft in the area is £825, and this property is listed at £300,000 with 1343.77 sqft which is approximately £223 per sqft. This is significantly below the average price per sqft for the area, suggesting it is reasonably priced.
Therefore, we give this property 7 / 10. *Disclaimer: This is our option and does constitute a recommendation or financial advice. Do your own research. *
- Price
- 9
- Condition
- 10
- Location
- 8
- Land
- 3
- Bedrooms
- 3
- Bathrooms
- 1
- Sqft (est)
- 1,343.77
The heatmap indicates the level of crime in the area. The color of the heatmap indicates the crime severity and recency.
Metrics Year-on-Year
- Average area value
- 398,889.00 £Increased by 13.84 %
- Est sale value
- 193,502.88 £Decreased by 46.86 %
- Average area rental value
- 2,250.00 £/moIncreased by 153.09 %
- Est letting value
- 0.00 £/mo
- Est rental Yield
- 6.77 %Increased by 122.70 %
- Crime Rate
- 9.00 %Unchanged by 0.00 %
Agent Activity
Belong, by James White created the listing.
Nearby Schools
| Name | Type | Ofsted | Distance |
|---|---|---|---|
| Holme Valley North Children'S Centre | Children's Centre Linked Site | 0.34 KM | |
| Meltham Moor Primary School | Academy Converter | 0.41 KM | |
| Helme Church Of England Academy | Academy Sponsor Led | 1.72 KM | |
| Meltham Cofe (Vc) Primary School | Voluntary Controlled School | Good | 1.76 KM |
| Linthwaite Clough J I & Early Years Unit | Community School | Good | 3.43 KM |
Images
Nearby Streets
| Name | Average Price | Average Sqft | Distance |
|---|---|---|---|
| Peak View | £ 500,000 | 0 | 0.00 KM |
| Copley Avenue | £ 0 | 0 | 0.00 KM |
| Berry Road | £ 215,000 | 0 | 0.00 KM |
| Moorhead Close | £ 175,000 | 0 | 0.00 KM |
| Hassocks Road | £ 0 | 0 | 0.00 KM |
Nearby Transport
| Name | NLC | TLC | Distance |
|---|---|---|---|
| Slaithwaite | 8450 | SWT | 4.11 KM |
| Marsden (Yorks) | 8445 | MSN | 7.73 KM |
| Berry Brow | 8431 | BBW | 8.17 KM |
| Lockwood | 8443 | LCK | 8.19 KM |
| Honley | 8436 | HOY | 9.09 KM |
Nearby Listings
| Address | Price | Type | Score | Distance |
|---|---|---|---|---|
| 1 Moorland View, HD9 5QJ | £ 61,250 | BUY | 7 / 10 | 0.00 KM |
| Moorland View, Meltham, Holmfirth, HD9 | £ 300,000 | BUY | 7 / 10 | 0.00 KM |
| Mill Moor Road, Meltham, Holmfirth | £ 265,000 | BUY | 6 / 10 | 0.08 KM |
| Mill Moor Road, Meltham, Holmfirth | £ 799,995 | BUY | 6 / 10 | 0.08 KM |
| Mill Moor Road, Meltham, Holmfirth, HD9 | £ 225,000 | BUY | 7 / 10 | 0.08 KM |
Nearby Properties
| Address | Price | Distance |
|---|---|---|
| 103a Mill Moor Road | £ 152,500 | 0.07 KM |
| 80 Mill Moor Road | £ 132,000 | 0.07 KM |
| 93a Mill Moor Road | £ 130,000 | 0.07 KM |
| 104 Mill Moor Road | £ 205,000 | 0.07 KM |
| 78c Mill Moor Road | £ 102,000 | 0.07 KM |