Chelmsford Mews, Wigan, WN1 2PZ
By Morgan H Lewis
£ 129,950
Reviews
3 out of 5 stars
Morgan H Lewis says ..
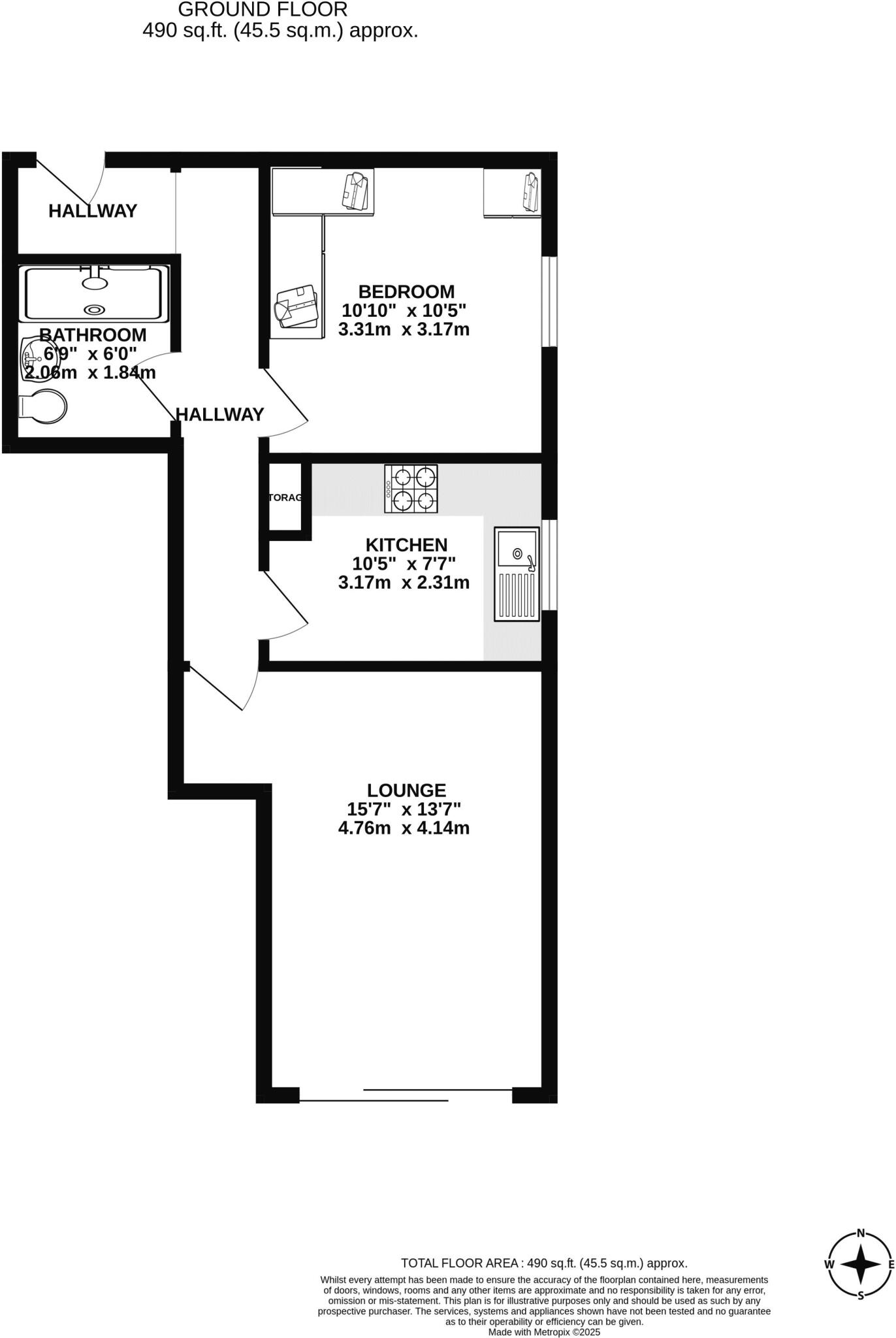
Welcomed to the market is this spacious one bed top floor apartment, which simply must be viewed to be appreciated. Offering an on-site garage, which is a rare find for a property of this type, but a most welcome bonus.This property presents itself as a fine prospect, available with the benefit o...
Property Oracle says ..
This one bedroom flat is located in Wigan, Greater Manchester. The property is well presented and appears to be in good condition based on the photos provided. The flat is part of a development called Chelmsford Mews and benefits from allocated parking. While the property itself is in good condition, the plot size is relatively small, and there is no private garden. The list price of £129,950 is significantly below the average price for the area (£229,969), however this is likely due to the smaller size of the property (134.80 sqft) compared to the average (1288 sqft). The average price per sqft in the area is £178, while this property is listed at a much lower price per sqft. The location is convenient, with nearby transportation links and schools. However, more information on the specifics of the development and any associated fees would be beneficial in a full assessment.
Therefore, we give this property 6 / 10. *Disclaimer: This is our option and does constitute a recommendation or financial advice. Do your own research. *
- Price
- 9
- Condition
- 8
- Location
- 7
- Land
- 3
- Bedrooms
- 1
- Bathrooms
- 1
- Sqft (est)
- 134.80
- Lot (est)
- 490.00
The heatmap indicates the level of crime in the area. The color of the heatmap indicates the crime severity and recency.
Metrics Year-on-Year
- Average area value
- 207,843.00 £Decreased by 20.29 %
- Est sale value
- 46,640.80 £Increased by 55.86 %
- Average area rental value
- 491.00 £/moDecreased by 29.56 %
- Est letting value
- 0.00 £/mo
- Est rental Yield
- 2.83 %Decreased by 11.84 %
- Crime Rate
- 0.00 %
Agent Activity
Morgan H Lewis created the listing.
Nearby Schools
| Name | Type | Ofsted | Distance |
|---|---|---|---|
| Progress Schools Wigan | Other Independent School | Good | 0.79 KM |
| Woodfield Primary School | Community School | Outstanding | 0.94 KM |
| The Deanery Church Of England High School And Sixth Form College | Voluntary Aided School | Good | 1.01 KM |
| Wigan And Leigh College | Further Education | Good | 1.05 KM |
| Mab'S Cross Primary School | Community School | Good | 1.09 KM |
Images
Nearby Streets
| Name | Average Price | Average Sqft | Distance |
|---|---|---|---|
| Silverdale | £ 0 | 0 | 0.00 KM |
| Barton Avenue | £ 0 | 0 | 0.00 KM |
| Wordsworth Avenue | £ 0 | 0 | 0.00 KM |
| Tennyson Drive | £ 26,995 | 0 | 0.00 KM |
| Park Road | £ 299,999 | 0 | 0.00 KM |
Nearby Transport
| Name | NLC | TLC | Distance |
|---|---|---|---|
| Wigan Wallgate | 2406 | WGW | 1.32 KM |
| Wigan North Western | 2363 | WGN | 1.44 KM |
| Ince (Manchester) | 2236 | INC | 3.30 KM |
| Pemberton | 2403 | PEM | 4.81 KM |
| Bryn | 2222 | BYN | 6.42 KM |
Nearby Listings
| Address | Price | Type | Score | Distance |
|---|---|---|---|---|
| Chelmsford Mews, Swinley, Wigan, WN1 2PZ | £ 150,000 | BUY | 7 / 10 | 0.00 KM |
| Chelmsford Mews, Wigan, WN1 2PZ | £ 129,950 | BUY | 6 / 10 | 0.00 KM |
| Alfred Street, Wigan, WN1 2HL | £ 150,000 | BUY | 7 / 10 | 0.09 KM |
| Alfred Street, Wigan | £ 150,000 | BUY | 6 / 10 | 0.09 KM |
| Alfred Street, Wigan, WN1 2HL | £ 139,950 | BUY | 6 / 10 | 0.09 KM |
Nearby Properties
| Address | Price | Distance |
|---|---|---|
| 18 Chelmsford Mews | £ 94,500 | 0.01 KM |
| 22 Chelmsford Mews | £ 107,000 | 0.01 KM |
| 33 Chelmsford Mews | £ 118,000 | 0.01 KM |
| 19 Chelmsford Mews | £ 105,000 | 0.01 KM |
| 6 Chelmsford Mews | £ 83,000 | 0.01 KM |