James.Dean says ..
Located on a premier residential street, on the favoured western-side of town, this four bedroom detached house enjoys off road parking, garage and level garden. Sold with no chain and requiring modernisation now, it would be perfect for families or couples looking to move into town.
Property Oracle says ..
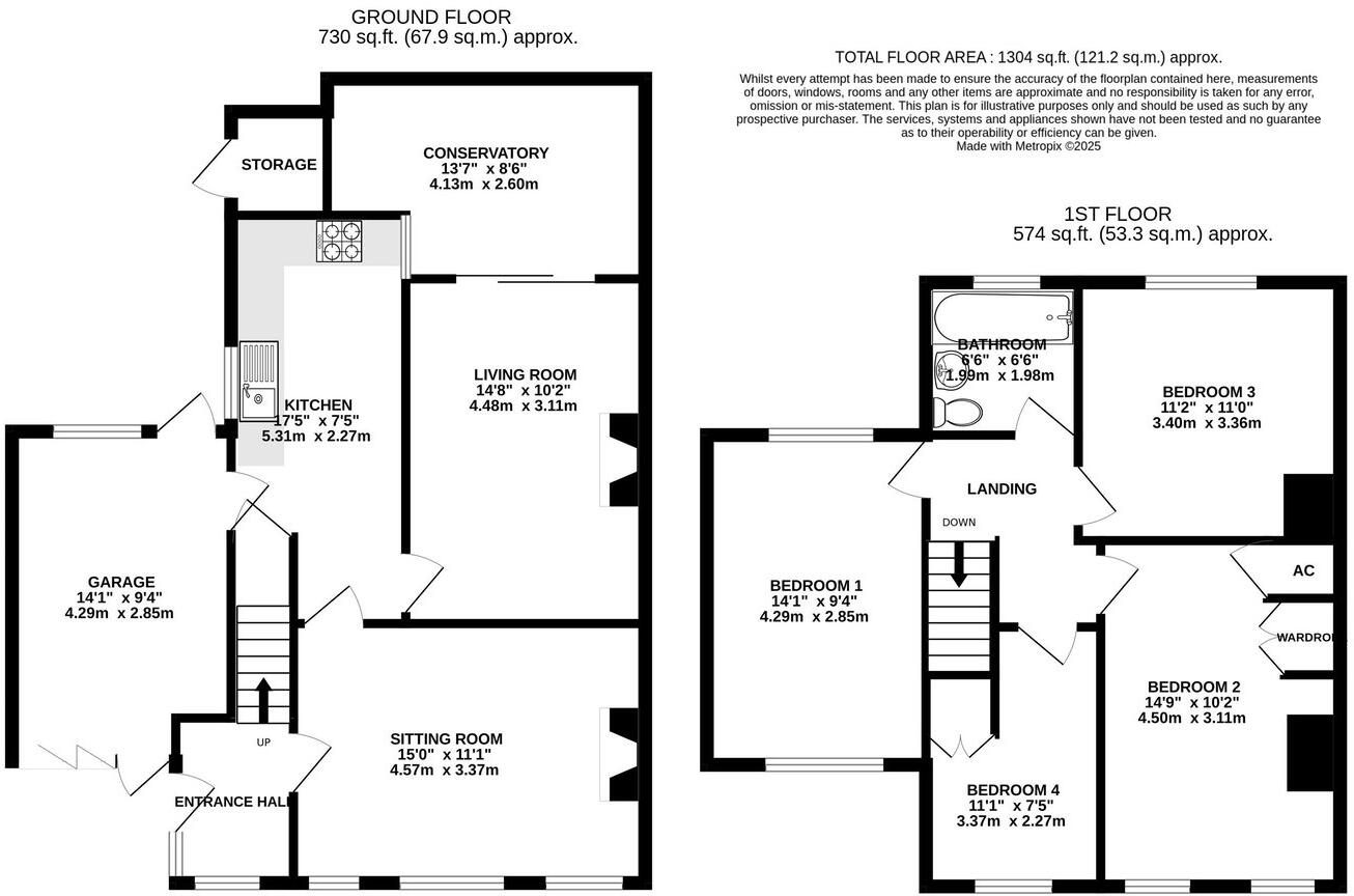
This four-bedroom property in Abergavenny offers a blend of positives and areas needing attention. Its location on North Street is advantageous, with proximity to a primary school and Abergavenny’s train station increasing its appeal. The photos reveal a brick-built house that appears structurally sound but requires modernisation. The decor appears outdated, suggesting significant cosmetic improvements would enhance the property’s value. The kitchen and bathroom also seem functional but would likely benefit from updates. The inclusion of a garden is a positive, though its exact size remains unclear. The property’s list price of £550,000 is comparable to similar properties in the area, though more detailed property size information, along with the specific condition of the property, would be essential for a more accurate valuation. Overall, the property presents an opportunity, but potential buyers should factor in renovation costs. The current images suggest a refurbishment project is needed to bring this property up to modern standards. A survey before purchase would be prudent to assess structural soundness and hidden issues.
Therefore, we give this property 6 / 10. *Disclaimer: This is our option and does constitute a recommendation or financial advice. Do your own research. *
- Price
- 7
- Condition
- 6
- Location
- 7
- Land
- 4
- Bedrooms
- 4
- Bathrooms
- 1
- Sqft (est)
- 1,304.00
The heatmap indicates the level of crime in the area. The color of the heatmap indicates the crime severity and recency.
Metrics Year-on-Year
- Average area value
- 287,293.00 £Decreased by 0.23 %
- Est sale value
- 645,480.00 £Increased by 93.36 %
- Average area rental value
- 1,083.00 £/moIncreased by 11.42 %
- Est letting value
- 1,304.00 £/mo
- Est rental Yield
- 4.52 %Increased by 11.60 %
- Crime Rate
- 3.00 %Unchanged by 0.00 %
Agent Activity
James.Dean created the listing.
Nearby Schools
| Name | Type | Ofsted | Distance |
|---|---|---|---|
| Cantref Primary | Welsh Establishment | 0.42 KM | |
| Our Lady & St Michael'S School | Welsh Establishment | 1.01 KM | |
| Ysgol Gymraeg Y Fenni | Welsh Establishment | 1.13 KM | |
| King Henry Viii Comprehensive School | Welsh Establishment | 1.44 KM | |
| Deri View Primary | Welsh Establishment | 1.86 KM |
Images
Nearby Streets
| Name | Average Price | Average Sqft | Distance |
|---|---|---|---|
| Chapel Orchard | £ 0 | 0 | 0.00 KM |
| Pen-y-pound Court | £ 0 | 0 | 0.00 KM |
| Saint Helen's Close | £ 0 | 0 | 0.00 KM |
| St Michael's Road | £ 0 | 0 | 0.00 KM |
| Hillside | £ 550,000 | 0 | 0.00 KM |
Nearby Transport
| Name | NLC | TLC | Distance |
|---|---|---|---|
| Abergavenny | 3602 | AGV | 2.64 KM |
Nearby Listings
| Address | Price | Type | Score | Distance |
|---|---|---|---|---|
| North Street, Abergavenny, NP7 | £ 550,000 | BUY | 6 / 10 | 0.00 KM |
| North Street, Abergavenny, NP7 | £ 450,000 | BUY | 7 / 10 | 0.04 KM |
| North Street, Abergavenny, NP7 | £ 229,000 | BUY | 7 / 10 | 0.05 KM |
| North Street, Abergavenny | £ 210,000 | BUY | 5 / 10 | 0.07 KM |
| North Street, Abergavenny | £ 260,000 | BUY | 5 / 10 | 0.13 KM |
Nearby Properties
| Address | Price | Distance |
|---|---|---|
| 111 North Street | £ 148,000 | 0.06 KM |
| 37 North Street | £ 159,000 | 0.06 KM |
| 57 North Street | £ 184,950 | 0.06 KM |
| 119 North Street | £ 187,500 | 0.06 KM |
| 63 North Street | £ 389,450 | 0.06 KM |