Shetland Close, Ipswich, IP4
By Joseph Property Agency
£ 260,000
Reviews
3 out of 5 stars
Joseph Property Agency says ..
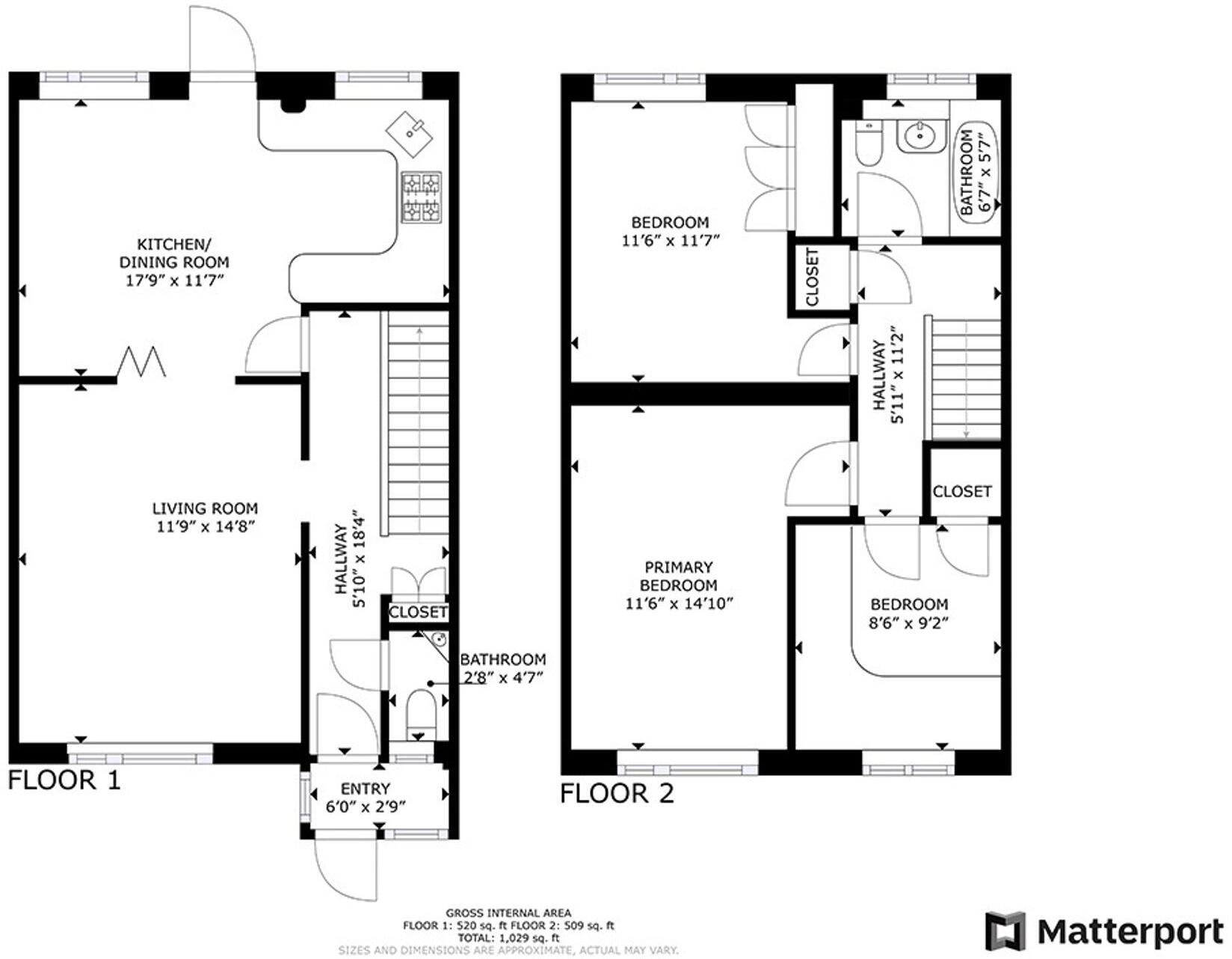
Nestled in a sought-after East Ipswich location, this charming three bedroom mid-terraced house offers a perfect blend of style, comfort, and convenience. Situated in a quiet cul-de-sac, this property boasts a tranquil setting that ensures privacy and peace.
Property Oracle says ..
This three-bedroom mid-terraced house in Shetland Close, Rushmere, Ipswich, presents a viable option for families or those seeking a home in a well-connected suburban location. The property boasts a recently updated kitchen and has a layout that offers a good amount of living space. The garden, although modest in size, is a welcome addition, offering outdoor space. The proximity to highly-rated schools and transport links further strengthens its appeal. While the bathroom appears to require some modernisation, the overall condition seems to be acceptable. The pricing appears to be in line with comparables in the area, suggesting a fair market value, provided the plot size was more substantial. The lack of specific plot-size information prevents a precise assessment of value per square foot, which would significantly improve the analysis. Further investigation into the specifics of the property, beyond the available photographic evidence, would be beneficial before any definitive assessment of value could be reached.
Therefore, we give this property 6 / 10. *Disclaimer: This is our option and does constitute a recommendation or financial advice. Do your own research. *
- Price
- 7
- Condition
- 6
- Location
- 7
- Land
- 4
- Bedrooms
- 3
- Bathrooms
- 1
- Sqft (est)
- 1,029.00
The heatmap indicates the level of crime in the area. The color of the heatmap indicates the crime severity and recency.
Metrics Year-on-Year
- Average area value
- 200,000.00 £Decreased by 41.39 %
- Est sale value
- 193,452.00 £Decreased by 41.98 %
- Average area rental value
- 1,350.00 £/moIncreased by 41.66 %
- Est letting value
- 1,029.00 £/mo
- Est rental Yield
- 8.10 %Increased by 141.79 %
- Crime Rate
- 6.00 %Unchanged by 0.00 %
Agent Activity
Joseph Property Agency created the listing.
Nearby Schools
| Name | Type | Ofsted | Distance |
|---|---|---|---|
| Rushmere Hall Primary School | Academy Converter | 0.50 KM | |
| Sidegate Primary School | Academy Sponsor Led | Good | 0.57 KM |
| Wooden House Children'S Centre | Children's Centre | 0.58 KM | |
| Northgate High School | Community School | Good | 0.60 KM |
| St John'S Church Of England Voluntary Aided Primary School, Ipswich | Voluntary Aided School | Good | 0.62 KM |
Images
Nearby Streets
| Name | Average Price | Average Sqft | Distance |
|---|---|---|---|
| Orkney Road | £ 0 | 0 | 0.00 KM |
| Victory Road | £ 280,000 | 0 | 0.00 KM |
| Inverness Road | £ 225,000 | 0 | 0.00 KM |
| Kirby Close | £ 340,000 | 0 | 0.00 KM |
| The Drift | £ 300,000 | 0 | 0.00 KM |
Nearby Transport
| Name | NLC | TLC | Distance |
|---|---|---|---|
| Derby Road (Ipswich) | 7212 | DBR | 2.02 KM |
| Westerfield | 7226 | WFI | 2.52 KM |
| Ipswich | 7217 | IPS | 4.91 KM |
Nearby Listings
| Address | Price | Type | Score | Distance |
|---|---|---|---|---|
| Shetland Close, Ipswich, IP4 | £ 260,000 | BUY | 6 / 10 | 0.00 KM |
| Shetland Close, Ipswich | £ 140,000 | BUY | Unknown | 0.06 KM |
| Shetland Close, Ipswich | £ 275,000 | BUY | 6 / 10 | 0.06 KM |
| Shetland Close, Ipswich, Suffolk, IP4 | £ 15,000 | BUY | 8 / 10 | 0.17 KM |
| Sidegate Avenue, Ipswich, Suffolk, IP4 | £ 450,000 | BUY | Unknown | 0.19 KM |
Nearby Properties
| Address | Price | Distance |
|---|---|---|
| 81 Shetland Close | £ 120,000 | 0.06 KM |
| 95 Shetland Close | £ 122,000 | 0.06 KM |
| 113 Shetland Close | £ 190,000 | 0.06 KM |
| 111 Shetland Close | £ 158,000 | 0.06 KM |
| 125 Shetland Close | £ 280,000 | 0.06 KM |