JO
Lambarde Drive, Sevenoaks, TN13
By John Kingston Estate Agents
£ 760,000
John Kingston Estate Agents says ..
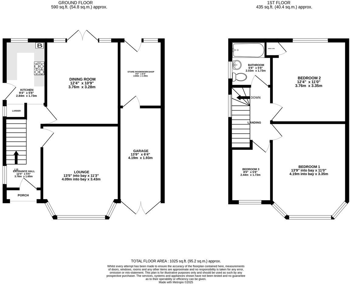
A 1930's built 3 bed detached character house, in need of modernisation, located in a superb position with off road parking and a generous flat garden. This attractive property enjoys tremendous scope for enlargement and is an opportunity not to be missed. This pleasing to look at house is loc...
- Bedrooms
- 3
- Bathrooms
- 1
The heatmap indicates the level of crime in the area. The color of the heatmap indicates the crime severity and recency.
Metrics Year-on-Year
- Average area value
- 1,145,000.00 £Increased by 51.85 %
- Average area rental value
- 1,717.00 £/moDecreased by 6.07 %
- Est rental Yield
- 1.80 %Decreased by 38.14 %
- Crime Rate
- 4.00 %Unchanged by 0.00 %
from 754,053.00 £
from 1,828.00 £/mo
from 2.91 %
from 4.00 %
Agent Activity
John Kingston Estate Agents created the listing.
Nearby Schools
| Name | Type | Ofsted | Distance |
|---|---|---|---|
| The Granville School | Other Independent School | 0.32 KM | |
| Knole Academy | Academy Sponsor Led | Good | 0.61 KM |
| Sevenoaks Primary School | Community School | Good | 0.77 KM |
| Riverhead Infants' School | Community School | Outstanding | 1.46 KM |
| St Thomas' Catholic Primary School, Sevenoaks | Academy Converter | 1.49 KM |
Images
Nearby Streets
| Name | Average Price | Average Sqft | Distance |
|---|---|---|---|
| Clock House Lane | £ 0 | 0 | 0.00 KM |
| Charterhouse Drive | £ 0 | 0 | 0.00 KM |
| Blair Drive | £ 1,495,000 | 0 | 0.00 KM |
| Ashley Close | £ 0 | 0 | 0.00 KM |
| Redlands Road | £ 0 | 0 | 0.00 KM |
Nearby Transport
| Name | NLC | TLC | Distance |
|---|---|---|---|
| Sevenoaks | 5124 | SEV | 0.59 KM |
| Bat And Ball | 5090 | BBL | 1.65 KM |
| Dunton Green | 5102 | DNG | 1.97 KM |
| Otford | 5071 | OTF | 3.85 KM |
| Shoreham (Kent) | 5074 | SEH | 5.63 KM |
Nearby Listings
| Address | Price | Type | Score | Distance |
|---|---|---|---|---|
| Lambarde Drive, Sevenoaks, TN13 | £ 760,000 | BUY | Unknown | 0.00 KM |
| Lambarde Road, Sevenoaks, Kent | £ 1,000,000 | BUY | Unknown | 0.10 KM |
| Lambarde Road, Sevenoaks, TN13 | £ 695,000 | BUY | Unknown | 0.13 KM |
| Bosville Drive, Sevenoaks, TN13 | £ 975,000 | BUY | 8 / 10 | 0.15 KM |
| Lambarde Road, Sevenoaks | £ 1,300,000 | BUY | 8 / 10 | 0.16 KM |
Nearby Properties
| Address | Price | Distance |
|---|---|---|
| 18 Lambarde Drive | £ 565,000 | 0.01 KM |
| 39 Lambarde Drive | £ 667,000 | 0.01 KM |
| 6 Lambarde Drive | £ 695,000 | 0.01 KM |
| 33 Lambarde Drive | £ 740,000 | 0.01 KM |
| 4 Lambarde Drive | £ 285,000 | 0.01 KM |