Allday & Miller says ..
Nestled in the heart of South Hayes this three bedroom semi-detached home with ample potential to extend further.
Property Oracle says ..
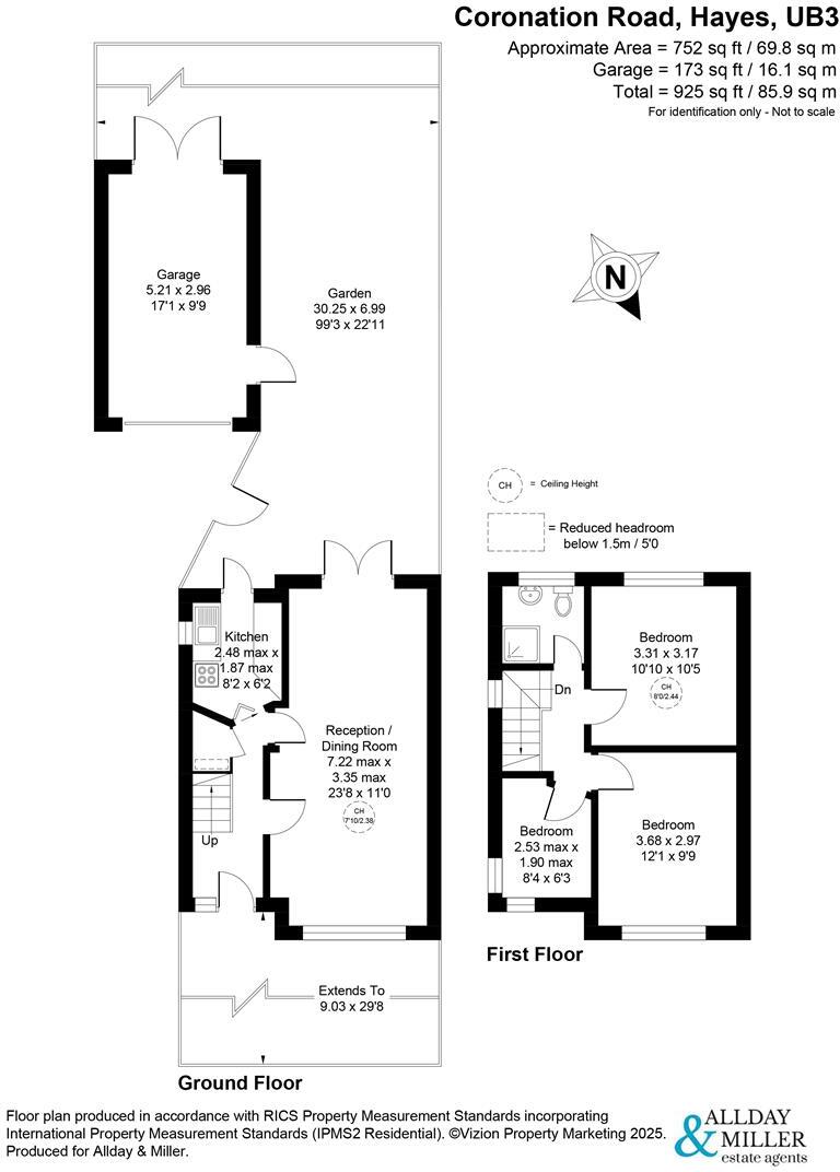
This property is a 3-bedroom semi-detached house located on Coronation Road in Hayes, Hillingdon. The list price is £530,000, and the property has a total area of 2,739 sqft and a plot size of 752 sqft. The average house price in the area is £369,789 with an average price per sqft of £360. The property is conveniently located near Hayes & Harlington station (0.83km) providing easy access to public transport. There are also several schools in the vicinity, including Cranford Park Academy (rated Good by Ofsted), which is just 0.20km away. The property benefits from a garden and a shed. However, the property appears to be in need of some renovation and modernisation, as evidenced by the images. The condition of the property and the need for renovation should be considered when evaluating the list price.
Therefore, we give this property 5 / 10. *Disclaimer: This is our option and does constitute a recommendation or financial advice. Do your own research. *
- Price
- 6
- Condition
- 4
- Location
- 7
- Land
- 5
- Bedrooms
- 3
- Bathrooms
- 1
- Sqft (est)
- 2,739.00
- Lot (est)
- 752.00
The heatmap indicates the level of crime in the area. The color of the heatmap indicates the crime severity and recency.
Metrics Year-on-Year
- Average area value
- 425,372.00 £Decreased by 13.01 %
- Est sale value
- 1,731,048.00 £Increased by 39.21 %
- Average area rental value
- 1,810.00 £/moDecreased by 7.37 %
- Est letting value
- 5,478.00 £/moIncreased by 100.00 %
- Est rental Yield
- 5.11 %Increased by 6.46 %
- Crime Rate
- 3.00 %Unchanged by 0.00 %
Agent Activity
Allday & Miller created the listing.
Nearby Schools
| Name | Type | Ofsted | Distance |
|---|---|---|---|
| Cranford Park Academy | Academy Converter | Good | 0.20 KM |
| Nestles Avenue Children'S Centre | Children's Centre | 0.73 KM | |
| Barra Hall Children'S Centre | Children's Centre | 1.07 KM | |
| Botwell House Catholic Primary School | Voluntary Aided School | Good | 1.32 KM |
| Global Academy | University Technical College | Good | 1.39 KM |
Images
Nearby Streets
| Name | Average Price | Average Sqft | Distance |
|---|---|---|---|
| St. Dunstans Close | £ 0 | 0 | 0.00 KM |
| Nestle's Avenue | £ 443,857 | 0 | 0.00 KM |
| Boswell Path | £ 0 | 0 | 0.00 KM |
| M4 | £ 0 | 0 | 0.00 KM |
| Western View | £ 0 | 0 | 0.00 KM |
Nearby Transport
| Name | NLC | TLC | Distance |
|---|---|---|---|
| Hayes And Harlington | 3186 | HAY | 0.83 KM |
| Southall | 3187 | STL | 4.49 KM |
| Heathrow Terminals 2 And 3 (Rail Station Only) | 7090 | HXX | 4.87 KM |
| Heathrow Terminal 4 | 7091 | HAF | 5.20 KM |
| Feltham | 5559 | FEL | 5.45 KM |
Nearby Listings
| Address | Price | Type | Score | Distance |
|---|---|---|---|---|
| Coronation Road, Hayes | £ 530,000 | BUY | 5 / 10 | 0.00 KM |
| Coronation Road, Hayes | £ 530,000 | BUY | 5 / 10 | 0.00 KM |
| Coronation Road, Hayes | £ 610,000 | BUY | 6 / 10 | 0.04 KM |
| Coronation Road, Hayes | £ 610,000 | BUY | 7 / 10 | 0.04 KM |
| Coronation Road, Hayes | £ 650,000 | BUY | 6 / 10 | 0.05 KM |
Nearby Properties
| Address | Price | Distance |
|---|---|---|
| 23 Coronation Road | £ 325,000 | 0.01 KM |
| 36 Coronation Road | £ 215,000 | 0.01 KM |
| 76 Coronation Road | £ 235,000 | 0.01 KM |
| 44 Coronation Road | £ 240,000 | 0.01 KM |
| 51 Coronation Road | £ 111,500 | 0.01 KM |