Julie Philpot says ..
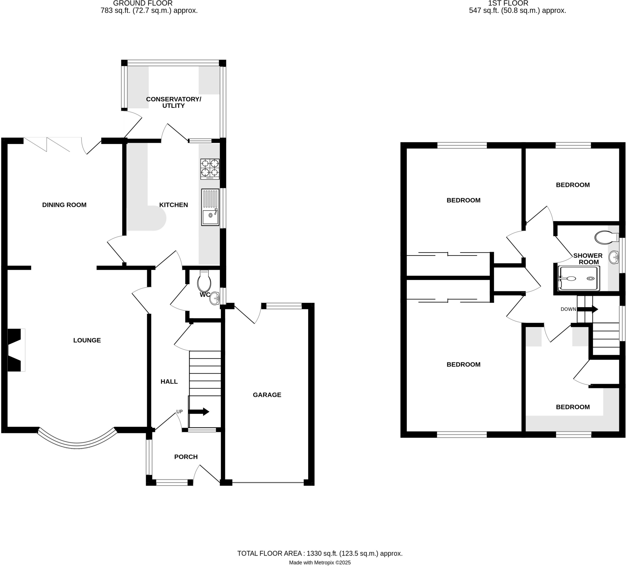
A well planned detached family home with four bedrooms having been greatly improved by the present sellers and having the added benefit of a larger than average, sunny rear garden which is ideal for families and for anyone who would like to have a kitchen/vegetable garden. The property is in a co...
Property Oracle says ..
Therefore, we give this property 7 / 10. *Disclaimer: This is our option and does constitute a recommendation or financial advice. Do your own research. *
- Price
- 7
- Condition
- 7
- Location
- 8
- Land
- 8
- Bedrooms
- 4
- Bathrooms
- 1
- Sqft (est)
- 1,330.00
The heatmap indicates the level of crime in the area. The color of the heatmap indicates the crime severity and recency.
Metrics Year-on-Year
- Average area value
- 450,680.00 £Increased by 2.66 %
- Est sale value
- 626,430.00 £Increased by 11.61 %
- Average area rental value
- 1,290.00 £/moIncreased by 8.77 %
- Est letting value
- 1,330.00 £/moUnchanged by 0.00 %
- Est rental Yield
- 3.43 %Increased by 5.86 %
- Crime Rate
- 19.00 %Unchanged by 0.00 %
from 438,987.00 £
from 561,260.00 £
from 1,186.00 £/mo
from 1,330.00 £/mo
from 3.24 %
from 19.00 %
Agent Activity
Julie Philpot created the listing.
Nearby Schools
| Name | Type | Ofsted | Distance |
|---|---|---|---|
| Kenilworth School And Sixth Form | Academy Converter | 0.30 KM | |
| Park Hill Junior School | Community School | Good | 0.37 KM |
| Thorns Community Infant School | Community School | Good | 1.34 KM |
| Crackley Hall School | Other Independent School | 1.44 KM | |
| St Nicholas Cofe Primary School | Voluntary Controlled School | Good | 1.99 KM |
Images
Nearby Streets
| Name | Average Price | Average Sqft | Distance |
|---|---|---|---|
| Cannadine Road | £ 375,000 | 0 | 0.00 KM |
| Hidcote Road | £ 0 | 0 | 0.00 KM |
| Dalebrook Place | £ 0 | 0 | 0.00 KM |
| Field Close | £ 0 | 0 | 0.00 KM |
| Millbrook Lane | £ 0 | 0 | 0.00 KM |
Nearby Transport
| Name | NLC | TLC | Distance |
|---|---|---|---|
| Kenilworth | 7985 | KNW | 1.77 KM |
| Canley | 1129 | CNL | 5.89 KM |
| Tile Hill | 1035 | THL | 6.88 KM |
| Warwick | 4600 | WRW | 7.27 KM |
| Leamington Spa | 4597 | LMS | 7.36 KM |
Nearby Listings
| Address | Price | Type | Score | Distance |
|---|---|---|---|---|
| Leyes Lane, Kenilworth | £ 569,950 | BUY | 7 / 10 | 0.00 KM |
| Leyes Lane, Kenilworth | £ 529,950 | BUY | 7 / 10 | 0.04 KM |
| Harlech Close, Kenilworth | £ 379,950 | BUY | 8 / 10 | 0.10 KM |
| Jacox Crescent, Kenilworth | £ 410,000 | BUY | Unknown | 0.11 KM |
| Leyes Lane, Kenilworth | £ 550,000 | BUY | Unknown | 0.12 KM |
Nearby Properties
| Address | Price | Distance |
|---|---|---|
| 43 Leyes Lane | £ 450,000 | 0.07 KM |
| 39 Leyes Lane | £ 235,000 | 0.07 KM |
| 49 Leyes Lane | £ 329,950 | 0.07 KM |
| 55 Leyes Lane | £ 300,000 | 0.07 KM |
| 45 Leyes Lane | £ 308,000 | 0.07 KM |