Little Lane, Blisworth, Northampton
By Horts Estate Agents
£ 100,000
Reviews
2 out of 5 stars
Horts Estate Agents says ..
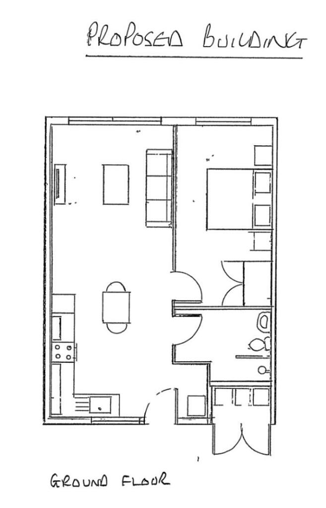
Nestled in the charming village of Blisworth, Northampton, this building plot on Little Lane presents a unique opportunity for those looking to create their dream home. With planning permission already granted for a delightful one-bedroom detached bungalow, this off-plan property is perfect for i...
Property Oracle says ..
The property is a detached single garage that requires complete renovation. The current structure is dilapidated, as evidenced by the photographs. The proposed building plans show a small dwelling, potentially a studio flat or small house, which could be attractive to a buyer looking for a low-maintenance property. However, the significant renovation needed will be a major factor for potential buyers. The location in Blisworth, Northamptonshire is a positive aspect. Blisworth is a desirable village with good access to nearby towns and transport links. The proximity to Blisworth Community Primary School (rated ‘Good’ by Ofsted) is a significant advantage for families. The 7.65 KM distance to Northampton provides access to more extensive amenities and employment opportunities. While the plot size is not specified, the plans indicate a small footprint. This limits the potential for a large garden or outdoor space. The lack of information on plot size makes it difficult to provide a comprehensive assessment of the land aspect. The list price of £100,000 is significantly lower than other properties in the area. However, given the property’s current condition and the extensive renovation required, the price may reflect the cost of the project and the land value. More information on the size of the proposed dwelling and the cost of building materials would be needed to accurately assess the value for money.
Therefore, we give this property 4 / 10. *Disclaimer: This is our option and does constitute a recommendation or financial advice. Do your own research. *
- Price
- 5
- Condition
- 2
- Location
- 8
- Land
- 3
- Bedrooms
- 0
- Bathrooms
- 0
The heatmap indicates the level of crime in the area. The color of the heatmap indicates the crime severity and recency.
Metrics Year-on-Year
- Average area value
- 375,000.00 £Decreased by 12.81 %
- Average area rental value
- 1,375.00 £/moDecreased by 6.53 %
- Est rental Yield
- 4.40 %Increased by 7.32 %
- Crime Rate
- 50.00 %Unchanged by 0.00 %
Agent Activity
Horts Estate Agents created the listing.
Nearby Schools
| Name | Type | Ofsted | Distance |
|---|---|---|---|
| Blisworth Community Primary School | Community School | Good | 0.19 KM |
| Milton Parochial Primary School | Academy Converter | Good | 2.19 KM |
| Rothersthorpe Church Of England Primary School | Voluntary Controlled School | Good | 3.69 KM |
| The Gateway School | Community Special School | Outstanding | 3.89 KM |
| Gayton Church Of England Primary School | Voluntary Controlled School | Outstanding | 4.25 KM |
Images
Nearby Streets
| Name | Average Price | Average Sqft | Distance |
|---|---|---|---|
| Little Lane | £ 0 | 0 | 0.00 KM |
| Knock Lane | £ 0 | 0 | 0.00 KM |
| Oak Avenue | £ 162,500 | 0 | 0.00 KM |
Nearby Transport
| Name | NLC | TLC | Distance |
|---|---|---|---|
| Northampton | 1069 | NMP | 7.65 KM |
Nearby Listings
| Address | Price | Type | Score | Distance |
|---|---|---|---|---|
| Little Lane, Blisworth, Northampton | £ 100,000 | BUY | 4 / 10 | 0.00 KM |
| High Street, Blisworth, Northamptonshire, NN7 | £ 400,000 | BUY | 7 / 10 | 0.08 KM |
| High Street, Blisworth, NN7 | £ 500,000 | BUY | Unknown | 0.10 KM |
| Northampton Road, Blisworth, NN7 | £ 785,000 | BUY | 7 / 10 | 0.13 KM |
| Chapel Lane, Blisworth, Northamptonshire, NN7 | £ 450,000 | BUY | Unknown | 0.13 KM |
Nearby Properties
| Address | Price | Distance |
|---|---|---|
| 8 Chapel Lane | £ 217,000 | 0.13 KM |
| 4 Chapel Lane | £ 173,000 | 0.13 KM |
| 15 Northampton Road | £ 360,000 | 0.16 KM |
| 25 Northampton Road | £ 288,000 | 0.16 KM |
| 15 West Brook | £ 216,000 | 0.18 KM |