MA
Denham Close, Tuffley, Gloucester
By Martin & Co
£ 250,000
Reviews
3 out of 5 stars
Martin & Co says ..
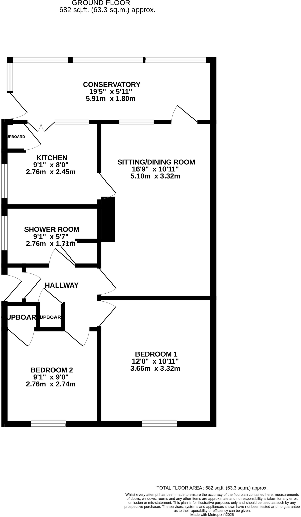
Ready to move in - this well looked after vacant 2 bedroom semi detached offering 2 bedrooms, a good sized lounge/diner, conservatory, kitchen and refitted shower room, modern UPVC double glazing, gas central heating CTax - B, EPC TBC, ample parking on the drive, carport and enclosed rear garden ...
Property Oracle says ..
Therefore, we give this property 6 / 10. *Disclaimer: This is our option and does constitute a recommendation or financial advice. Do your own research. *
- Price
- 7
- Condition
- 5
- Location
- 7
- Land
- 6
- Bedrooms
- 2
- Bathrooms
- 1
- Sqft (est)
- 682.00
The heatmap indicates the level of crime in the area. The color of the heatmap indicates the crime severity and recency.
Metrics Year-on-Year
- Average area value
- 751,426.00 £Increased by 83.24 %
- Est sale value
- 203,236.00 £Decreased by 15.34 %
- Average area rental value
- 1,466.00 £/moDecreased by 0.54 %
- Est letting value
- 0.00 £/moDecreased by 100.00 %
- Est rental Yield
- 2.34 %Decreased by 45.71 %
- Crime Rate
- 3.00 %Unchanged by 0.00 %
from 410,079.00 £
from 240,064.00 £
from 1,474.00 £/mo
from 682.00 £/mo
from 4.31 %
from 3.00 %
Agent Activity
Martin & Co created the listing.
Nearby Schools
| Name | Type | Ofsted | Distance |
|---|---|---|---|
| Harewood Infant School | Community School | Good | 0.20 KM |
| Harewood Junior School | Foundation School | Good | 0.20 KM |
| Holmleigh Park High School | Academy Sponsor Led | 0.29 KM | |
| Gloucester And Forest Alternative Provision School | Pupil Referral Unit | Requires improvement | 0.87 KM |
| Grange Primary School | Academy Sponsor Led | 0.90 KM |
Images
Nearby Streets
| Name | Average Price | Average Sqft | Distance |
|---|---|---|---|
| Prestwick Road | £ 0 | 0 | 0.00 KM |
| Neatishead Road | £ 0 | 0 | 0.00 KM |
| Locking Way | £ 0 | 0 | 0.00 KM |
| Cottesmore Close | £ 385,000 | 0 | 0.00 KM |
| Amport Lane | £ 250,000 | 0 | 0.00 KM |
Nearby Transport
| Name | NLC | TLC | Distance |
|---|---|---|---|
| Gloucester | 4760 | GCR | 4.92 KM |
| Stonehouse | 4770 | SHU | 9.29 KM |
Nearby Listings
| Address | Price | Type | Score | Distance |
|---|---|---|---|---|
| Denham Close, Tuffley, Gloucester | £ 250,000 | BUY | 6 / 10 | 0.00 KM |
| Harewood Close, Tuffley, Gloucester | £ 289,950 | BUY | Unknown | 0.07 KM |
| Arundel Close, Tuffley, Gloucester | £ 265,000 | BUY | 6 / 10 | 0.12 KM |
| Arundel Close, Tuffley, Gloucester | £ 235,000 | BUY | 6 / 10 | 0.16 KM |
| Arundel Close, Tuffley, Gloucester, Gloucestershire, GL4 | £ 210,000 | BUY | 6 / 10 | 0.16 KM |
Nearby Properties
| Address | Price | Distance |
|---|---|---|
| 34 Denham Close | £ 169,995 | 0.06 KM |
| 19 Denham Close | £ 227,500 | 0.06 KM |
| 15 Denham Close | £ 210,000 | 0.06 KM |
| 20 Denham Close | £ 165,000 | 0.06 KM |
| 21 Denham Close | £ 150,000 | 0.06 KM |