Lark Rise, Yate, Bristol, Gloucestershire, BS37
By Andrews Estate Agents
£ 275,000
Reviews
3 out of 5 stars
Andrews Estate Agents says ..
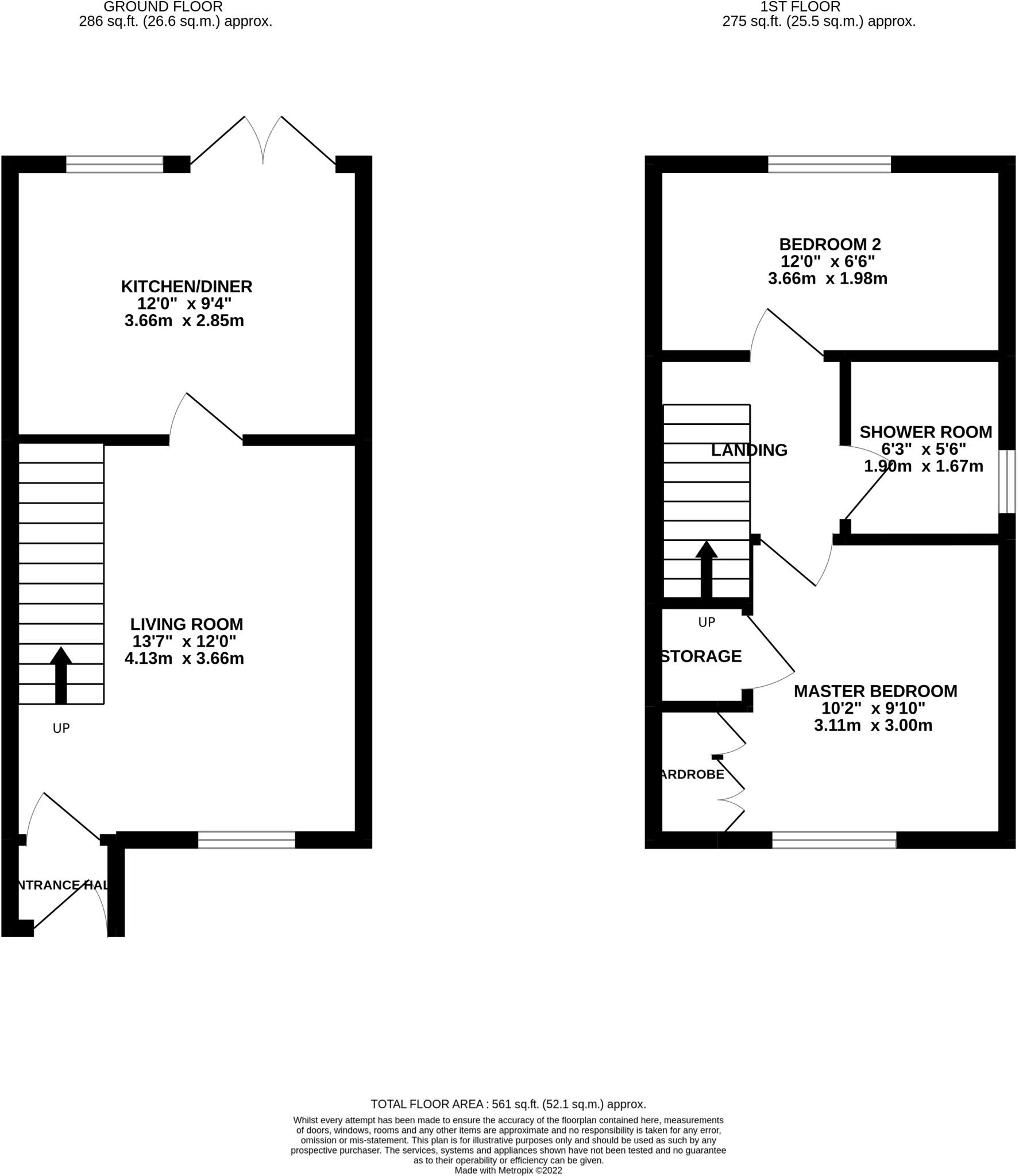
This property comprises an entrance hall leading to the reception room along with a separate kitchen with high gloss work units and access the enclosed rear garden. Upstairs there is a modern shower room, the master bedroom to the front offering a built-in wardrobe as well as an additional storag...
Property Oracle says ..
This property is a 2 bedroom, 1 bathroom semi-detached house located in Yate, South Gloucestershire. The property is relatively small at 560.80 sqft, which is significantly below the average for the area (868 sqft). While the list price is below the average price for the area (£275,000 vs £359,158), the price per sqft is higher than average (£490 vs £413). The property benefits from a small garden and appears to be in good condition, with a recently fitted bathroom. Its proximity to several schools (St Mary’s Church of England Primary School, The Ridge Junior School, and others) and the Yate train station makes it convenient for families and commuters. However, the lack of information regarding the plot size and the smaller than average size of the property should be considered.
Therefore, we give this property 6 / 10. *Disclaimer: This is our option and does constitute a recommendation or financial advice. Do your own research. *
- Price
- 6
- Condition
- 8
- Location
- 7
- Land
- 3
- Bedrooms
- 2
- Bathrooms
- 1
- Sqft (est)
- 560.80
The heatmap indicates the level of crime in the area. The color of the heatmap indicates the crime severity and recency.
Metrics Year-on-Year
- Average area value
- 374,495.00 £Increased by 3.18 %
- Est sale value
- 197,962.40 £Increased by 6.01 %
- Average area rental value
- 1,438.00 £/moIncreased by 8.61 %
- Est letting value
- 560.80 £/moUnchanged by 0.00 %
- Est rental Yield
- 4.61 %Increased by 5.25 %
- Crime Rate
- 4.00 %Unchanged by 0.00 %
Agent Activity
Andrews Estate Agents created the listing.
Nearby Schools
| Name | Type | Ofsted | Distance |
|---|---|---|---|
| St Mary'S Church Of England Primary School, Yate | Voluntary Aided School | Good | 0.95 KM |
| The Ridge Junior School | Community School | Good | 1.27 KM |
| Yate West Gate Childrens Centre | Children's Centre Linked Site | 1.28 KM | |
| Tyndale Primary School | Academy Sponsor Led | 1.34 KM | |
| Broadway Infant School | Community School | Good | 1.35 KM |
Images
Nearby Streets
| Name | Average Price | Average Sqft | Distance |
|---|---|---|---|
| Hale Road | £ 0 | 0 | 0.00 KM |
| Raymond Close | £ 337,500 | 0 | 0.00 KM |
| Bluebell Close | £ 0 | 0 | 0.00 KM |
| Reeves Gardens | £ 0 | 0 | 0.00 KM |
| Church Road | £ 650,000 | 0 | 0.00 KM |
Nearby Transport
| Name | NLC | TLC | Distance |
|---|---|---|---|
| Yate | 3380 | YAE | 2.54 KM |
Nearby Listings
| Address | Price | Type | Score | Distance |
|---|---|---|---|---|
| Lark Rise, Yate, Bristol, Gloucestershire, BS37 | £ 275,000 | BUY | 6 / 10 | 0.00 KM |
| Lark Rise, Yate, Bristol, BS37 7PJ | £ 545,000 | BUY | 7 / 10 | 0.10 KM |
| Clayfield, Yate, Bristol | £ 420,000 | BUY | 7 / 10 | 0.23 KM |
| Argyle Drive, Yate, Bristol, Gloucestershire, BS37 | £ 550,000 | BUY | 7 / 10 | 0.23 KM |
| Lower Moor Road, Yate, BS37 | £ 525,000 | BUY | 7 / 10 | 0.25 KM |
Nearby Properties
| Address | Price | Distance |
|---|---|---|
| 30 Lark Rise | £ 148,000 | 0.03 KM |
| 38 Lark Rise | £ 195,000 | 0.03 KM |
| 50 Lark Rise | £ 267,000 | 0.03 KM |
| 2 Lark Rise | £ 125,000 | 0.03 KM |
| 16 Lark Rise | £ 195,000 | 0.03 KM |