TR
Copleston Road, Peckham, SE15
By Truepenny's Property Consultants
£ 775,000
Reviews
4 out of 5 stars
Truepenny's Property Consultants says ..
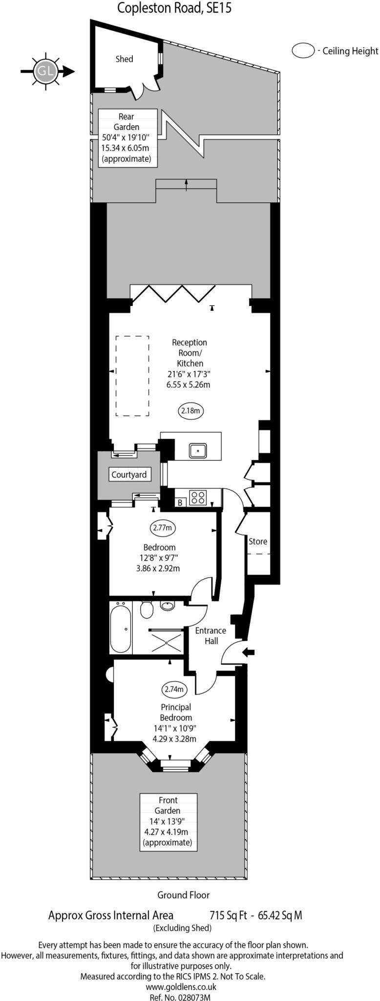
A beautifully presented and fully extended two double bedroom Victorian conversion, offering a stylish blend of period charm and contemporary finishes.
Property Oracle says ..
Therefore, we give this property 8 / 10. *Disclaimer: This is our option and does constitute a recommendation or financial advice. Do your own research. *
- Price
- 9
- Condition
- 8
- Location
- 8
- Land
- 7
- Bedrooms
- 2
- Bathrooms
- 1
- Sqft (est)
- 1,834.43
The heatmap indicates the level of crime in the area. The color of the heatmap indicates the crime severity and recency.
Metrics Year-on-Year
- Average area value
- 905,000.00 £Increased by 17.49 %
- Est sale value
- 2,254,514.47 £Increased by 35.35 %
- Average area rental value
- 1,965.00 £/moDecreased by 22.91 %
- Est letting value
- 3,668.86 £/moDecreased by 33.33 %
- Est rental Yield
- 2.61 %Decreased by 34.26 %
- Crime Rate
- 2.00 %Unchanged by 0.00 %
from 770,293.00 £
from 1,665,662.44 £
from 2,549.00 £/mo
from 5,503.29 £/mo
from 3.97 %
from 2.00 %
Agent Activity
Truepenny's Property Consultants created the listing.
Nearby Schools
| Name | Type | Ofsted | Distance |
|---|---|---|---|
| The Villa | Other Independent School | Good | 0.40 KM |
| The Belham Primary School | Free Schools | Good | 0.47 KM |
| Goose Green Primary And Nursery School | Academy Converter | Good | 0.55 KM |
| South Camberwell Children'S Centre | Children's Centre | 0.57 KM | |
| Dog Kennel Hill School | Community School | Good | 0.57 KM |
Images
Nearby Streets
| Name | Average Price | Average Sqft | Distance |
|---|---|---|---|
| Pelham Close | £ 0 | 0 | 0.00 KM |
| Quorn Road | £ 0 | 0 | 0.00 KM |
| Grove Vale | £ 0 | 0 | 0.00 KM |
| Cross Road | £ 0 | 0 | 0.00 KM |
| McDermott Road | £ 0 | 0 | 0.00 KM |
Nearby Transport
| Name | NLC | TLC | Distance |
|---|---|---|---|
| East Dulwich | 5358 | EDW | 0.62 KM |
| Peckham Rye | 5423 | PMR | 1.01 KM |
| Denmark Hill | 5421 | DMK | 1.30 KM |
| North Dulwich | 5429 | NDL | 1.73 KM |
| Queens Road Peckham | 5424 | QRP | 2.40 KM |
Nearby Listings
| Address | Price | Type | Score | Distance |
|---|---|---|---|---|
| Copleston Road, Peckham, SE15 | £ 775,000 | BUY | 7 / 10 | 0.00 KM |
| Copleston Road, Peckham, SE15 | £ 775,000 | BUY | 8 / 10 | 0.00 KM |
| Copleston Road, Peckham, SE15 | £ 750,000 | BUY | 7 / 10 | 0.01 KM |
| Copleston Road, Peckham Rye, London, SE15 | £ 725,000 | BUY | 6 / 10 | 0.01 KM |
| Copleston Road, Peckham Rye, SE15 | £ 799,950 | BUY | 8 / 10 | 0.05 KM |
Nearby Properties
| Address | Price | Distance |
|---|---|---|
| 36 Copleston Road | £ 225,000 | 0.02 KM |
| 24b Copleston Road | £ 315,775 | 0.02 KM |
| 22a Copleston Road | £ 575,000 | 0.02 KM |
| 52 Copleston Road | £ 615,000 | 0.02 KM |
| 34a Copleston Road | £ 320,000 | 0.02 KM |