Gilson Bailey says ..
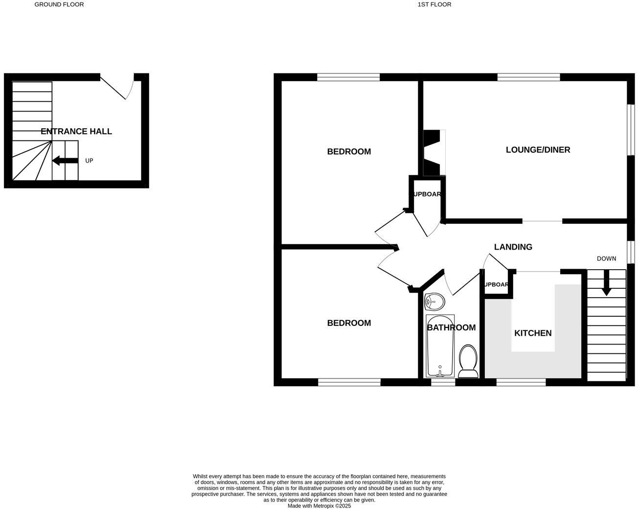
**PRIVATE REAR GARDEN AND NO ONWARD CHAIN** Gilson Bailey are delighted to offer this well-presented first-floor flat offering practical living throughout and situated to the south of Norwich. The accommodation includes an entrance hall, lounge/diner, modern kitchen, two bedrooms, and a bathroom....
Property Oracle says ..
This is a two-bedroom flat in Lakenham, Norwich, presented by Gilson Bailey. The property includes a garden and appears to be in generally good condition, with a modern kitchen and bathroom. The location offers access to local schools and transportation links. The asking price of £160,000 seems reasonable when compared to average property prices in the area.
Therefore, we give this property 7 / 10. *Disclaimer: This is our option and does constitute a recommendation or financial advice. Do your own research. *
- Price
- 8
- Condition
- 7
- Location
- 6
- Land
- 7
- Bedrooms
- 2
- Bathrooms
- 1
- Sqft (est)
- 600.00
The heatmap indicates the level of crime in the area. The color of the heatmap indicates the crime severity and recency.
Metrics Year-on-Year
- Average area value
- 286,250.00 £Increased by 20.30 %
- Est sale value
- 190,800.00 £Increased by 16.48 %
- Average area rental value
- 1,063.00 £/moIncreased by 3.30 %
- Est letting value
- 600.00 £/moUnchanged by 0.00 %
- Est rental Yield
- 4.46 %Decreased by 14.07 %
- Crime Rate
- 2.00 %Unchanged by 0.00 %
Agent Activity
Gilson Bailey created the listing.
Nearby Schools
| Name | Type | Ofsted | Distance |
|---|---|---|---|
| The Wherry School | Free Schools Special | 0.35 KM | |
| Edith Cavell Academy And Nursery | Academy Sponsor Led | Good | 0.40 KM |
| East City And Framingham Earl Area Children'S Centre | Children's Centre | 0.48 KM | |
| The Hewett Academy, Norwich | Academy Sponsor Led | Good | 0.58 KM |
| Norwich Steiner School | Other Independent School | Good | 0.76 KM |
Images
Nearby Streets
| Name | Average Price | Average Sqft | Distance |
|---|---|---|---|
| Saint Johns Close | £ 0 | 0 | 0.00 KM |
| Mill Close | £ 155,000 | 0 | 0.00 KM |
| Kings Lane | £ 170,000 | 0 | 0.00 KM |
| Queens Road | £ 487,500 | 0 | 0.00 KM |
| Cranworth Gardens | £ 0 | 0 | 0.00 KM |
Nearby Transport
| Name | NLC | TLC | Distance |
|---|---|---|---|
| Norwich | 7309 | NRW | 2.19 KM |
Nearby Listings
| Address | Price | Type | Score | Distance |
|---|---|---|---|---|
| Latimer Road, Norwich | £ 160,000 | BUY | 7 / 10 | 0.00 KM |
| Hall Road Norwich NR1 2PW | £ 450,000 | BUY | 6 / 10 | 0.11 KM |
| Brian Avenue, Norwich, NR1 | £ 475,000 | BUY | 7 / 10 | 0.23 KM |
| Latimer Road, Norwich | £ 150,000 | BUY | 7 / 10 | 0.24 KM |
| Cecil Road, Norwich, NR1 | £ 525,000 | BUY | 8 / 10 | 0.25 KM |
Nearby Properties
| Address | Price | Distance |
|---|---|---|
| 1 Latimer Road | £ 42,000 | 0.03 KM |
| 11 Latimer Road | £ 146,000 | 0.03 KM |
| 3 Latimer Road | £ 195,000 | 0.03 KM |
| 15 Latimer Road | £ 145,000 | 0.05 KM |
| 6 Latimer Road | £ 144,000 | 0.05 KM |