MA
Old Bridge Road, Whitstable, Kent, CT5
By Mann
£ 325,000
Reviews
3 out of 5 stars
Mann says ..
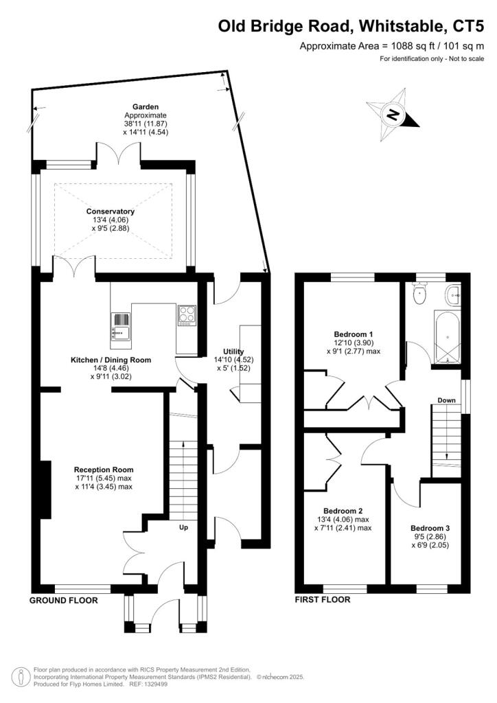
* Asking Price £325,000 * CHAIN FREE | DESIRABLE LOCATION | FAMILY HOME MANN Countrywide are delighted to bring this well presented, three bedroom, semi detached home to the market. Set on the edge of the seaside town of Whitstable, this home is moments walk...
Property Oracle says ..
Therefore, we give this property 7 / 10. *Disclaimer: This is our option and does constitute a recommendation or financial advice. Do your own research. *
- Price
- 8
- Condition
- 7
- Location
- 8
- Land
- 6
- Bedrooms
- 3
- Bathrooms
- 1
The heatmap indicates the level of crime in the area. The color of the heatmap indicates the crime severity and recency.
Metrics Year-on-Year
- Average area value
- 467,833.00 £Increased by 3.56 %
- Average area rental value
- 1,383.00 £/moIncreased by 4.30 %
- Est rental Yield
- 3.55 %Increased by 0.85 %
- Crime Rate
- 5.00 %Unchanged by 0.00 %
from 451,737.00 £
from 1,326.00 £/mo
from 3.52 %
from 5.00 %
Agent Activity
Mann created the listing.
Nearby Schools
| Name | Type | Ofsted | Distance |
|---|---|---|---|
| St Mary'S Catholic Primary School, Whitstable | Academy Converter | Good | 0.55 KM |
| Westmeads Community Infant School | Community School | Outstanding | 0.70 KM |
| The Whitstable School | Academy Converter | 0.75 KM | |
| Whitstable And Seasalter Endowed Church Of England Junior School | Voluntary Aided School | Outstanding | 1.04 KM |
| Isp Polar Re Start Centre | Other Independent Special School | 1.13 KM |
Images
Nearby Streets
| Name | Average Price | Average Sqft | Distance |
|---|---|---|---|
| Linden Avenue | £ 555,000 | 0 | 0.00 KM |
| Tower Road | £ 0 | 0 | 0.00 KM |
| Northwood Road | £ 449,995 | 0 | 0.00 KM |
| Juniper Close | £ 595,000 | 0 | 0.00 KM |
| Old Millfield Works | £ 0 | 0 | 0.00 KM |
Nearby Transport
| Name | NLC | TLC | Distance |
|---|---|---|---|
| Whitstable | 5196 | WHI | 0.21 KM |
| Chestfield And Swalecliffe | 5200 | CSW | 3.52 KM |
| Herne Bay | 5174 | HNB | 9.16 KM |
| Canterbury West | 5007 | CBW | 9.27 KM |
Nearby Listings
| Address | Price | Type | Score | Distance |
|---|---|---|---|---|
| Old Bridge Road, Whitstable | £ 325,000 | BUY | 7 / 10 | 0.00 KM |
| Old Bridge Road, Whitstable, Kent, CT5 | £ 325,000 | BUY | 7 / 10 | 0.00 KM |
| Old Bridge Road, Whitstable, Kent | £ 300,000 | BUY | 4 / 10 | 0.01 KM |
| Old Bridge Road, Whitstable, Kent | £ 300,000 | BUY | Unknown | 0.01 KM |
| All Saints Close, Whitstable | £ 350,000 | BUY | Unknown | 0.11 KM |
Nearby Properties
| Address | Price | Distance |
|---|---|---|
| 81 Old Bridge Road | £ 260,000 | 0.00 KM |
| 87 Old Bridge Road | £ 190,000 | 0.00 KM |
| 79 Old Bridge Road | £ 265,000 | 0.00 KM |
| 67 Old Bridge Road | £ 282,000 | 0.03 KM |
| 57 Old Bridge Road | £ 248,000 | 0.03 KM |