GA
Clifton Street, Alderley Edge
By Gascoigne Halman
£ 615,000
Reviews
3 out of 5 stars
Gascoigne Halman says ..
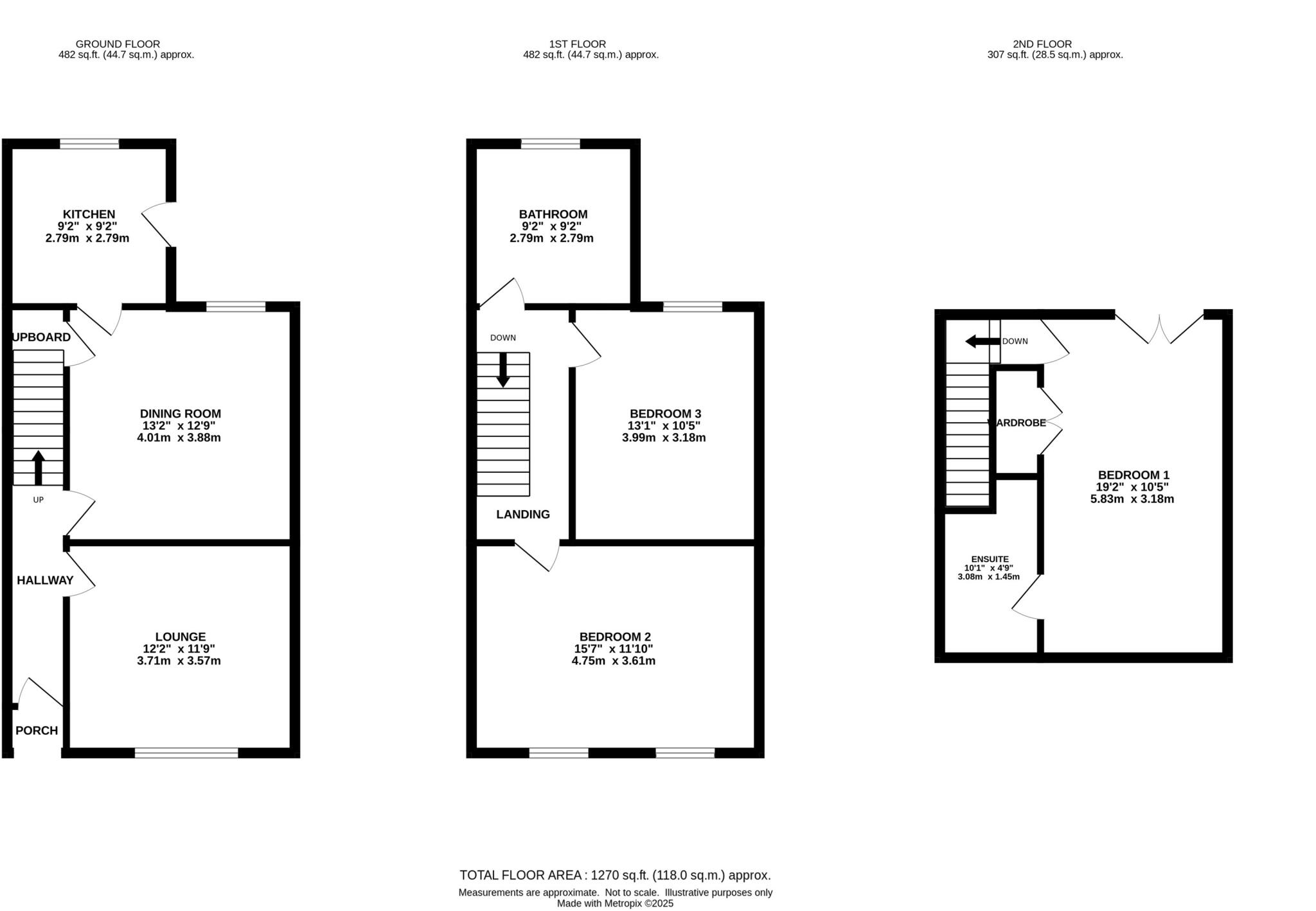
A stunning period home at the heart of the Alderley Edge village. Boasting many original features, generous accommodation over three floors and a pleasant southerly facing rear garden. NO ONWARD CHAIN
Property Oracle says ..
Therefore, we give this property 7 / 10. *Disclaimer: This is our option and does constitute a recommendation or financial advice. Do your own research. *
- Price
- 5
- Condition
- 8
- Location
- 9
- Land
- 7
- Bedrooms
- 3
- Bathrooms
- 2
- Sqft (est)
- 1,270.00
The heatmap indicates the level of crime in the area. The color of the heatmap indicates the crime severity and recency.
Metrics Year-on-Year
- Average area value
- 430,000.00 £Decreased by 45.17 %
- Est sale value
- 391,160.00 £Decreased by 45.87 %
- Average area rental value
- 4,000.00 £/moIncreased by 70.00 %
- Est letting value
- 2,540.00 £/moIncreased by 100.00 %
- Est rental Yield
- 11.16 %Increased by 210.00 %
- Crime Rate
- 77.00 %Unchanged by 0.00 %
from 784,260.00 £
from 722,630.00 £
from 2,353.00 £/mo
from 1,270.00 £/mo
from 3.60 %
from 77.00 %
Agent Activity
Gascoigne Halman created the listing.
Nearby Schools
| Name | Type | Ofsted | Distance |
|---|---|---|---|
| Alderley Edge School For Girls | Other Independent School | 0.59 KM | |
| Alderley Edge Community Primary School | Community School | Outstanding | 0.71 KM |
| The Ryleys School | Other Independent School | 1.10 KM | |
| Nether Alderley Primary School | Academy Converter | Good | 1.77 KM |
| Wilmslow High School | Community School | Good | 2.28 KM |
Images
Nearby Streets
| Name | Average Price | Average Sqft | Distance |
|---|---|---|---|
| Greystoke Drive | £ 0 | 0 | 0.00 KM |
| Orme Street | £ 350,000 | 0 | 0.00 KM |
| West Bank | £ 0 | 0 | 0.00 KM |
| Marlborough Avenue | £ 1,000,000 | 0 | 0.00 KM |
| Congleton Close | £ 0 | 0 | 0.00 KM |
Nearby Transport
| Name | NLC | TLC | Distance |
|---|---|---|---|
| Alderley Edge | 2760 | ALD | 0.38 KM |
| Wilmslow | 2774 | WML | 2.88 KM |
| Styal | 2868 | SYA | 5.20 KM |
| Handforth | 2767 | HTH | 5.43 KM |
| Chelford (Cheshire) | 2764 | CEL | 6.25 KM |
Nearby Listings
| Address | Price | Type | Score | Distance |
|---|---|---|---|---|
| Clifton Street, Alderley Edge | £ 615,000 | BUY | 7 / 10 | 0.00 KM |
| Trafford Road, Alderley Edge, SK9 | £ 1,000,000 | BUY | 8 / 10 | 0.02 KM |
| Trafford Road, Alderley Edge | £ 895,000 | BUY | 7 / 10 | 0.05 KM |
| Tyler Street, Alderley Edge | £ 350,000 | BUY | Unknown | 0.06 KM |
| Trafford Road, Alderley Edge | £ 595,000 | BUY | 7 / 10 | 0.10 KM |
Nearby Properties
| Address | Price | Distance |
|---|---|---|
| 19 Trafford Road | £ 950,000 | 0.06 KM |
| 25 Trafford Road | £ 660,000 | 0.06 KM |
| 21 Trafford Road | £ 910,000 | 0.06 KM |
| 11 Trafford Road | £ 1,035,000 | 0.06 KM |
| 38 Trafford Road | £ 997,000 | 0.06 KM |