WI
Highbury Road, Chesterfield
By Wilkins Vardy Residential
£ 200,000
Reviews
3 out of 5 stars
Wilkins Vardy Residential says ..
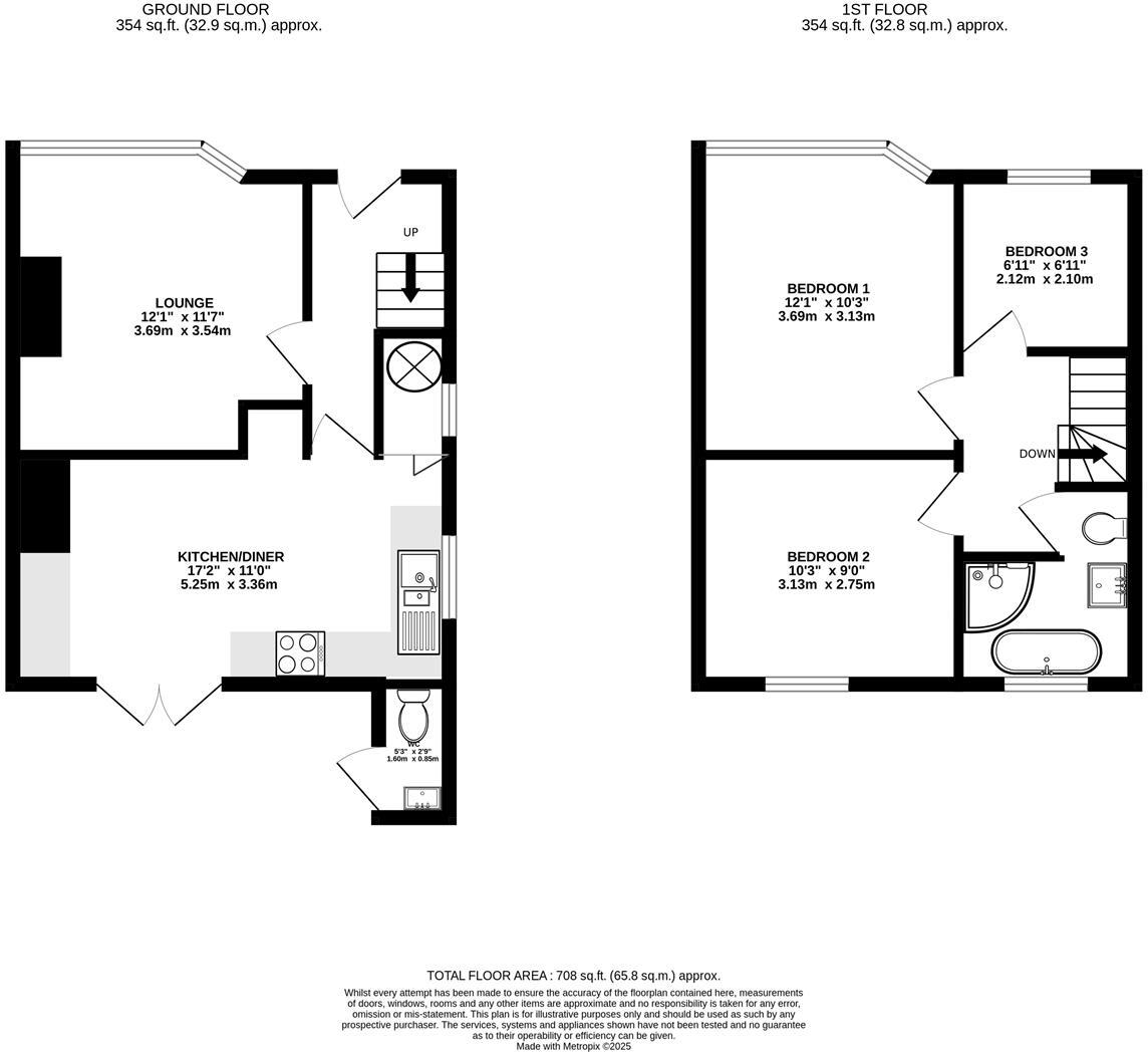
'READY TO MOVE INTO!' - SUPERB REFURBISHED THREE BED SEMI - CORNER PLOT - NO CHAIN Offered for sale with no upward chain is this three bedroomed semi detached house which has been refurbished by the current owner to provide a fantastic family home. The property offers 708 sq.ft. of well...
Property Oracle says ..
Therefore, we give this property 7 / 10. *Disclaimer: This is our option and does constitute a recommendation or financial advice. Do your own research. *
- Price
- 6
- Condition
- 8
- Location
- 7
- Land
- 7
- Bedrooms
- 3
- Bathrooms
- 1
- Sqft (est)
- 593.79
The heatmap indicates the level of crime in the area. The color of the heatmap indicates the crime severity and recency.
Metrics Year-on-Year
- Average area value
- 184,998.00 £Decreased by 20.87 %
- Est sale value
- 154,385.40 £Increased by 11.59 %
- Average area rental value
- 850.00 £/moIncreased by 0.71 %
- Est letting value
- 593.79 £/mo
- Est rental Yield
- 5.51 %Increased by 27.25 %
- Crime Rate
- 0.00 %
from 233,791.00 £
from 138,353.07 £
from 844.00 £/mo
from 0.00 £/mo
from 4.33 %
from 0.00 %
Agent Activity
Wilkins Vardy Residential created the listing.
Nearby Schools
| Name | Type | Ofsted | Distance |
|---|---|---|---|
| Christ Church Cofe Primary School | Academy Converter | Good | 0.45 KM |
| Abercrombie Primary School | Community School | Good | 0.49 KM |
| St Mary'S Catholic Primary | Voluntary Aided School | Good | 0.59 KM |
| Highfield Hall Primary School | Community School | Good | 0.79 KM |
| Outwood Academy Newbold | Academy Sponsor Led | Good | 0.84 KM |
Images
Nearby Streets
| Name | Average Price | Average Sqft | Distance |
|---|---|---|---|
| Craven Road | £ 0 | 0 | 0.00 KM |
| Trinity Court | £ 0 | 0 | 0.00 KM |
| Newbold Road | £ 0 | 0 | 0.00 KM |
| Gladstone Road | £ 0 | 0 | 0.00 KM |
| Gloucester Avenue | £ 0 | 0 | 0.00 KM |
Nearby Transport
| Name | NLC | TLC | Distance |
|---|---|---|---|
| Chesterfield | 6615 | CHD | 1.64 KM |
| Dronfield | 6616 | DRO | 7.38 KM |
Nearby Listings
| Address | Price | Type | Score | Distance |
|---|---|---|---|---|
| Highbury Road, Chesterfield | £ 200,000 | BUY | 7 / 10 | 0.00 KM |
| Highfield View Road, Chesterfield, S41 | £ 190,000 | BUY | 7 / 10 | 0.07 KM |
| Highbury Road, Newbold, Chesterfield | £ 199,950 | BUY | 7 / 10 | 0.08 KM |
| Enfield Road, Newbold, Chesterfield | £ 220,000 | BUY | 6 / 10 | 0.08 KM |
| Highbury Road, Chesterfield, S41 | £ 170,000 | BUY | 6 / 10 | 0.10 KM |
Nearby Properties
| Address | Price | Distance |
|---|---|---|
| 14 Highfield View Road | £ 89,500 | 0.06 KM |
| 5 Highfield View Road | £ 122,500 | 0.06 KM |
| 9 Highfield View Road | £ 155,000 | 0.06 KM |
| 3 Highfield View Road | £ 123,000 | 0.06 KM |
| 7 Highfield View Road | £ 155,000 | 0.06 KM |